تصميم، فيديو وصوتيات
دعوة للعمل
أضف إلى المفضلة
تبليغ عن محتوى
محمد ط.
مستقل
مهندس مدني
الملف الشخصي
معرض الأعمال
دعوة للعمل
أضف إلى المفضلة
تبليغ عن محتوى
نبذة عني
مهندس مدنى و مصمم جرافيك
تخرجت من الجامعة الاول على دفعتى بتقدير امتياز مع مرتبة الشرف
مهاراتي
التصميم الإبداعي
فوتوشوب
الفكرة التصميمية
تصميم الأيقونات
تصميم إعلان
تصميم بنرات
تصميم بوسترات
تصميم جرافيك
تصميم دعوات
تصميم شعار
تصميم العبوات
فوتوشوب
تصميم ملصقات المنتجات
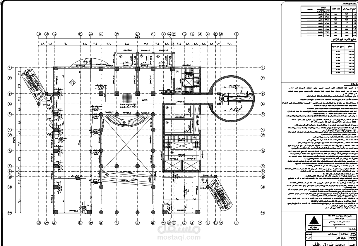
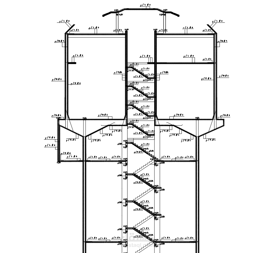
تصميم انشائى مبنى جامعى
168
تصميم انشائى لخزان عالى
81
تصميم انشائى مبنى ادارى
404
1
تصميم انشائى فيلا
218
1
مجلدات
202
تصميم شعارات logo design
226
رسم فيكتور
272
إحصائيات
التقييمات
(0)
إكمال المشاريع
لم يحسب بعد
التسليم بالموعد
لم يحسب بعد
إعادة التوظيف
لم يحسب بعد
نجاح التواصلات
لم يحسب بعد
متوسط سرعة الرد
يوم و 17 ساعة
تاريخ التسجيل
27 يونيو 2017
آخر تواجد
منذ
4 أشهر
توثيقات
البريد الإلكتروني
رقم الجوال
الهوية الشخصية
أوسمة
×