
أهلا وسهلا بكم في ملفي الشخصي
مهندس معماري محترف لدي خبرة جيدة في التصميم بالمقاييس المناسبة مع مراعاة العوامل البيئية المحيطة
وإليكم الخدمات التي أقدمها :
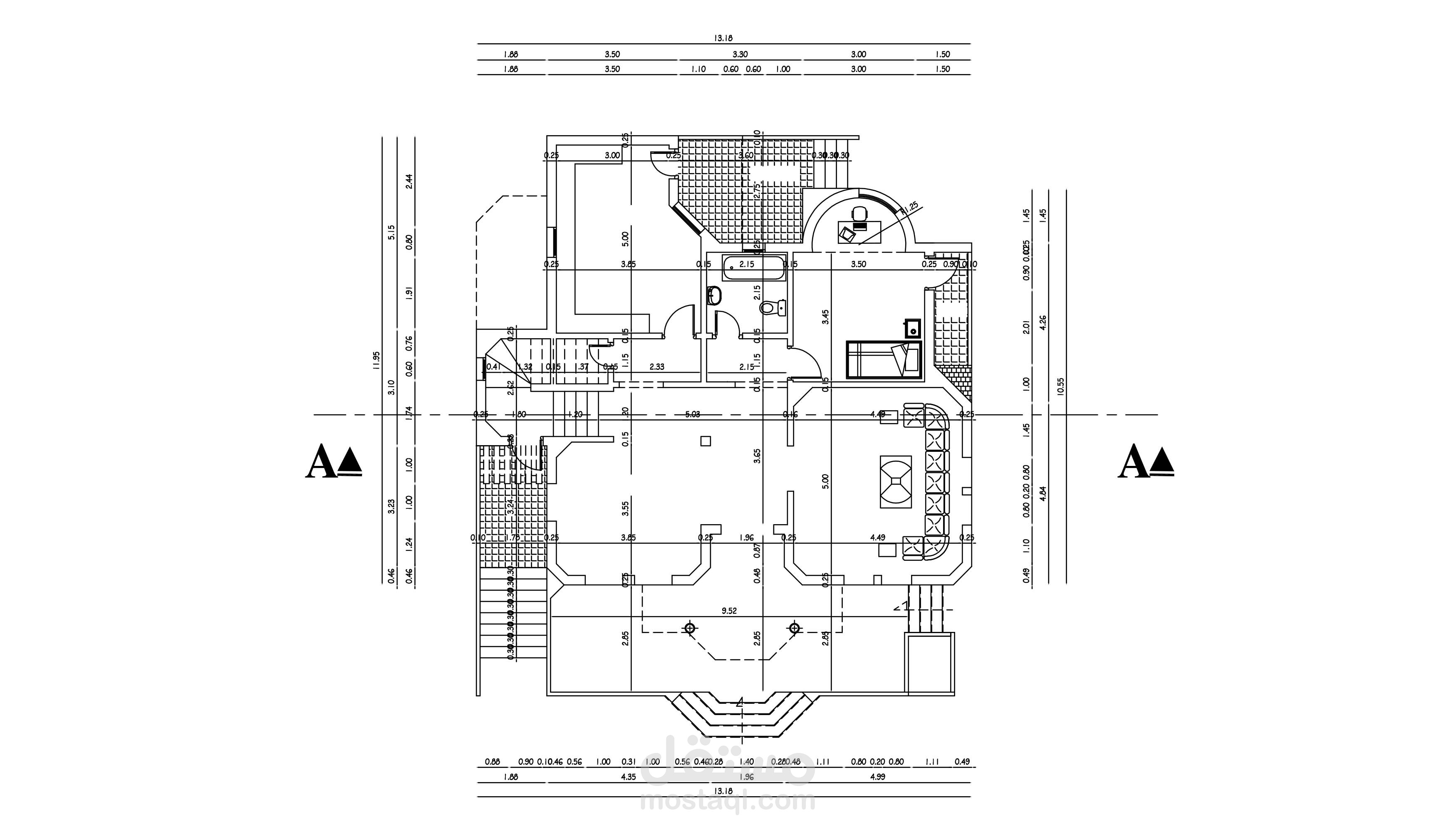
رسم كافة المخططات المعمارية باستخدام برنامج Autocad
رفع المخططات 3D بواسطة برنامج 3D Max
دراسة بيئية مناسبة للمبنى
رسم وتعديل أي مخطط معماري بمختلف أنواعه ( صورة -pdf -كروكي)
رسم الواجهات والمقاطع والمناظير المعمارية
وأخيرا لاتتردد في طلب أي خدمة ..