
هل تبحث عن تصميم معماري يعكس ذوقك ويلبي كل احتياجاتك بدقة واحترافية؟
أنا مهندسة معمارية بخبرة تمتد لأكثر من 9 سنوات في المجال، تخرّجت عام 2015، وحصلت على درجة الماجستير في العمارة عام 2023، وأُحضّر حاليًا لنيل الدكتوراه.
عملت في عدة مكاتب هندسية، بالإضافة إلى خبرتي الكبيرة في العمل عن بُعد مع عملاء من مختلف الدول، ما مكّنني من فهم احتياجات كل عميل بشكل دقيق وتقديم تصاميم تلائم ذوقه ومتطلباته.
أؤمن بأن التصميم الناجح هو الذي يجمع بين الجمال، الوظيفة، والواقعية في التنفيذ، وأحرص دائمًا على تقديم حلول إبداعية ومبتكرة لكل مشروع أعمل عليه.
أجيد إستخدام برامج auto cad ، sketch up ، vary ، photo shop فهم بمثابة أداة لإستخراج تصميم ثنائي و ثلاثي الأبعاد
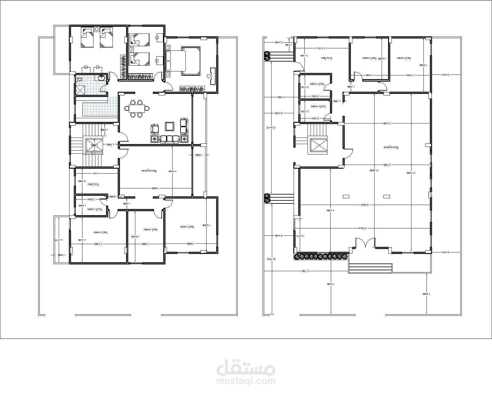
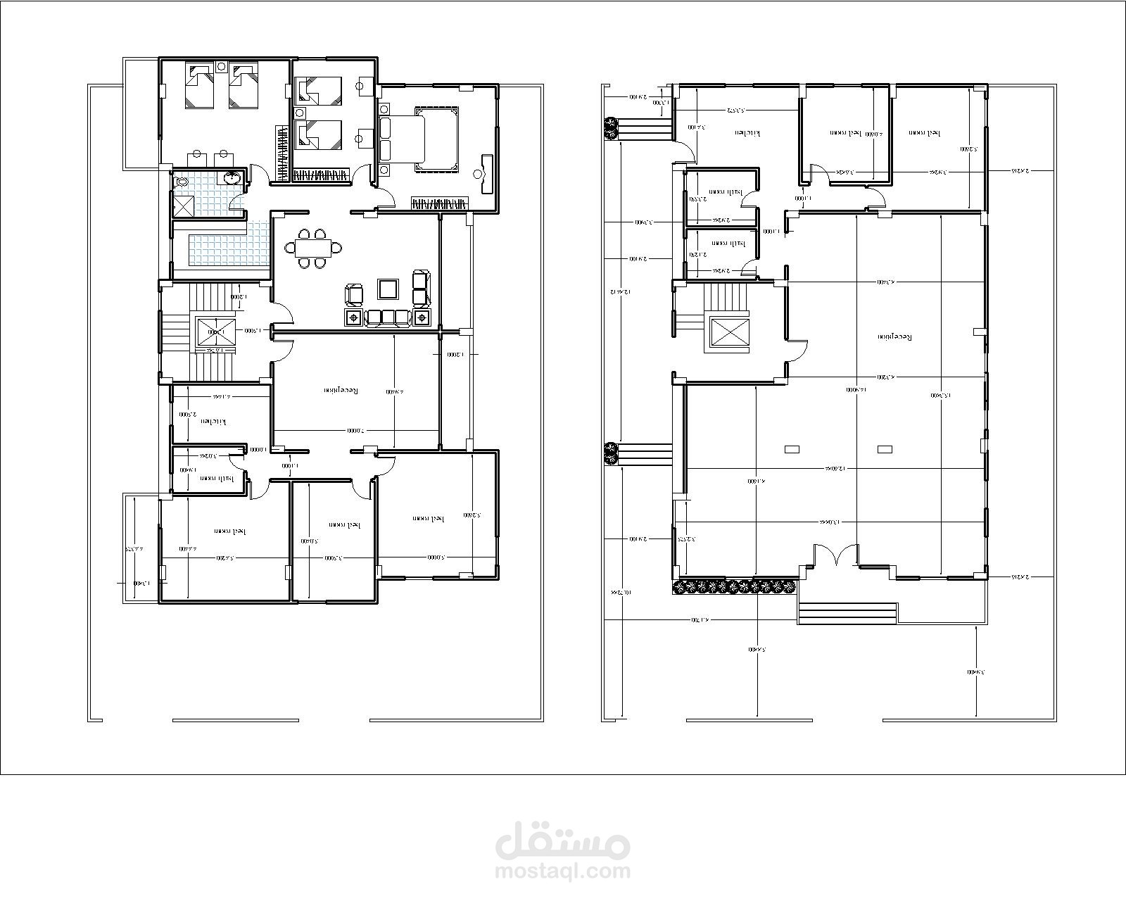
يمكنك رؤية بعض من أعمالي