نبذة عني

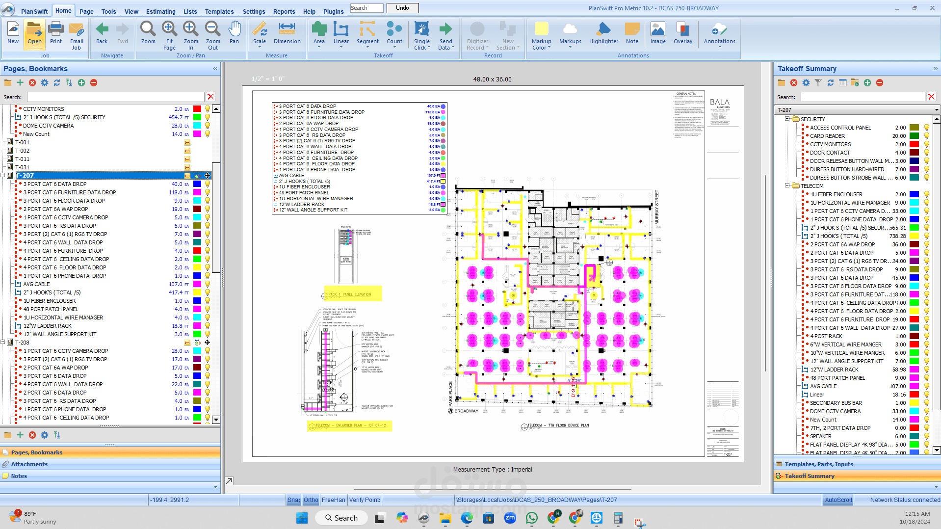
I am Professional Electrical engineer. I am working last 4 years as Low voltage and Electrical estimator on planswift and bluebeam software. I will give you complete and accurate estimate take-off. I have done 1200 commerical residental and industrial building projects.

● Fluent in PlanSwift & Bluebeam software

● Tender Bidding Services - Electrical, Telecom, Security, Access Control, and Fire Alarm systems

● Create Electrical Bill of Quantity (BOQ)

● Estimate Labor against work done for Electrical & Low Voltage systems

● Career Experience - 2+ years as an Electrical Designer & Electrical Estimator

● Successful Client base - USA, Canada, Australia, UK, UAE, Qatar, Saudi Arabia

لا توجد نتائج

إحصائيات

التقييمات  (0)
إكمال المشاريع
التسليم بالموعد
إعادة التوظيف
نجاح التواصلات
متوسط سرعة الرد لم يحسب بعد
تاريخ التسجيل
آخر تواجد منذ

توثيقات

البريد الإلكتروني رقم الجوال
الهوية الشخصية

أوسمة

  • مستخدم منذ سنة