نبذة عني

السلام عليكم ورحمة الله وبركاتة

● دعنى اعرفك بنفسى

م / عبدالرحمن شداد

- مهندس مدني انشائي

- متخصص بالتصميم الانشائي وحساب الكميات

● تفاصيل أكثر

- بكالوريوس في الهندسة المدنية

- دبلوم سكرتارية (حاسوب - وورد - اكسل - طباعة - انترنت)

- مختص بتصميم المباني في المناطق المعرضة للزلازل

- عملت فى العديد من الأعمال والاستشارية الهندسية عن بعد ومع الكثير من العملاء المحليين والخارجيين كمهندس تصميم انشائي منها :-

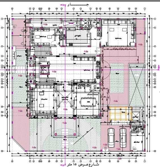
○ تصميم منازل سكنية. ○ تصميم ابراج سكنية

○ تصميم فيلل. ○تصميم المبانى الادارية

- امتلك الكورسات والمعرفة في جميع البرامج الهندسية التالية وخبرة عملية وعلمية فيها :-

▪ مجموعة BIM

( AUTO CAD - REVIT - ROBOT- ASD )

▪ مجموعة CSI

(ETABS - SAP 2000 - SAFE-CSI COLUMNS)

▪ STAAD PRO

▪ Microsoft Office

(WORD -EXCEL- POWER POINT)

▪ STAD FOR CAD

● الخدمات التي نقدمها :-

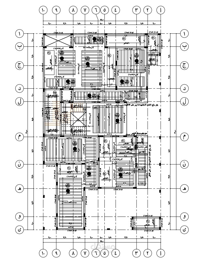
- تصميم المنشآت الخرسانية باستخدام برامج التحليل الانشائي (ROBOT - ETABS - STADPRO - .... الخ) وذلك طبقا لأكواد التصميم المعروفه ومراعاة متطلبات المعماري والمالك وأمان وتكلفة المنشأ اي كان نوع المنشا.

- عمل جميع المخطاطات التصميمية ( الانشائية و التنفيذية ) ليكون المخططات جاهزه للتنفيذ وهي :

▪لوحات الاساسات بانواعها ( سطحية وعميقة )

▪لوحات جسور الميده

▪لو حات المحاور والاعمدة

▪لوحات الاسقف بانواعها

▪لوحات والكمرات (الجسور )

▪لوحات تفريد الحديد

▪لوحات لقطاعات العناصر الانشائية

▪جداول تسليح الحديد لكل العناصر السابقة

▪رسوم تفصيلية لكيفية تسليح كل العناصر السابقة

▪عمل تفريد لحديد التسليح وجدوال القطعيات

- المراجعة والتعديل على التصاميم المعمارية والانشائية المصممه مسبقا و عمل التعديلات اللازمه و اعطاء تقارير بذلك.

- حساب كميات وحصر لكافة المواد الانشائية بجميع مراحل تنفيذ المشروع.

- إعداد التكلفة التقديرية لاي مشروع بجميع مراحل تنفيذ المشروع.

- اجيد حساب الحمولات وتسليح الأبنية ليتناسب مع التكلفة الاقتصادية والامان.

- اقوم بدراسة المباني القائمة باسخدام برنامج ( ROBOT - ETABS - STADPRO - .... الخ ) واعطاء تقرير بذلك لجميع اجزاء البناء او حسب المطلوب.

- قبل التسليم يتم تنسيقها و تجهيزها للطباعة بالمقاس المطلوب حسب رغبتكم من(A0 : A4)وتسليمها بإحدى الصيغ التالية ( dwg , Pdf , docx , xlsx ) .

● ما نلتزم به :-

- نلتزم بأي جدول زمني يتم تحديده من قبلكم.

- مرونة في التعامل وتقبل التعديلات والانتقادات البناءة للأعمال فهو مبدأنا لما فيه مصلحة العمل

-العمل تحت ضغط وانهاء المشاريع بدقة و بوقت قياسى

- نهتم بجميع التفاصيل المطلوبة للمشروع

- نقدم نصائحنا لأي شي يلزم النصح به

● اخيراً

- نبحث عن علاقات طويلة الأمد مع عملائنا وليست علاقة مشروع واحد فنحن ديناميكية صارمة وطموحة وجادة جدا في عملها.

- نتعهد بأن نضع كل خبراتنا واجتهادنا في المشروع وتنفيذه في أقل وقت وبأعلى جودة وقبول أي تعديلات أو طلبات حتى بعد انتهاء المشروع وتسليمه وهذا هو واجبنا فزكاة العلم نشره ونفع الناس به.

- لن نسلم حتى تكون راضي تماما عن العمل بنسبة 100%.

- لا تتردد بمراسلتنا بخصوص اي مشروع فنحن دائماً نسعى جاهدين للرد على مدار اليوم وكل يوم.

● شكراً لمرورك وأخذ جزء من وقتك

التقييمات

الاحترافية بالتعامل
 5.0
التواصل والمتابعة
 5.0
جودة العمل المسلّم
 5.0
الخبرة بمجال المشروع
 5.0
التسليم فى الموعد
 5.0
التعامل معه مرّة أخرى
 5.0

آراء العملاء

إحصائيات

التقييمات  (9)
إكمال المشاريع
التسليم بالموعد
إعادة التوظيف
نجاح التواصلات
متوسط سرعة الرد ساعة و 36 دقيقة
المشاريع المكتملة 10
تاريخ التسجيل
آخر تواجد منذ

توثيقات

البريد الإلكتروني رقم الجوال
الهوية الشخصية

أوسمة

  • معدل إكمال مشاريع رائع
  • مستقل ملتزم
  • مستخدم منذ سنتين