نبذة عني

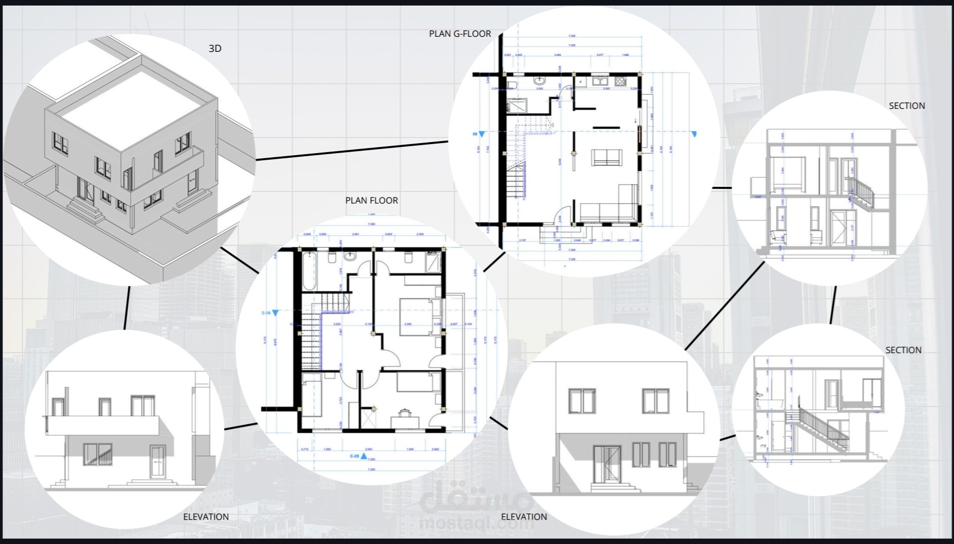
أنا مهندس معماري بخبرة واسعة في تصميم المباني وتخطيط المساحات باستخدام برنامج أوتوكاد. أتقن تحويل الأفكار المعمارية إلى تصاميم واقعية ودقيقة، بدءًا من التصميمات الأولية إلى المخططات التنفيذية التفصيلية.

أقدم خدمات تشمل:

تصميم مخططات معمارية دقيقة باستخدام أوتوكاد

إعداد الرسومات التنفيذية والإنشائية

تحليل وتطوير الأفكار المعمارية وتحويلها إلى تصاميم متكاملة

تحسين وتعديل المخططات القائمة بناءً على احتياجات العميل

إعداد عروض تقديمية معمارية متكاملة

إذا كنت تبحث عن مهندس معماري يقدم حلولًا مبتكرة ويلتزم بأعلى معايير الجودة والدقة، فأنا هنا للمساعدة. دعونا نحقق رؤيتك المعمارية معًا.

إحصائيات

التقييمات  (0)
إكمال المشاريع
التسليم بالموعد
إعادة التوظيف
نجاح التواصلات
متوسط سرعة الرد لم يحسب بعد
تاريخ التسجيل
آخر تواجد منذ

توثيقات

البريد الإلكتروني رقم الجوال
الهوية الشخصية

أوسمة

  • مستخدم منذ سنة