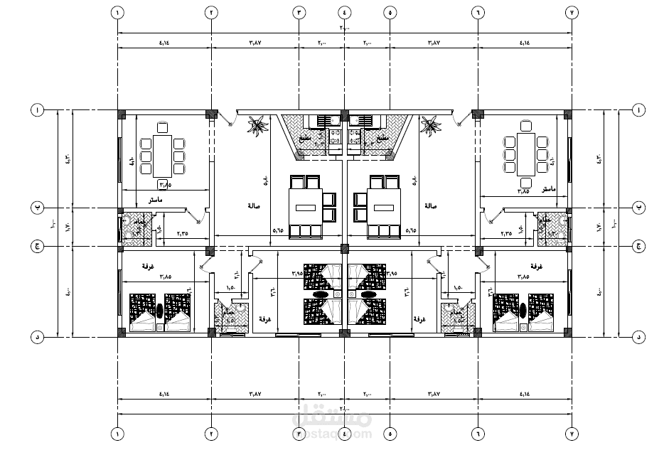
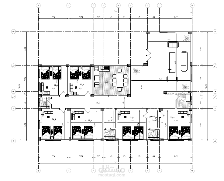
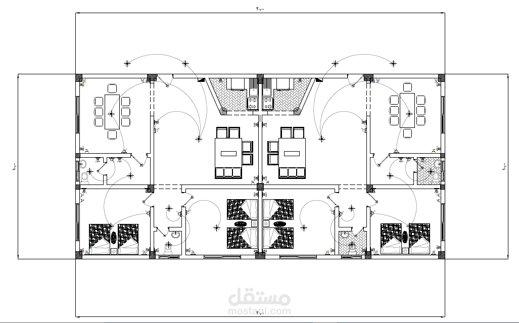
مشروع تصميم حديقة بسكن بمساحة 10 الاف متر

تفاصيل العمل

مشروع تصميم حديقة بسكن بمساحة 10 الاف متر

وتم استخراج كل من

- لوحات المعماري لكل من الحديقة + 3 مباني سكن لدور أرضي

- لوحات الكهرباء

- لوحات الصحيه ( السباكة + الصرف الصحي )

- لوحات التنفيذ الانشائية ( المحاور والأعمده + القواعد + الاسقف )

تم استخدام البرامج الاتيه

- الاوتوكاد

- الساب

- الايتابس

- الاكسيل

- الوورد

ولكم جزيل الشكر

بطاقة العمل

اسم المستقل
عدد الإعجابات
3
عدد المشاهدات
174
تاريخ الإضافة
تاريخ الإنجاز
المهارات