نبذة عني

مرحبا بك في عالمي

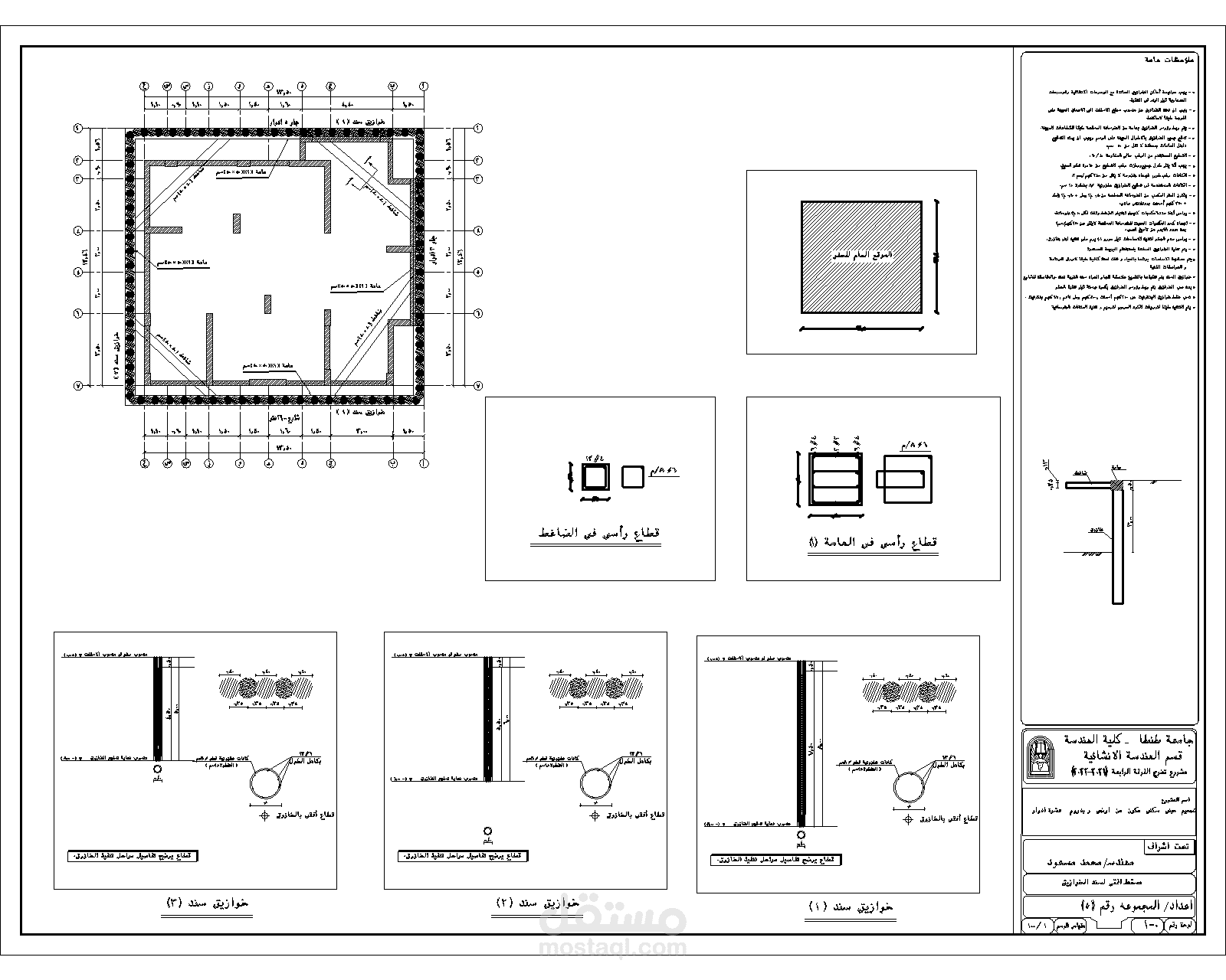
مع حضرتك مهندس محمد (دكتور جامعي بكلية الهندسة ) و متخصص في أعمال الشوب دروينج ، حصر الكميات لما لدي لدي من خبرات في المكتب الفني

كما أنني خبره في إعداد المخططات التنفيذية بدقة واحترافية

⭐ اقوم بالتصميم المعماري والانشائي لكل من المشاريع السعودية والمصريه حيث علي علم وخبره كافية في الكود السعودي والمصري لاخر تحديث واشتراطات البناء

⭐ أعمل كمهندس تصميم في أحد المكاتب الكبار الهندسية بحيث

⭐أقوم بتصميم واستخراج اللوحات المعماريه ( لوحات اوتوكاد - لوحات تلوين معماري باستخدام الفوتوشوب )

واللوحات الهندسيه المدنيه الانشائيه (التصميميه - لوحات التفاصيل "الشوب دروينج")

باستخدام البرامج الاتيه :

1- Autocad

2- safe

3- sap 2000

4- Etabs

5- csi column

6- Revit structure

7-ASD

8-mocrosoft office ( excell- word-powerpoint )

9-photoshop

10- 3d max

نطاق عملي :

1)إعداد الرسومات والتقسيمات المعمارية 2D.

2)أعمال حصر الكميات للفيلات والمباني المعماريه الخرسانيه من خرسانات وحديد و تشطيبات واستخراج BOQ احترافيه

3)تصميم المباني والمنشأت المعدنية Steel Structure Building .

4)إعداد كافة الرسومات التنفيذية (Shop Drawings) للمباني الخرسانية والمعدنية.

5)عمل حصر وجداول كميات لكافة العناصر الإنشائية (خرسانية أو معدنية ).

6)مهارات عالية جدا في التعامل في Microsoft Word, Microsoft Excel, PowerPoint.

"الاحترافية و التسليم خلال الوقت المطلوب هما شعاري"

يشرفني العمل مع الجميع لأخراج التصاميم المبدعه التي تلبي متطلبات العميل.

وشكرا .

التقييمات

الاحترافية بالتعامل
 4.8
التواصل والمتابعة
 4.8
جودة العمل المسلّم
 4.8
الخبرة بمجال المشروع
 4.8
التسليم فى الموعد
 4.8
التعامل معه مرّة أخرى
 4.8

آراء العملاء

إحصائيات

التقييمات  (52)
إكمال المشاريع
التسليم بالموعد
إعادة التوظيف
نجاح التواصلات
متوسط سرعة الرد 30 دقيقة
المشاريع المكتملة 52
تاريخ التسجيل
آخر تواجد منذ

توثيقات

البريد الإلكتروني رقم الجوال
الهوية الشخصية

أوسمة

  • معدل إكمال مشاريع رائع
  • مستقل ملتزم
  • مستقل مميز
  • مستخدم منذ 6 سنوات