نبذة عني

مهندسه معماريه

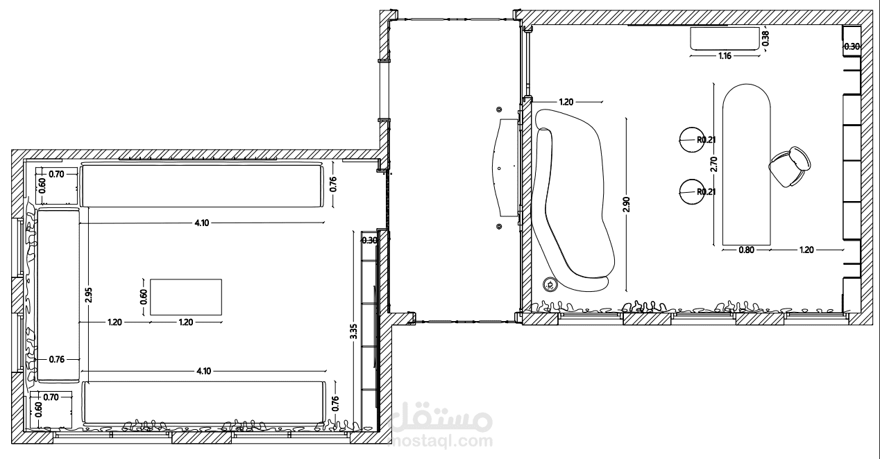
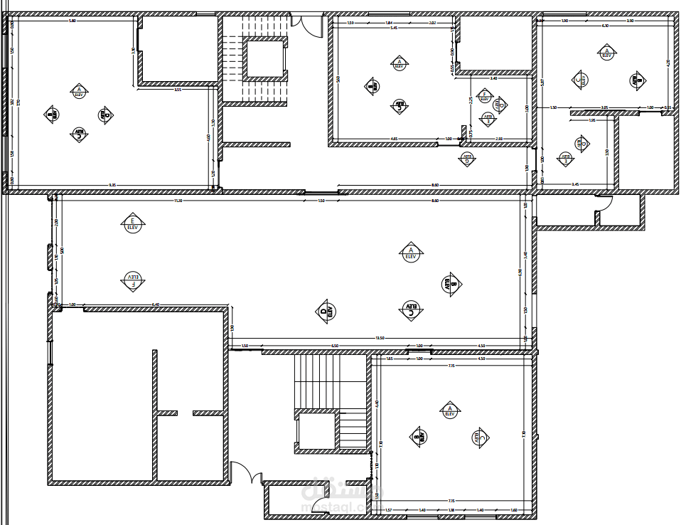
اعمل على المخططات التنفيذيه ومخططات التمديدات الكهربائيه

ومخططات التصميم الداخلى بجميع مراحله

استطيع العمل على العديد من البرامج الهندسيه منل الاوتوكاد والريفيت وبرنامج اسكتش اب

لدى خبره ثلاثه اعوام فى اعمال المكتب الفنى

يمكننى عمل الرسومات التنفيذيه للعديد من المشاريع السكنيه و الاداريه والتجاريه

يمكننى انجاذ العديد من المهام فى زمن قصير

إحصائيات

التقييمات  (0)
إكمال المشاريع
التسليم بالموعد
إعادة التوظيف
نجاح التواصلات
متوسط سرعة الرد لم يحسب بعد
تاريخ التسجيل
آخر تواجد منذ

توثيقات

البريد الإلكتروني رقم الجوال
الهوية الشخصية