نبذة عني

Work experience

SENIOR TECHNICAL OFFICE ENGINEER / PROJECT COORDINATOR/ PROCUREMENT ENGINEER AT ORASCOM CONSTRUCTION (Central Bank of

Egypt in New Capital City) /Egypt

• Follow up the given tasks to my team every day and supporting them with integrated solutions.

• Work as a project coordinator (Architectural, Structural, and MEP).

• Prepare shop drawings (Block work – Finishing -…..).

• Drawings reviews (Arch, Structure and MEP).

• Prepare Martial submittals for different Martials.

• Review catalogs, Cooperate with SRM division to search for and add new Suppliers in different trades.

• Act as a Coordinator for projects under supervision of the Senior Engineer or upper levels.

• Study project drawings, specifications and related documents.

• Review tender’s proposal, technical, and financial documents.

• Submitting drawings and details from consultant to be admitted in site.

• Check drawings and materials to be followed by the project tenders and specifications.

SENIOR TECHNICAL OFFICE ENGINEER AT ORASCOM CONSTRUCTION

(INTERNATIONAL SHOOTING CLUP in New Capital City)/Egypt

• Prepare shop drawings (Hardscape Package – Block work – Finishing -…..).

• Drawings reviews (Arch, Structure and MEP).

• Releasing shop drawings and details for finishing works.

• Check drawings and materials to be followed by the project tenders and specifications

TECHNICAL OFFICE ENGINEER / PROJECT COORDINATOR

ORASCOM CONSTRUCTION (New Ministry of Defense of Egypt in New Capital City)

/Egypt

- “Project contains 10 Military Administration buildings, The Main building, (15) Tunnels and

(6) Power Stations”

• Follow up the given tasks to my team every day and supporting them with integrated solutions.

• Work as a project coordinator for (15) Tunnels and its service tunnel stations and (6) Power stations building (Architectural, Structural, MEP) for Chillers and Cooling fan towers system consider as a green building.

• Prepare shop drawings for (6) Power Stations.

• Drawings reviews (Arch, Structure and MEP).

• Releasing shop drawings and details for finishing works.

• Submitting drawings and details from consultant to be admitted in site.

• Check drawings and materials to be followed by the project tenders and specifications.

TECHNICAL OFFICE ENGINEER / PROJECT COORDINATOR

ORASCOM CONSTRUCTION ( Palm hills -Golf views project- 6 October) (Budget: Appx 350 million EGP)

(Residential villas built on 180 feddans of golf) - (consultant: ECG-AAW)

Job Description:

- Prepare shop drawing for villas (Architecture shop drawing) and as-built drawings.

- Coordinate the arch. Drawings with structure, electrical and plumping drawings.

- Assist tech. office manager in revising shop drawing of arch engineers.

- Assist tech. office manager in scheduling the site requirement of the other managers.

- Coordinate the general site work with the drawings.

- Prepare / answer Request for Information, Field Change Requests and Field Work Order Requests.

- Quantity survey for elements and preparing the invoices and variation order. (Additional task).

- Support Construction management and engineering at site in preparation of weekly reports,

Technical Office and Site Engineer at Middle East Caravan. Job Description:

- Prepare shop drawings and as-built drawings, prepare the design for Pre-Fabricated Buildings.

- Make BOQ of Building and the finished job.

- Study and prepare requests for information for various projects, follow up subcontractor’s progress.

- Review and issue order to pay for subcontractors ‘invoices.

- Day-to-Day management of the site including supervising and monitoring the site labor force and the work of any subcontractors planning the work and efficiently organizing the plant and site facilities in order to meet agreed deadlines.

Technical Office and Site Engineer at Sasheco co. for construction.

Job Description:

- Prepare shop drawing and BOQ of Building and the finished job.

- follow up subcontractor’s progress.

- Support Construction management and engineering at site in preparation of weekly reports.

-Coordinate the arch. Drawings with structure, electrical and plumping drawings.

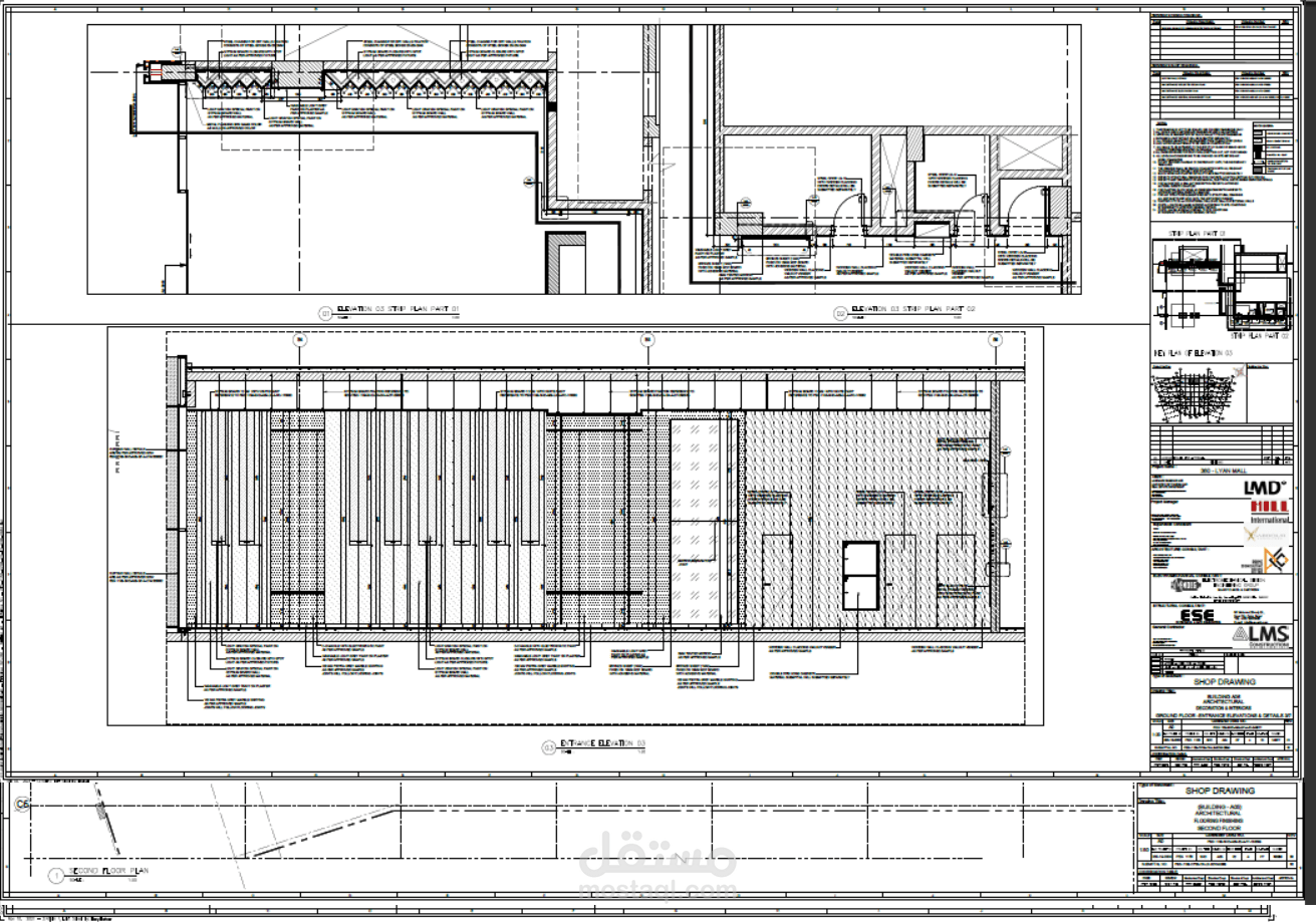
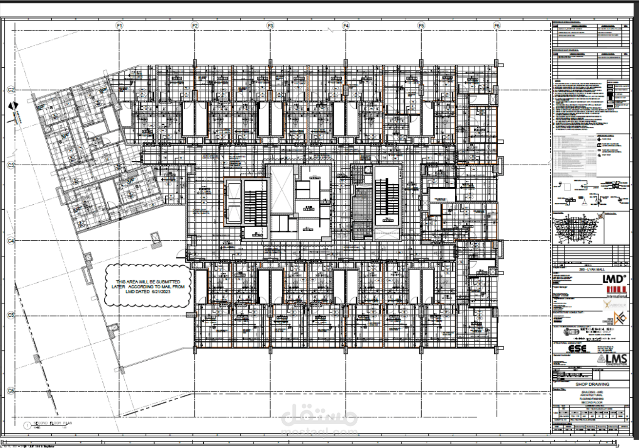
TEAM LEADER TECHNICAL OFFICE ENGINEER) AT LMS FOR CONSTRUCTION.

Responsible for 5 projects (Mall 360 project at 5th statement – Bus stop at 10th District Nasr city – Mall 1 AT Shinzo Abi – Mall 2 AT Shinzo Abi – Car service center AT Shinzo Abi )

Follow up the given tasks to my team every day and supporting them with integrated solutions.

Work as a project coordinator (Architectural, Structural, and MEP).

Review shop drawings (Block work – Finishing -….).

Drawings reviews (Arch, Structure and MEP)

Training experience

- 2010 Summer training at: Samcreat.

- 2012,2013 Summer training at: SALEH & HEGAB for Engineering Consultancy.

Computer Skills

- Revit 2021 Architecture & (BIM Awareness).

- Auto CAD - Autodesk Quantity Takeoff

- 3D sketch up - 3D Max - Photoshop

- MS Word – MS PowerPoint – MS Excel

- Microsoft Windows – Internet Explore

- Excellent in Computer Maintenance (Hardware and Software)

-Primavera.

إحصائيات

التقييمات  (0)
إكمال المشاريع
التسليم بالموعد
إعادة التوظيف
نجاح التواصلات
متوسط سرعة الرد ساعتين و 52 دقيقة
تاريخ التسجيل
آخر تواجد منذ

توثيقات

البريد الإلكتروني رقم الجوال
الهوية الشخصية

أوسمة

  • مستخدم منذ سنتين