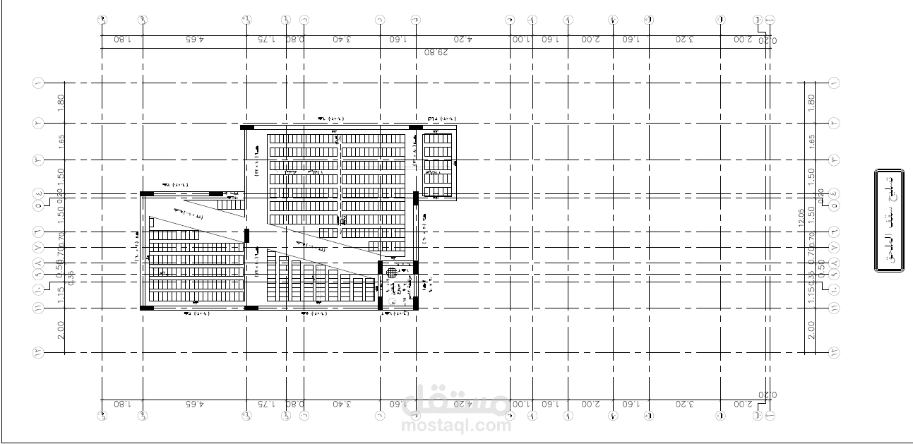
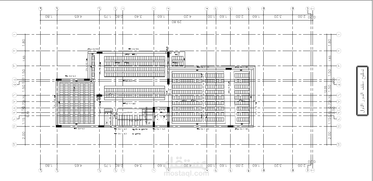
مراجعة التصميم الإنشائي و حساب الكميات لمشروع فيلا

تفاصيل العمل

أحد المشاريع في المملكة العربية السعودية.

عبارة عن فيلا 3 طوابق (أرضي _ أول _ ملحق ) تم عمل مراجعة للتصميم الإنشائي و المعماري و عمل حصر للخرسانة و حديد التسليح.

بطاقة العمل

اسم المستقل
عدد الإعجابات
2
عدد المشاهدات
460
تاريخ الإضافة
تاريخ الإنجاز
المهارات