تفاصيل العمل

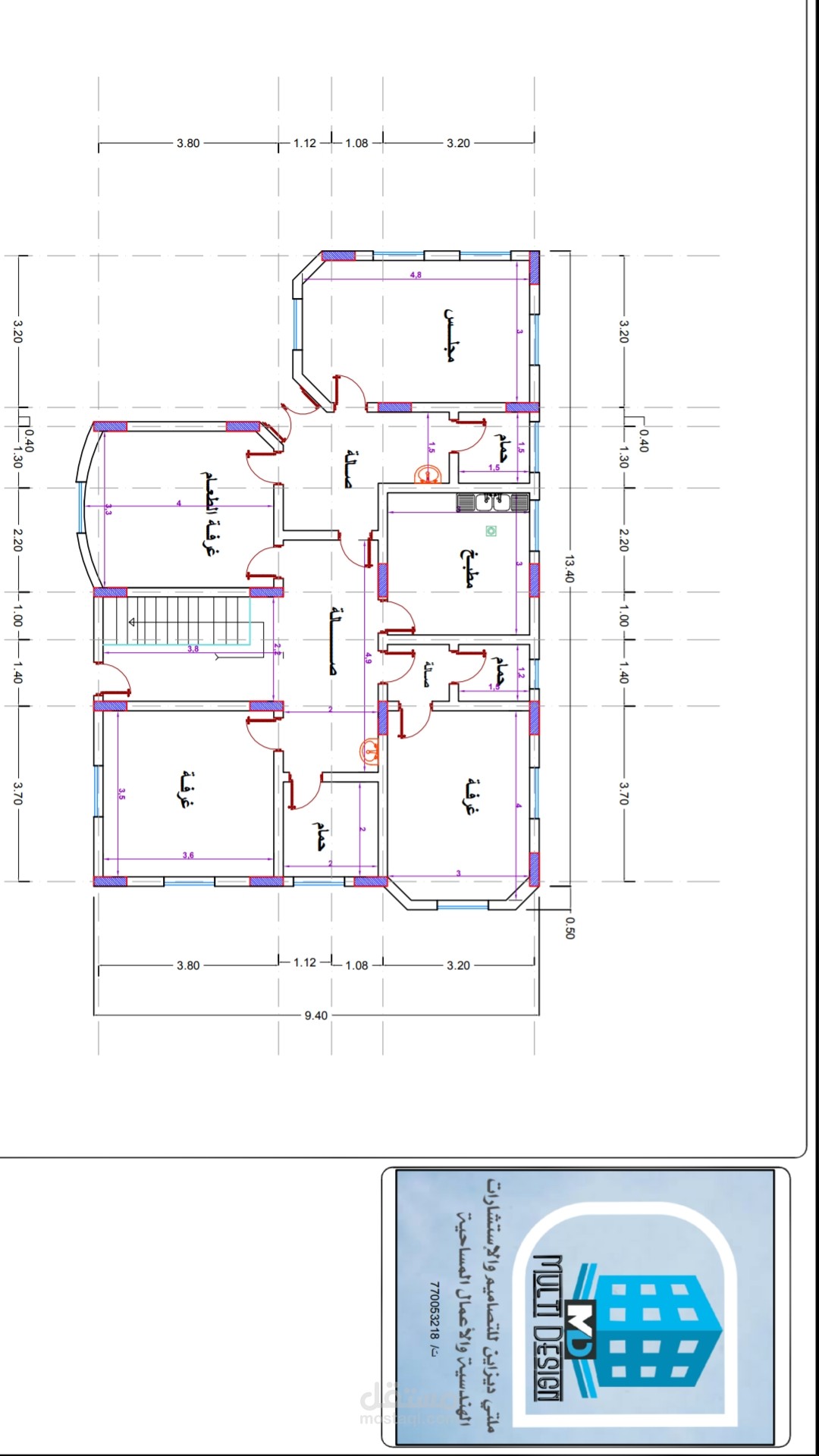
قدمت في هذا العمل ومثله العديد من الاعمال الاخرى بعمل التصاميم المعمارية و الانشائية وفق الكود السعودي او اي كود آخر. باستخدام برنامج ETABS او ROBOT و الاوتوكاد

بطاقة العمل

اسم المستقل
عدد الإعجابات
0
عدد المشاهدات
259
تاريخ الإضافة
المهارات