تصميم فيلا سكنية وعمل المخططات الإنشائية كاملة

تفاصيل العمل

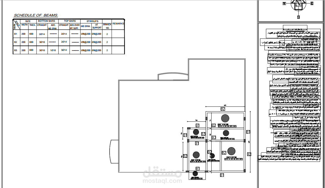
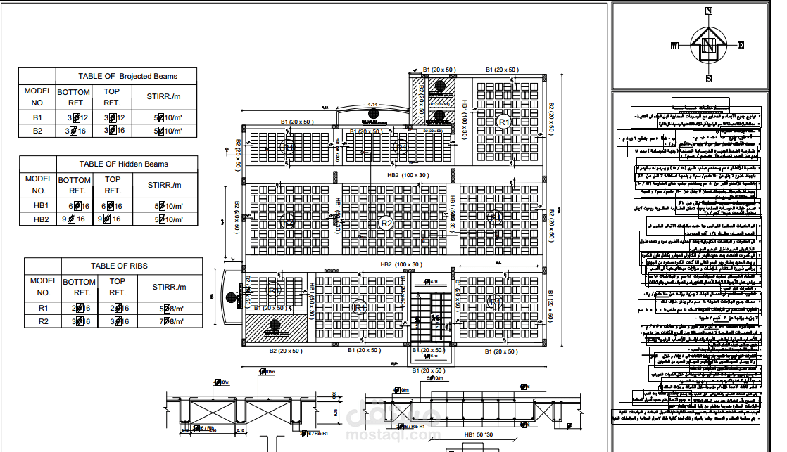
تم الإنتهاء من تصميم فيلا سكنيةوعمل التحليل الإنشائي علي برنامج ال Safe وضع النظام الإنشائي ابنظام الهوردي للفيلا والمساحات وإخراج كافة المخططات الإنشائية كما موضح

الفيلا في المملكلة العربية السعودية بكود البناء السعودي

بطاقة العمل

اسم المستقل
عدد الإعجابات
0
عدد المشاهدات
481
تاريخ الإضافة
تاريخ الإنجاز
المهارات