تفاصيل العمل

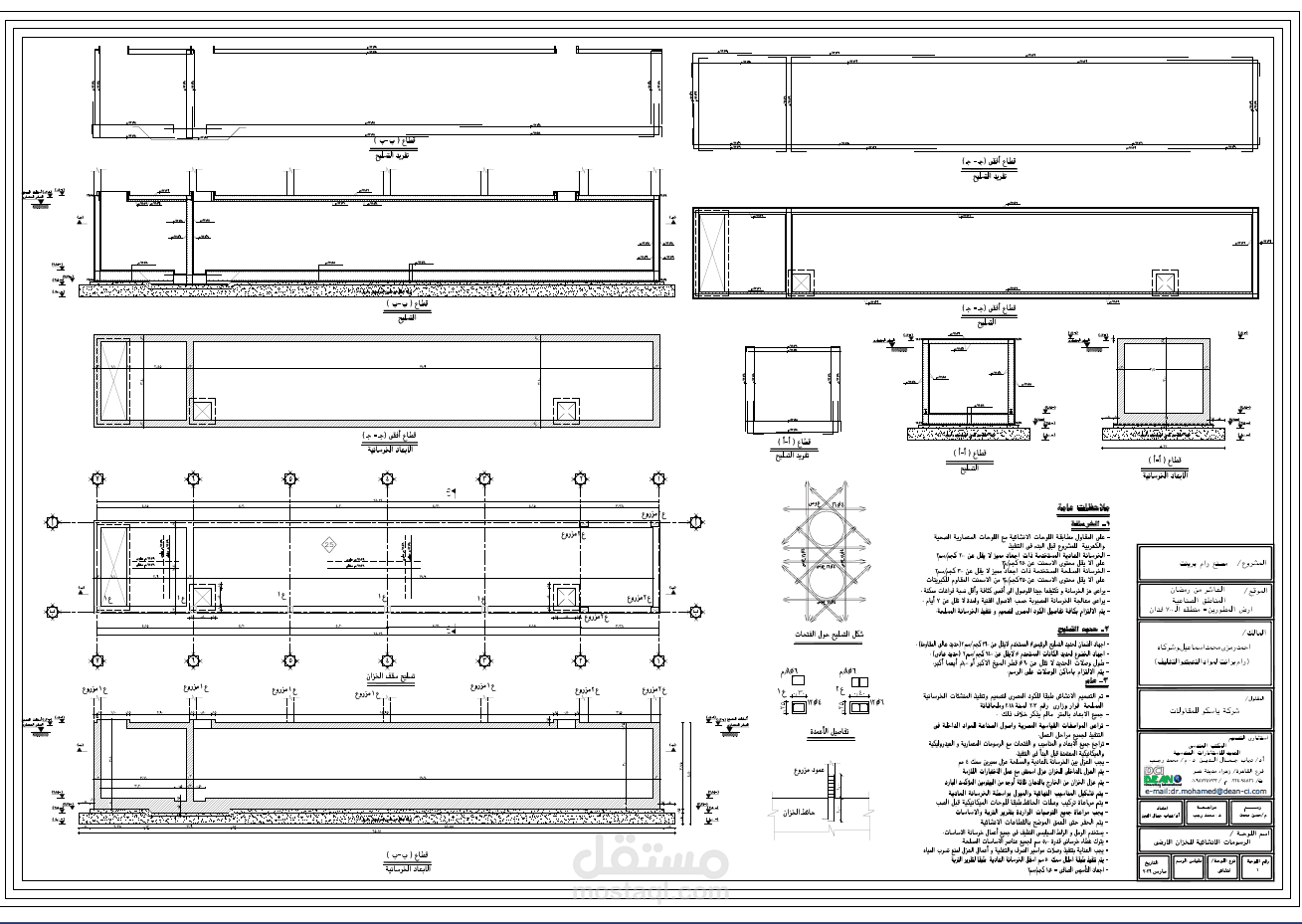
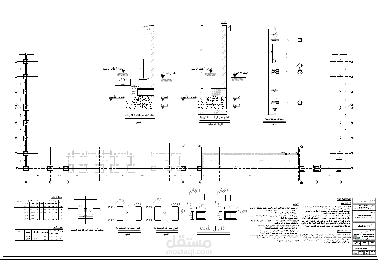
عملت على مشروع إنشائي قمت فيه بإعداد حصر كميات دقيق لكافة عناصر الهيكل الخرساني، مع تفريد حديد التسليح (Bar Bending Schedule) بشكل تفصيلي يضمن تقليل الهدر وتحقيق أفضل استغلال للمواد.

كما قمت بإعداد رسومات الـ Shop Drawing لجميع العناصر الإنشائية، بما يشمل القواعد، الأعمدة، الكمرات والبلاطات، مع توضيح كامل للتفاصيل التنفيذية بما يتوافق مع الكودات الهندسية ومتطلبات الموقع.

ساهم ذلك في تسهيل عملية التنفيذ، وضبط الكميات، وتقليل الأخطاء بالموقع.

بطاقة العمل

اسم المستقل
عدد الإعجابات
0
عدد المشاهدات
2
تاريخ الإضافة
المهارات