تفاصيل العمل

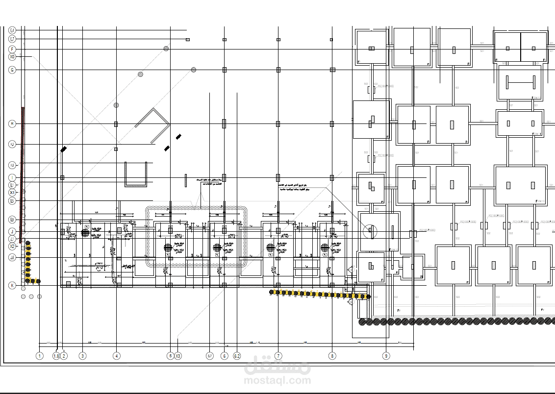
قمت بإعداد حصر الكميات لمشروع مول 2 باستخدام Excel، حيث تم تحليل الرسومات الهندسية واستخراج الكميات بدقة لضمان وضوح التكاليف وسهولة التنفيذ.

يشمل العمل حصر بنود الخرسانة والحديد بشكل منظم، مع تقديم جداول كميات مرتبة وقابلة للتعديل.

المشروع حاليًا قيد التنفيذ، وما زال العمل مستمرًا على مراجعته وتحديث الكميات وفقًا لمتطلبات الموقع والتعديلات المستجدة.

ملفات مرفقة

بطاقة العمل

اسم المستقل
عدد الإعجابات
0
عدد المشاهدات
3
تاريخ الإضافة
تاريخ الإنجاز
المهارات