تفاصيل العمل

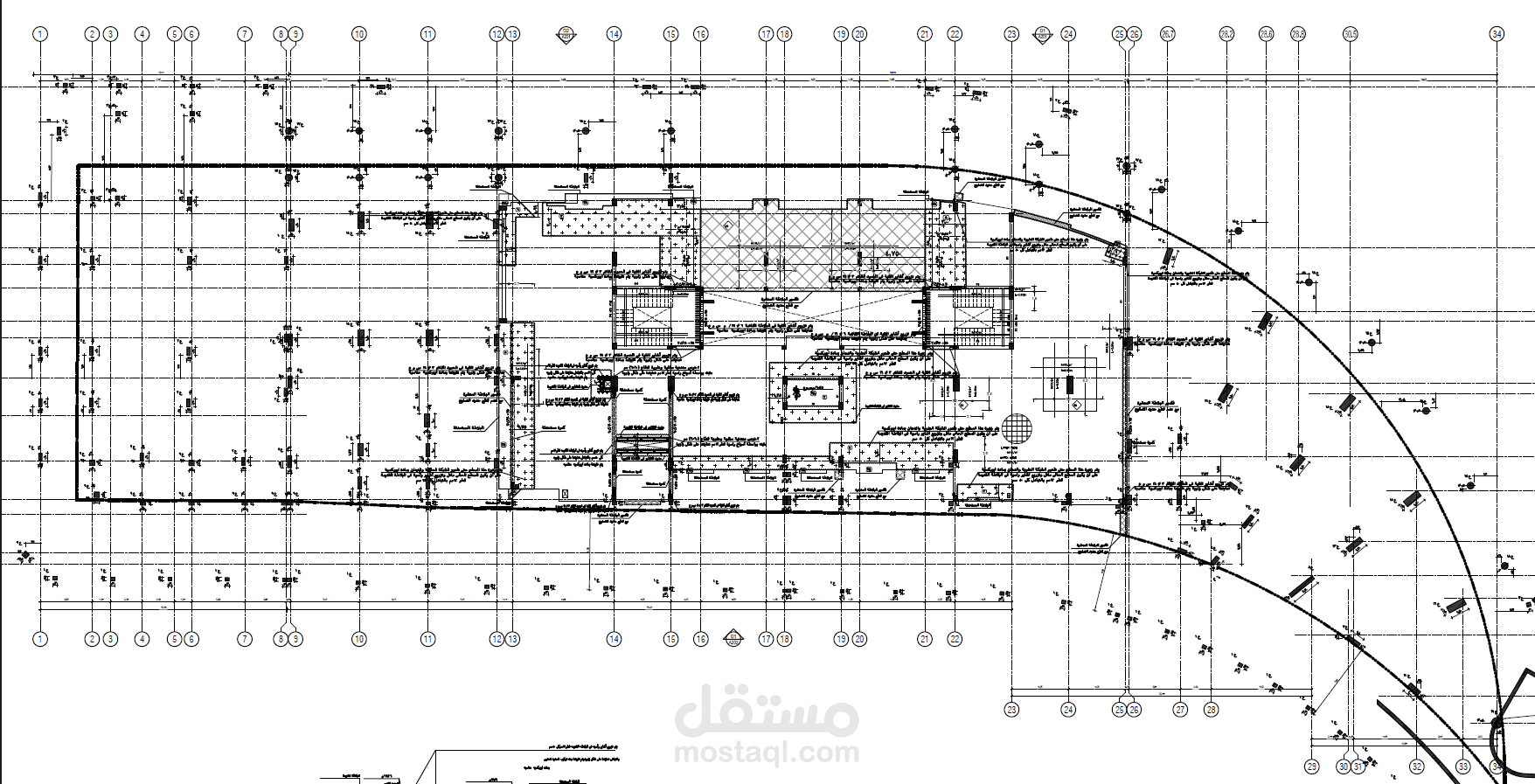
قمت بإعداد التصميم الإنشائي لأعمال التسليح الخاصة بمشروع مول تجاري مكوّن من عدة طوابق، مع مراعاة الأحمال المختلفة وطبيعة الاستخدام التجاري للمبنى و حصر كمياته.

شمل العمل تصميم تفاصيل التسليح للعناصر الإنشائية مثل الكمرات والبلاطات والأعمدة، بالإضافة إلى مراجعة وتنفيذ أعمال الصب بما يضمن تحقيق أعلى درجات الأمان والجودة.

كما قمت بتنفيذ أعمال تدعيم لجزء من المبنى لضمان استقراره الإنشائي، مع إجراء تعديلات هندسية على بعض العناصر بما يتوافق مع متطلبات المشروع دون التأثير على السلامة العامة.

تم الاعتماد على الدقة في الحسابات والتنظيم في إخراج اللوحات، مما ساهم في تسهيل التنفيذ في الموقع وتقليل الأخطاء.

ملفات مرفقة

بطاقة العمل

اسم المستقل
عدد الإعجابات
0
عدد المشاهدات
4
تاريخ الإضافة
تاريخ الإنجاز
المهارات