تفاصيل العمل

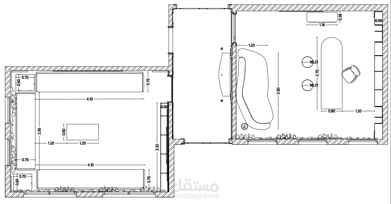
رسومات تنفيذيه لمجلس وغرفه مكتب

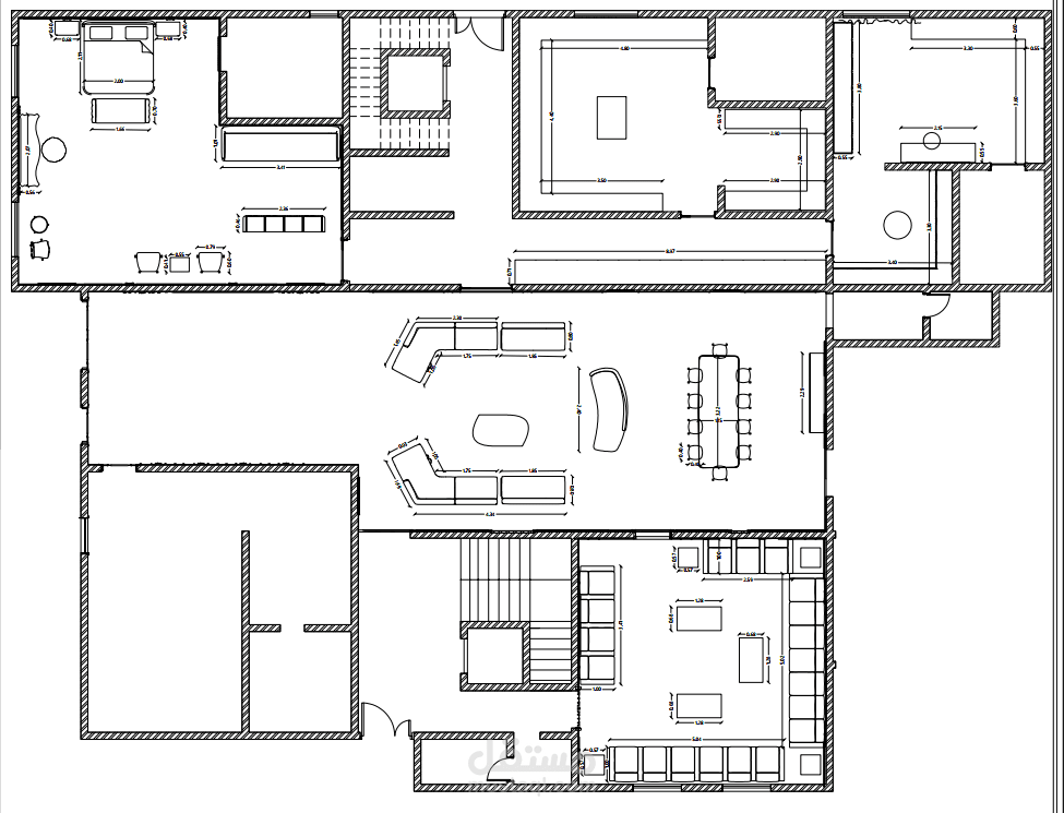
تم عمل اللوحات التفصيليه للفراغات

المخططات تضم مقاسات الاثاث المستخدم

وانواع الاضاءات المستعمله فى الفراغ وطريقه توصيلها

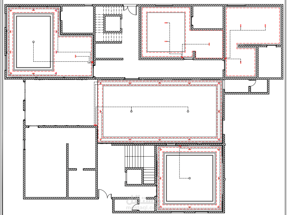
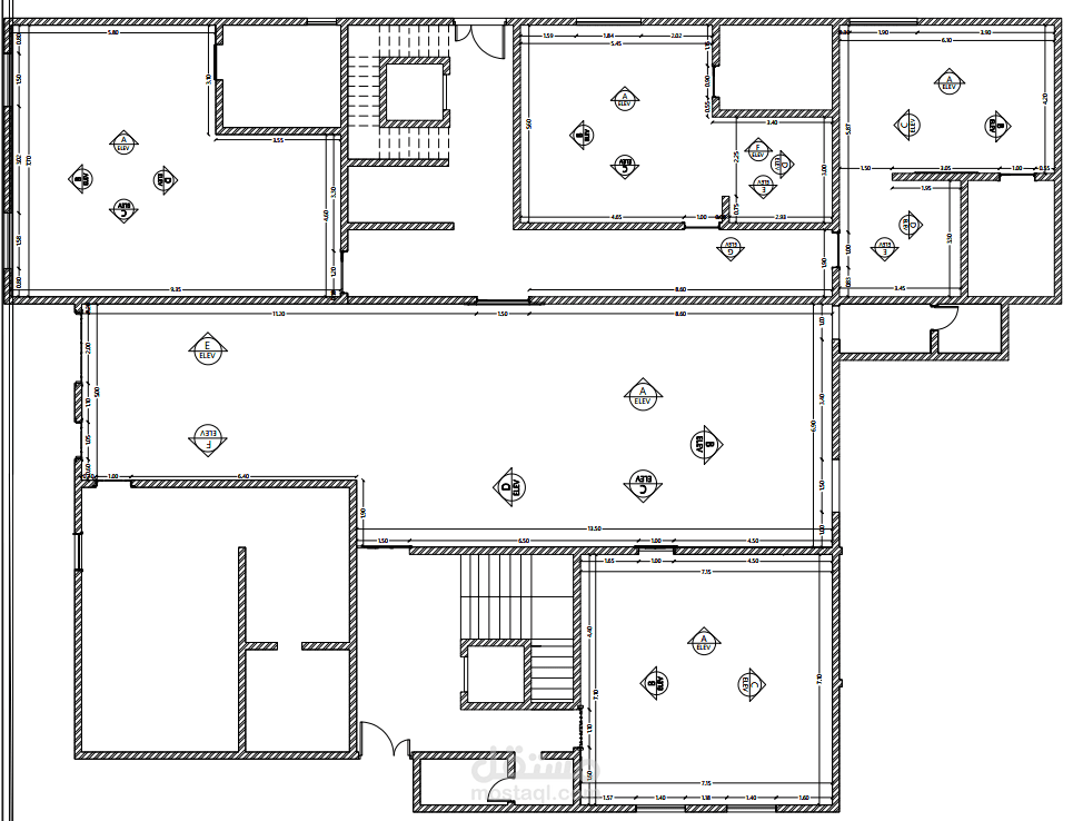
لوحه تنفيذيه لسقف الجبسمبورد

وقطاعات تفصيليه توضح الخامات المستخدمه فى تشطيب الحوائط

بطاقة العمل

اسم المستقل
عدد الإعجابات
0
عدد المشاهدات
1
تاريخ الإضافة
تاريخ الإنجاز
المهارات