تفاصيل العمل

وصف المشروع:

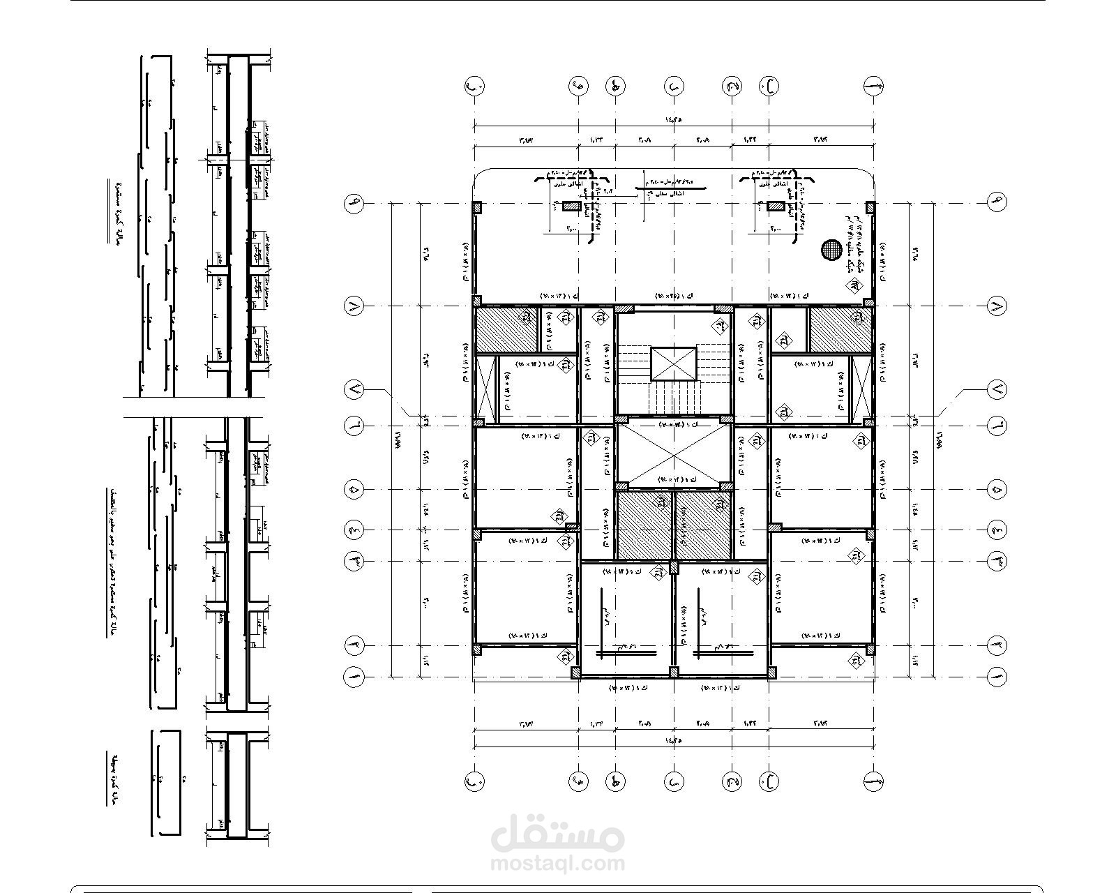
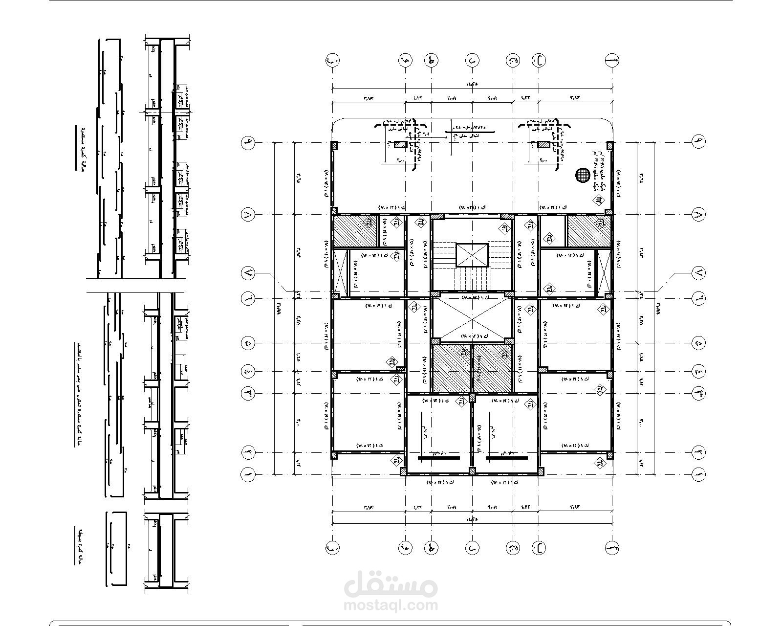
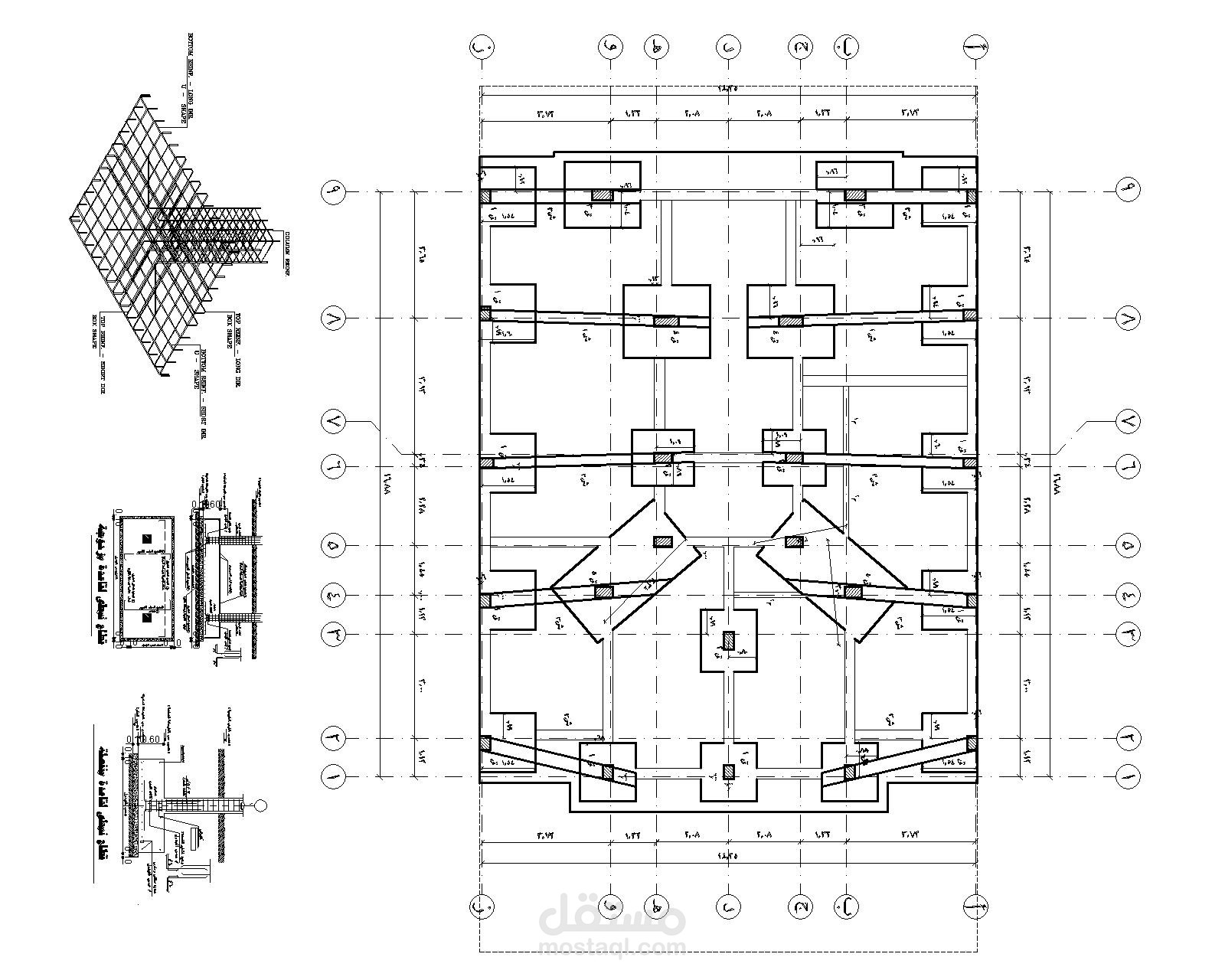
قمت بإعداد التصميم الكامل عمارة سكنية بمساحة إجمالية 250 م²، حيث شمل العمل كافة التخصصات الهندسية بداية من التخطيط المعماري وحتى المخططات التنفيذية.

️ الأنشطة التي تم تنفيذها:

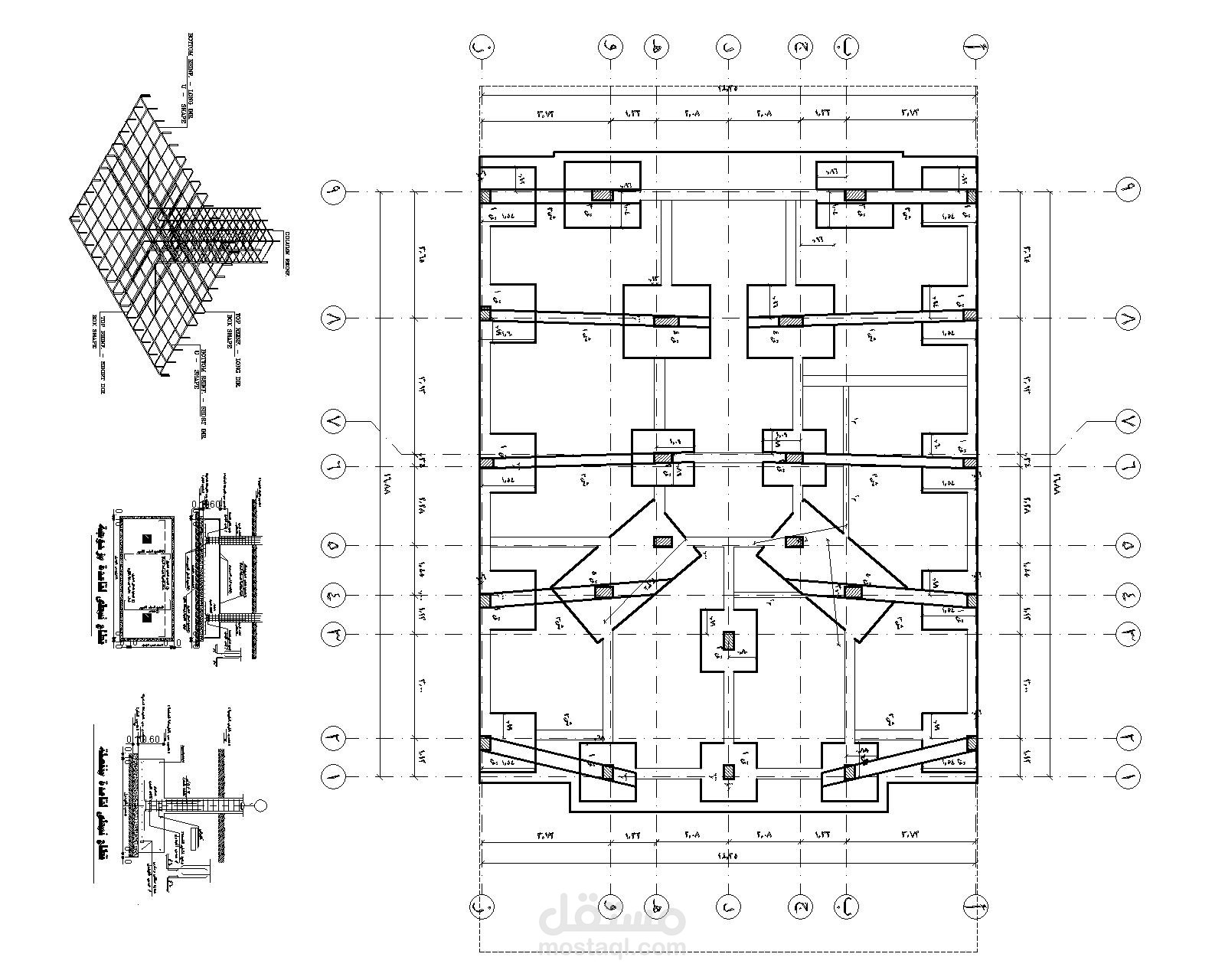
تصميم المخططات المعمارية مع توزيع داخلي مدروس يحقق الراحة والخصوصية.

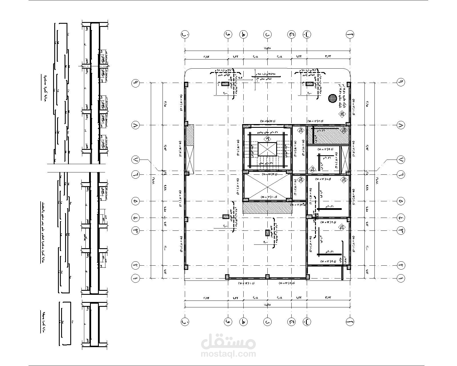
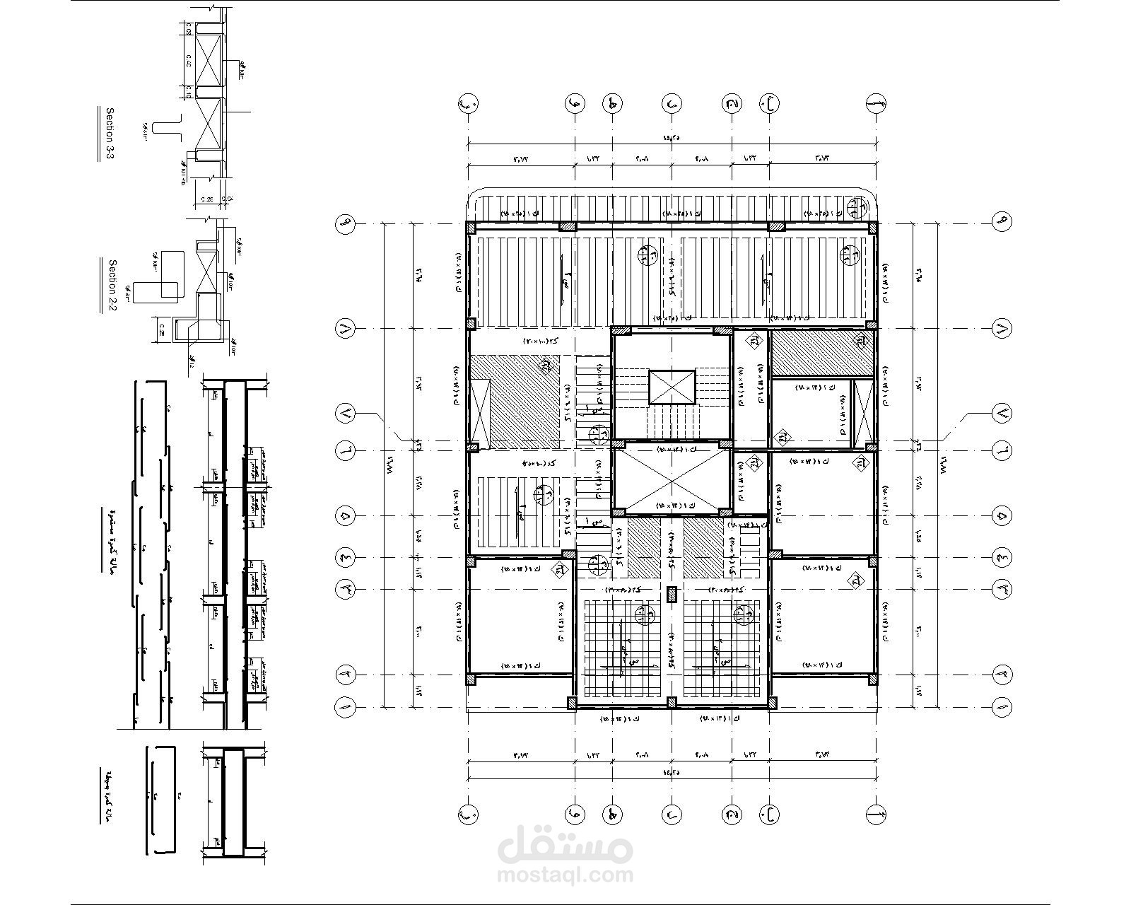
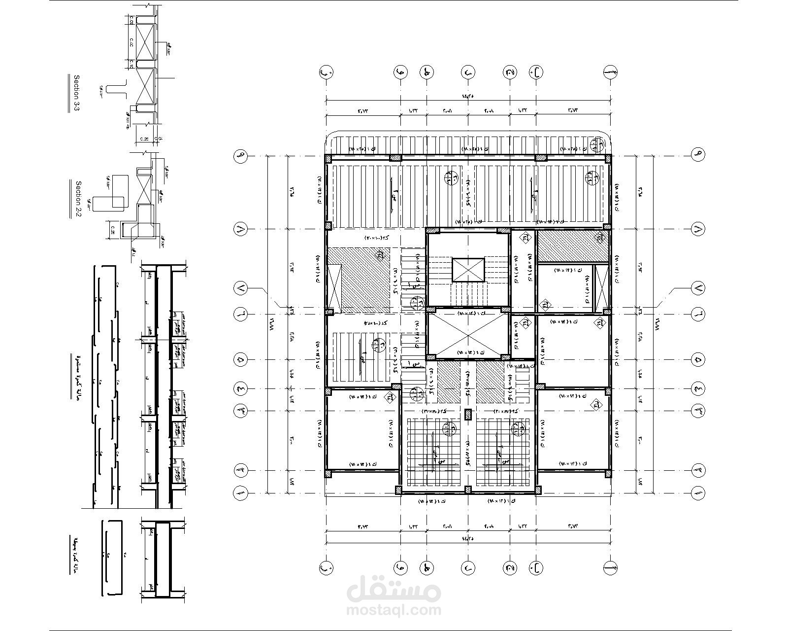
إعداد التصميم الإنشائي شاملاً جميع العناصر (الأساسات، الأعمدة، الأسقف، والجدران الحاملة)، باستخدام برامج Etabs وSafe وSAP2000.

إعداد الرسومات التنفيذية (Shop Drawings) لتسهيل أعمال التنفيذ في الموقع.

تصميم أنظمة الكهرباء، التكييف، المياه والصرف الصحي بشكل متكامل ومتناسق.

إعداد جداول الحصر والكميات باستخدام Excel بدقة عالية لدعم مرحلة المقاولات والتسعير.

التنسيق الكامل بين جميع التخصصات لضمان خلو المشروع من التعارضات الفنية.

البرامج المستخدمة:

AutoCAD – Revit – Etabs – Safe – Excel – SAP2000

مميزات المشروع:

استغلال مثالي للمساحة مع تصميم أنيق وعملي.

توافق تام بين العناصر المعمارية والإنشائية والخدمات.

تسليم كامل بجودة عالية وجاهزية للتنفيذ.