الرئيسية
المستقلين
Emad L.
معرض الأعمال
اطلب عمل مماثل
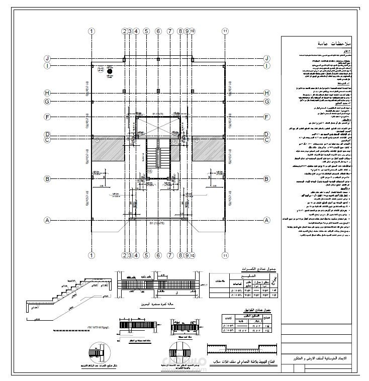
falt slab reinforcement
تفاصيل العمل
تصميم لسقف flat slab
ملفات مرفقة
PDF
Bassment-floor-RFT.pdf
(753.29KB)
PDF
repeated-floor-RFT.pdf
(956.68KB)
ICO
repeated-floor-DXF.ico
(12.02KB)
بطاقة العمل
اسم المستقل
Emad L.
عدد الإعجابات
0
عدد المشاهدات
11
تاريخ الإضافة
05/10/2024
المهارات
مايكروسوفت إكسل
أوتوكاد
إيتابس
SAFE
ساب 2000
×