تفاصيل العمل

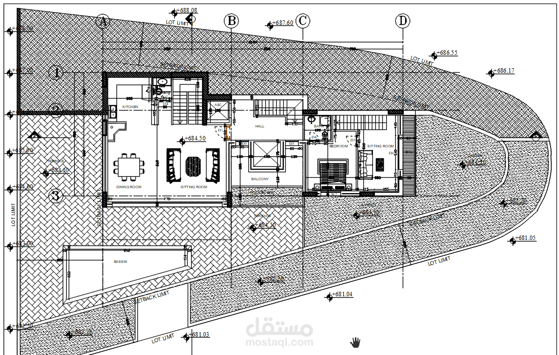
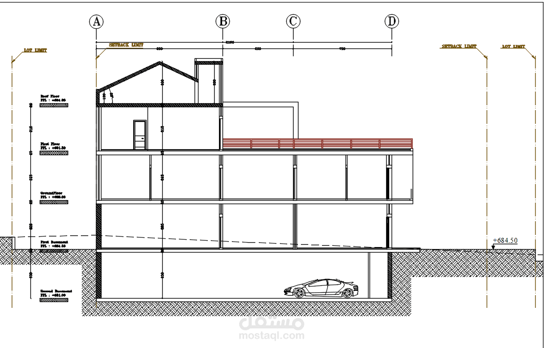
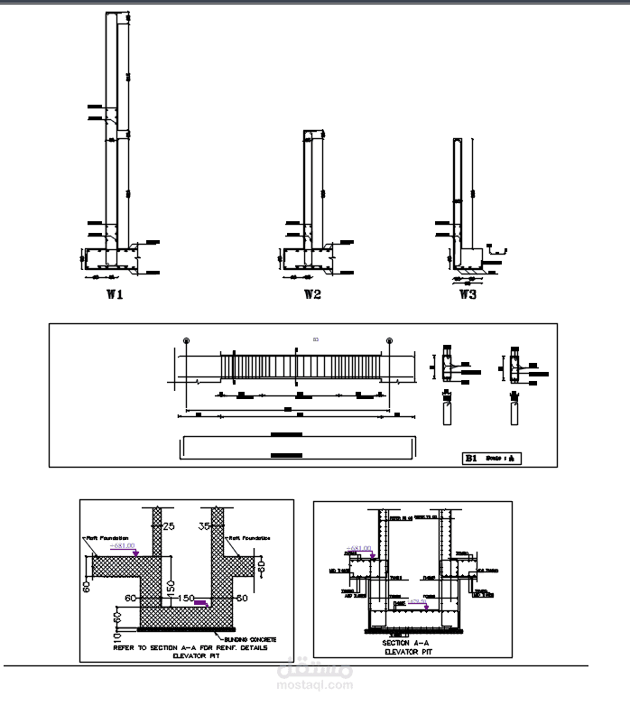
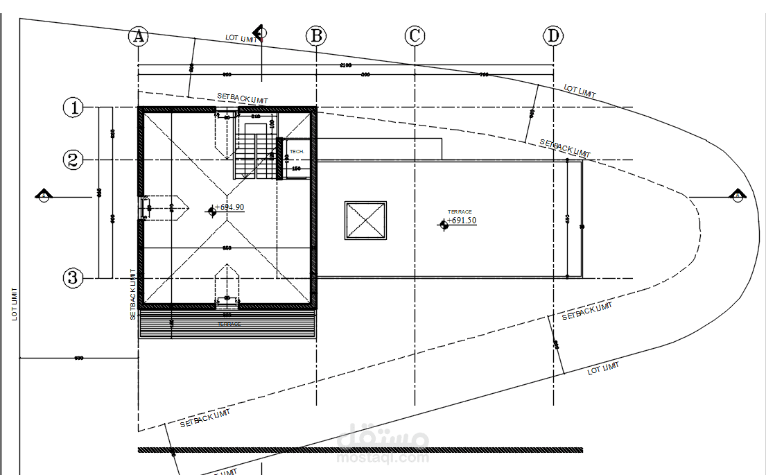
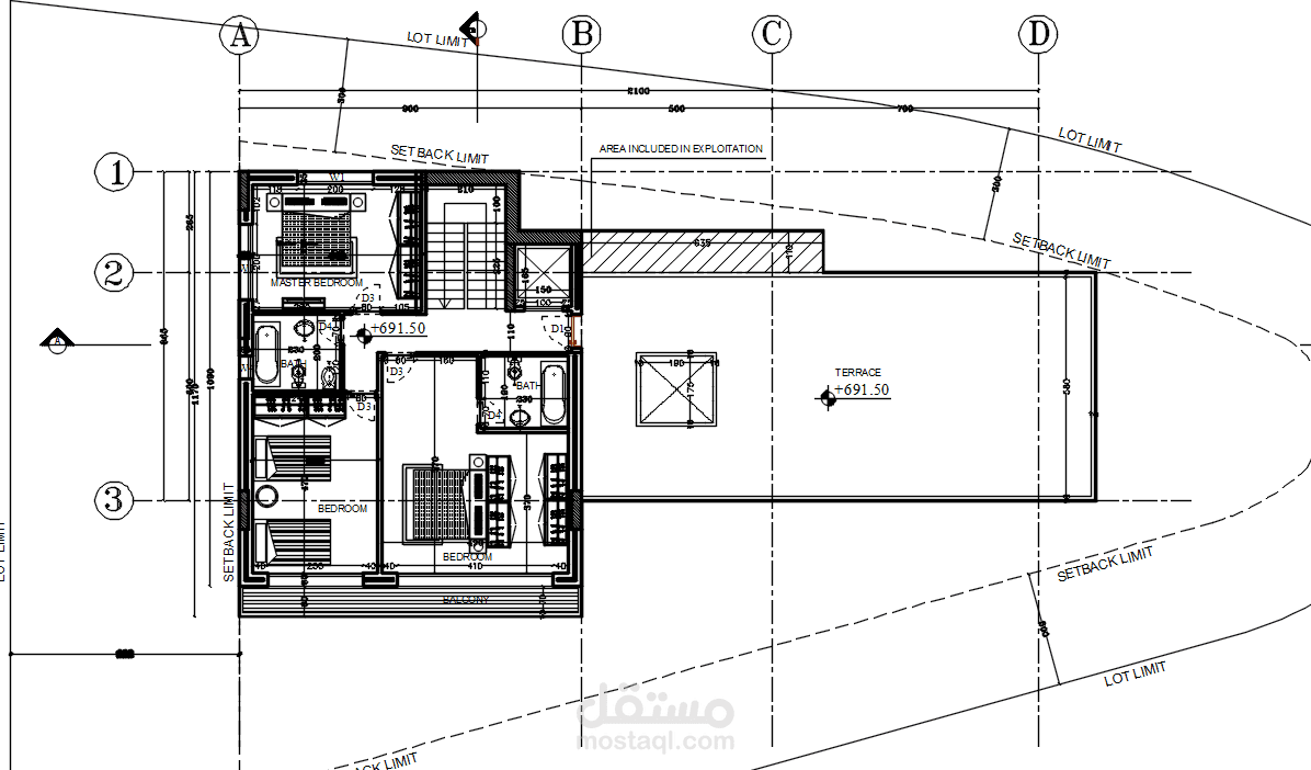
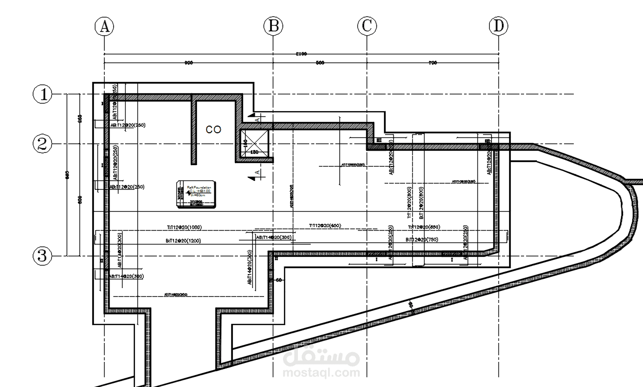
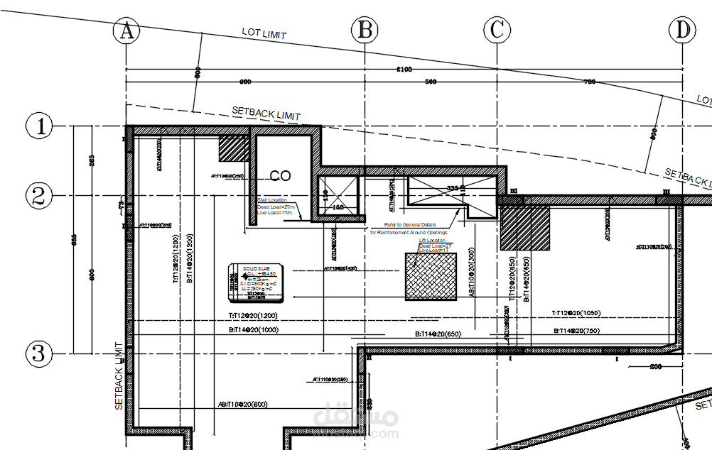
لقد قمت بالتصميم المعماري والتصميم الانشائي لفيلا سكنية في منطقة Oyoun-670 المؤلفة من قبو وارضي وطابقين وتمت مراعاة كافة شروط الكود الامريكيACI318

بطاقة العمل

اسم المستقل
عدد الإعجابات
0
عدد المشاهدات
26
تاريخ الإضافة
تاريخ الإنجاز
المهارات