تفاصيل العمل

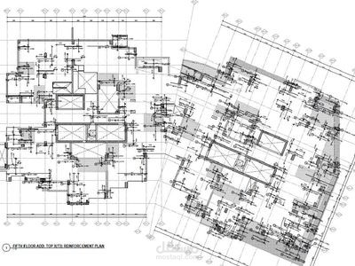
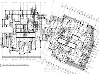
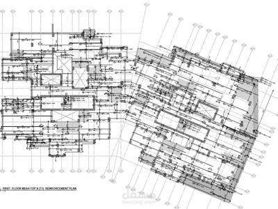
It was Great to be the first team in Egypt take this challenge in 2020 and extract all Reinforcement shopdrawings from Revit model in one of the biggest residential projects in Egypt.

it was a great success story with a great experience to all of us,

-Solving all presentation issues.

-Extracting BBS with our own presentation.

-Updating the RFT modeling with concrete modifications.

-Making the Reinforcement as other disciplines in BIM environment and coordinate with other disciples.

-Reach to more than 4000 sheets at the final of the project.

بطاقة العمل

اسم المستقل
عدد الإعجابات
0
عدد المشاهدات
25
تاريخ الإضافة
تاريخ الإنجاز
المهارات