تفاصيل العمل

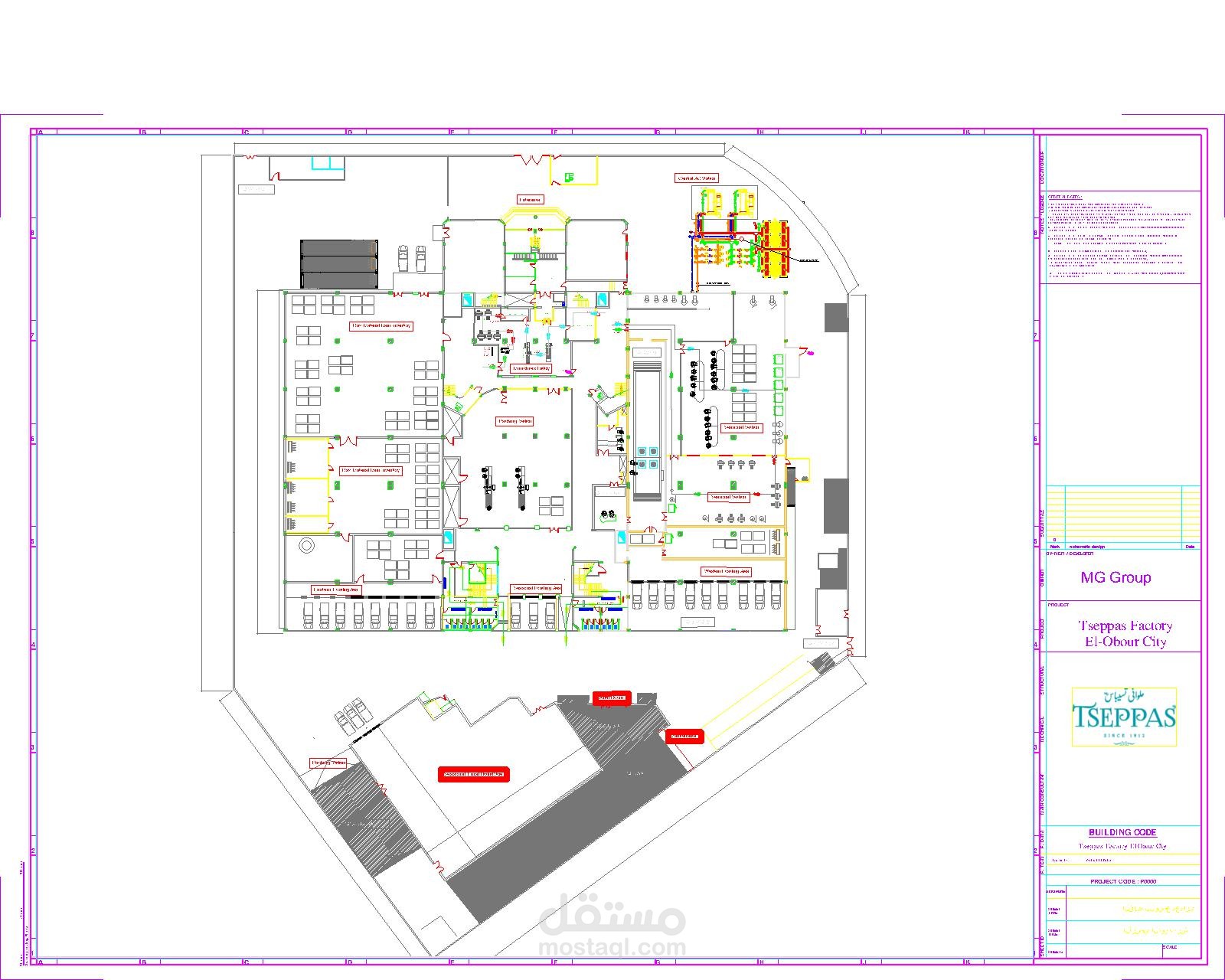
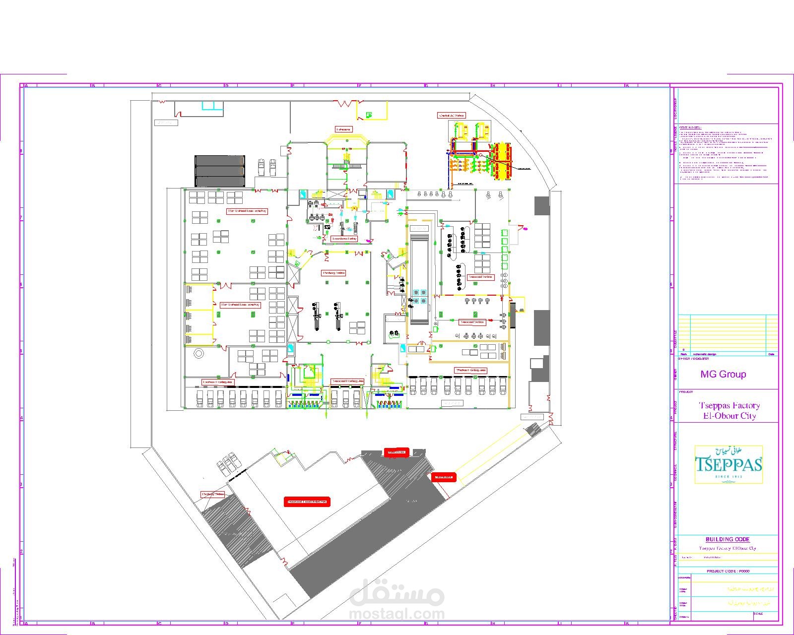
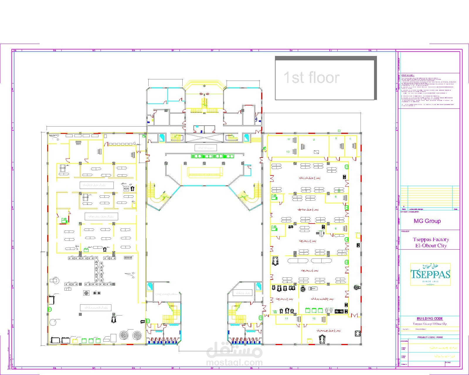
رفع رسومات AS BUILT كامل لمصنع بمدينة العبور يتكون من 3 طوابق بالاضافة الي فرش وترتيب الماكينات داخل المصنع

بطاقة العمل

اسم المستقل
عدد الإعجابات
0
عدد المشاهدات
47
تاريخ الإضافة
تاريخ الإنجاز
المهارات