تفاصيل العمل

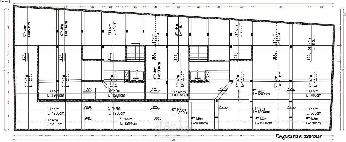
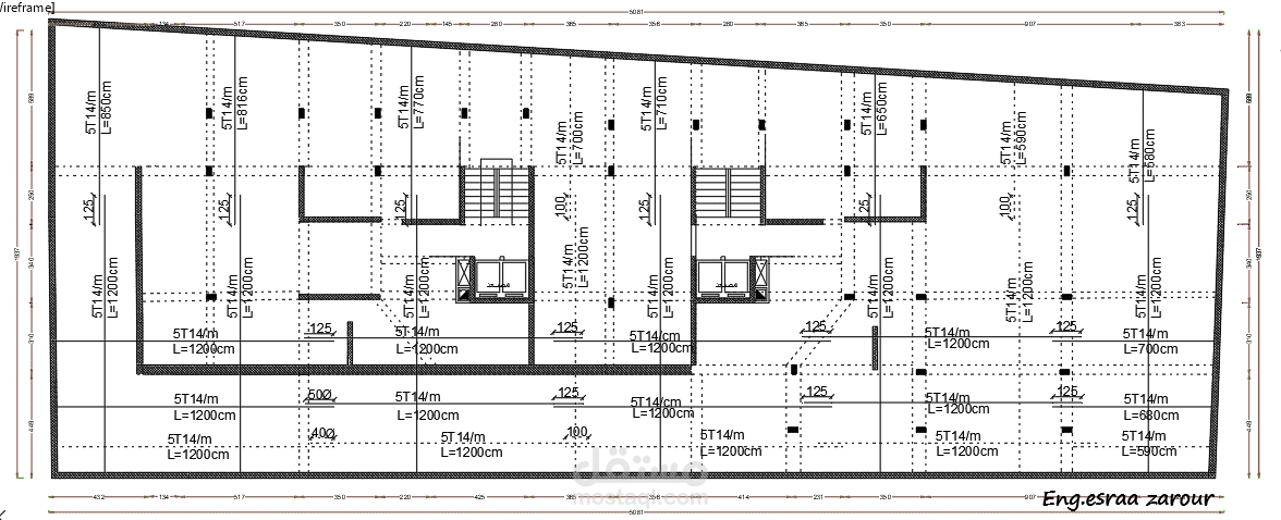
تم عمل تصميم انشائي لبناء برجي مكون من عشر طوابق اقتصادي وآمن مع تصميم زلزالي كامل باستخدام برامج (Etabs_safe) وتم اخراج الرسومات الانشائية باستخدام برنامج Autocad

بطاقة العمل

اسم المستقل
عدد الإعجابات
4
عدد المشاهدات
165
تاريخ الإضافة
تاريخ الإنجاز
المهارات