تفاصيل العمل

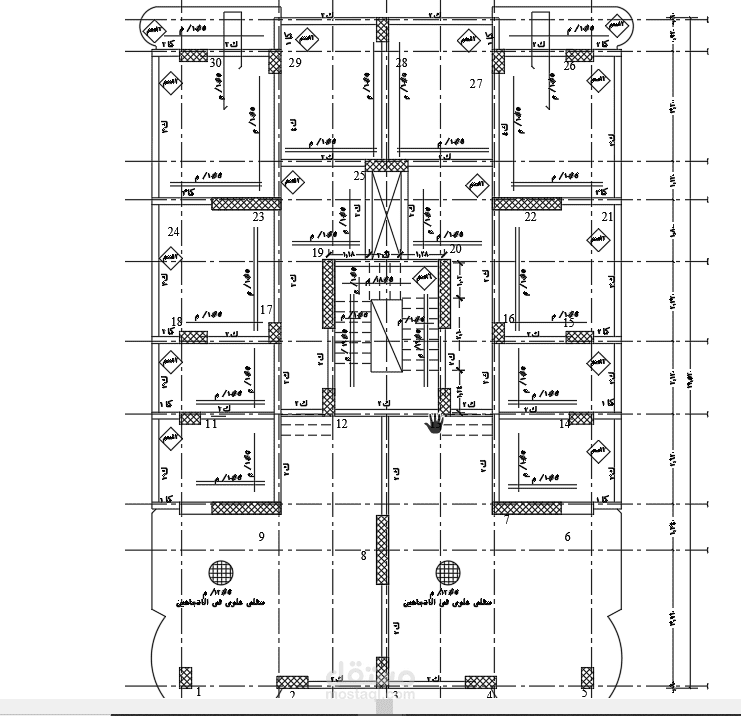
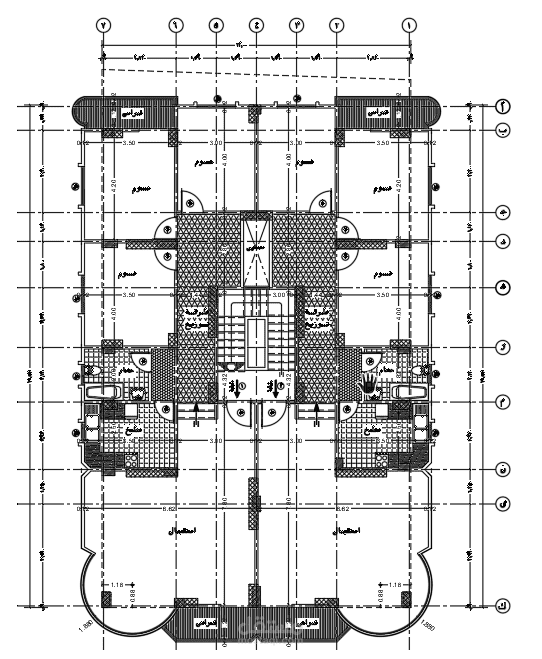
تصميم عمارة سكنية مكونة من 12 طابق عن طريق برامج التصميم (Cad-Etabs-SAP-Safe) مع الاتخاذ بالاعتبار ان الكود المصري هو المرجع الاساسي في التصميم

بطاقة العمل

اسم المستقل
عدد الإعجابات
0
عدد المشاهدات
25
تاريخ الإضافة
المهارات