نبذة عني

مهندس معمارى محترف جدا جدا

-أجيد التصميم الداخلى ( بواقعيه كبيره جدا وللتأكد زور معرض أعمالى)

-أجيد التصميم الخارجي ( بواقعيه كبيره جدا وللتأكد زور معرض أعمالى)

-أجيد اخراج اللوحات التنفيذية الداخليه وتمشل:

لوحات الأرضيات-لوحات الأسقف الجبسيه-لوحات توزيع الكهرباء(المفاتيح ووبرايز ووصلات النت والتلفزيون والتليفون)-لوحات توصيلات الإنارة-لوحات توزيع الإنارة والإٍسبوتات والأباليج والدلايات والنجف-لوحات الحوائط والجداريات والمكتبات-لوحات السباكة وتوصيلات السباكة-لوحات الفرش المعماري الداخلى-لوحات النجارة والأخشاب والتجاليد-لوحات الأبواب والشبابيك)

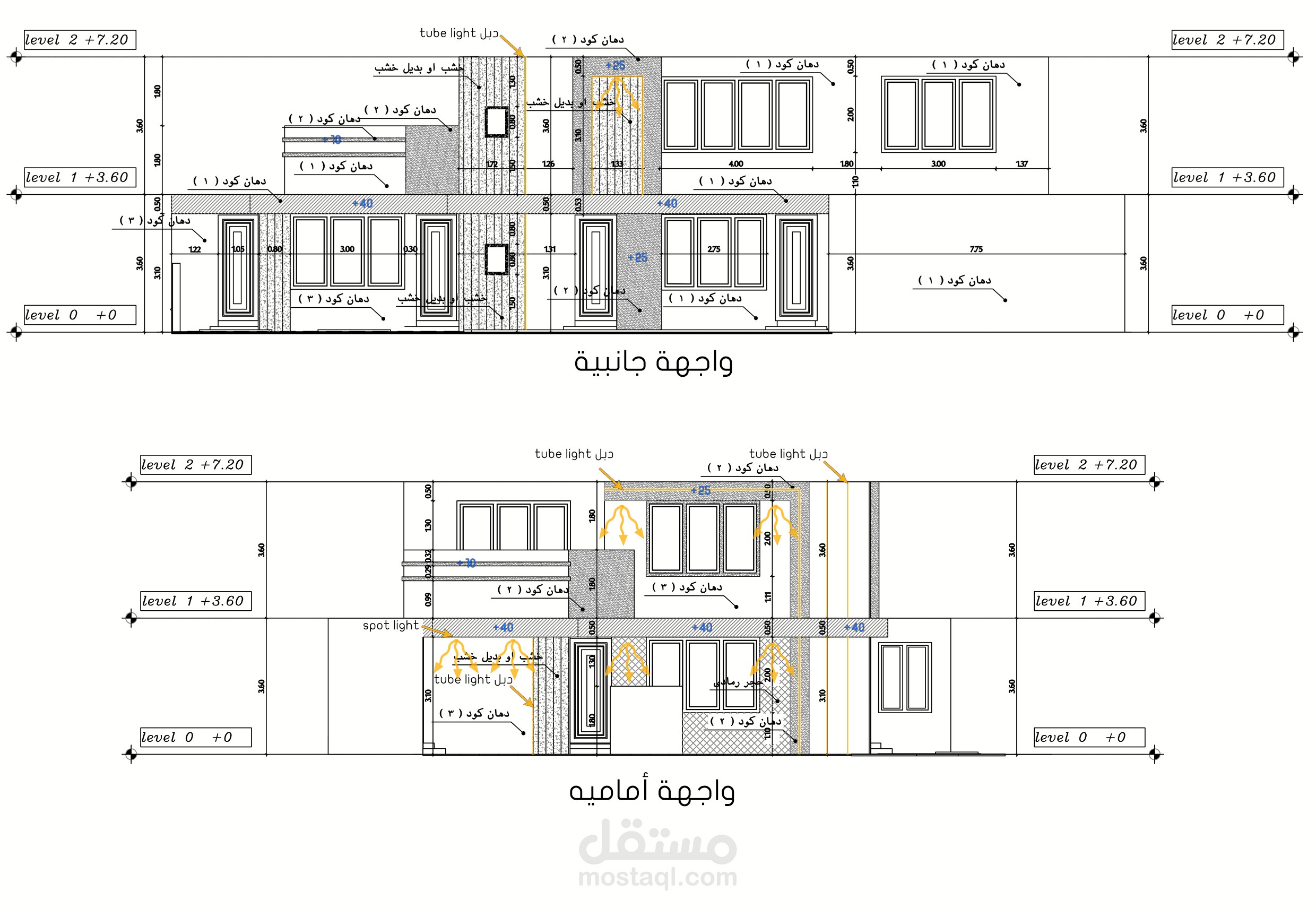
-أجيد اخراج اللوحات التنفيذية ألخارجيه لوجهات المبانى سواء كانت مودرن أو كلاسيك بكافة التفاصيل المعماريه بالمللى متر ( مرفق بمعرض أعمالى نماذج لوحات تنفيذية تفصيلية )

-أجيد حصر الكميات والتكاليف بالتفصيل

حصر المحارة-حصر الدهانات-حصر الأرضيات-حصر الكهرباء-حصر السباكه والتغذيه بمياه الشرب-حصر Upvc-حصر أعمال النجاره-حصر العوازل-حصر الجيبسوم بورد-حصر المبانى سواء كان اضافه مبانى أو ازالة

-اجيد جميع أعمال المكتب الفنى والعقود والمقايسات

- أجيد الانداسكيب واخراج اللوحات التنفيذيه

-اجيد الأنميشن المعماري الخارجي بجوده عاليه

(لدي جهاز بأعلى الإمكانيات لتساعد على التصميم )

يرجى زيارة معرض أعمالى وانا متأكد أنها ستعجبك ان شاء الله

I am a professional architect. i work in AutoCad,lumion, and 3Dmax to produce the best quality

work to meet your satisfaction.

I will can design Villas, Offices, Residential or Commercial spaces , as well as all functional spaces

I can create 3D concepts from floor plans as well as produce high quality renders of both interior and exterior spaces.

Please feel free to contact me for more information if you want additional services so we can discuss on timing and cost.

Thank You.

لا توجد نتائج

التقييمات

الاحترافية بالتعامل
 4.9
التواصل والمتابعة
 5.0
جودة العمل المسلّم
 4.9
الخبرة بمجال المشروع
 4.9
التسليم فى الموعد
 5.0
التعامل معه مرّة أخرى
 4.9

آراء العملاء

إحصائيات

معدل التوظيف
المشاريع المستلمة 3
التقييمات  (27)
إكمال المشاريع
التسليم بالموعد
إعادة التوظيف
نجاح التواصلات
متوسط سرعة الرد ساعة و 5 دقائق
المشاريع المكتملة 33
تاريخ التسجيل
آخر تواجد منذ

توثيقات

البريد الإلكتروني رقم الجوال
الهوية الشخصية وسيلة الدفع

أوسمة

  • معدل إكمال مشاريع رائع
  • مستقل ملتزم
  • مستقل مميز
  • مستخدم منذ 4 سنوات