نبذة عني

- مهندس جورج محروس مهندس و مصمم معمارى ( تصميم داخلى - تصميم خارجى - اظهار معمارى - رسومات معمارية 3D و 2D - مصمم جرافيك)

- (™LEED® Green Associate) مستشار في الاستدامة البيئية وتصميم الأبنية المستدامة بالمجلس الأمريكي للأبنية الخضراء USGBC

بخبرة اكثر من 5 سنوات فى مجال التصميم .

- لدى اعمال فى اكثر من دولة مثل مصر- السعودية – قطر- امريكا – ايطاليا – جنوب افريقيا – البحرين – الامارات وغيرها من البلاد بمختلف المشروعات تصميم داخلى و خارجى و landscape و غيرها من تصميمات و رسومات تنفيذية ايضا...

- اقوم بعمل التصميمات الداخلية للعديد من الفراغات ( المنازل ، الفلل ، المكاتب ، الكافيهات ، العيادات ، المحلات.... )

- اقوم بعمل 3D Shots

- اقوم بعمل الرسومات التنفيذية 2D ( لتوضيح الأبعاد و توزيع الأثات بالحيز الداخلي و عمل لوحات الأضاءة و الكهرباء و السباكة والأرضيات و الأسقف و قطاعات موضح بها جميع الأبعاد .)

- يمكننى عمل MoodBoards لتوضيح الخامات و العناصر المستخدمة بالتصميم .

- يمكننى عمل التصميمات بمختلف الطرز المعمارية ( الكلاسيك ، النيوكلاسيك ، المودرن ، الأسلامى ، الصناعى ، البوهيمى ، الاسكندانيفى ، الريفي)

- اقوم بالعمل على برنامج 3D max و Autocad و برامج أخري .

- اتشرف بحضراتكم للتعمل و التعاون معكم بكافة الاعمال الاتية :-

- تصميم معمارى (تصميم داخلى و تصميم خارجى ) 2d و 3d

- رسومات تنفيذية package كامل

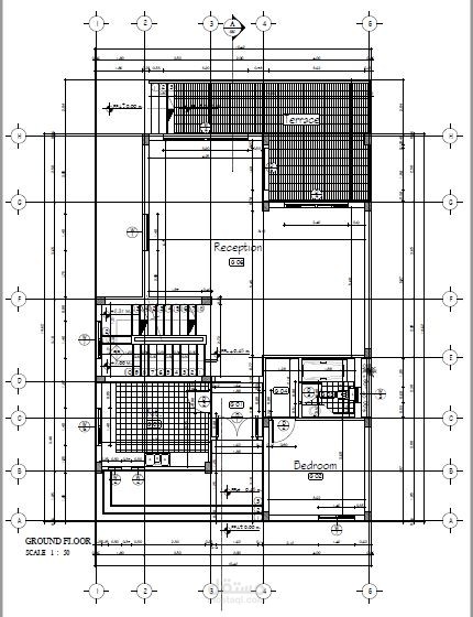
- رسومات تنفيذية للتصميم المعمارى ( مساقط افقية - واجهات خارجية - واجهات داخلية لكل فراغ فى حالة التصميم الداخلى - قطاعات )

- رسومات تنفيذية لاعمال الكهرباء

- رسومات تنفيذية لاعمال الصحى و السباكة

- رسومات تنفيذية للتكييفات

- رسومات تنفيذية لانظمة الأمان

- تصميمات تنسيق مواقع landscape مع الرسومات التنفيذية لها

البرامج و الادوات المستخدمة :

Corona - 3d Max -Lumion - Autocad - Revit - Rhino - Sketch up - Vray - Adobe premiare - Adobe aftereffect - Photoshop

- التصميم اليدوى الذى يعطى حرية التعبير و امكانية اكثر للتصميم

اتشرف بتواصل حضراتكم معى للنقاش بتفاصيل مشاريعكم و البدء بها بأقرب وقت و اعلى جودة ايضا

التقييمات

الاحترافية بالتعامل
 4.8
التواصل والمتابعة
 4.9
جودة العمل المسلّم
 4.8
الخبرة بمجال المشروع
 4.8
التسليم فى الموعد
 4.9
التعامل معه مرّة أخرى
 4.8

آراء العملاء

إحصائيات

التقييمات  (39)
إكمال المشاريع
التسليم بالموعد
إعادة التوظيف
نجاح التواصلات
متوسط سرعة الرد 46 دقيقة
المشاريع المكتملة 45
مشاريع يعمل عليها 1
تاريخ التسجيل
آخر تواجد منذ

توثيقات

البريد الإلكتروني رقم الجوال
الهوية الشخصية

أوسمة

  • معدل إكمال مشاريع رائع
  • مستقل ملتزم
  • مستقل مميز
  • مستخدم منذ 5 سنوات