نبذة عني

السلام عليكم

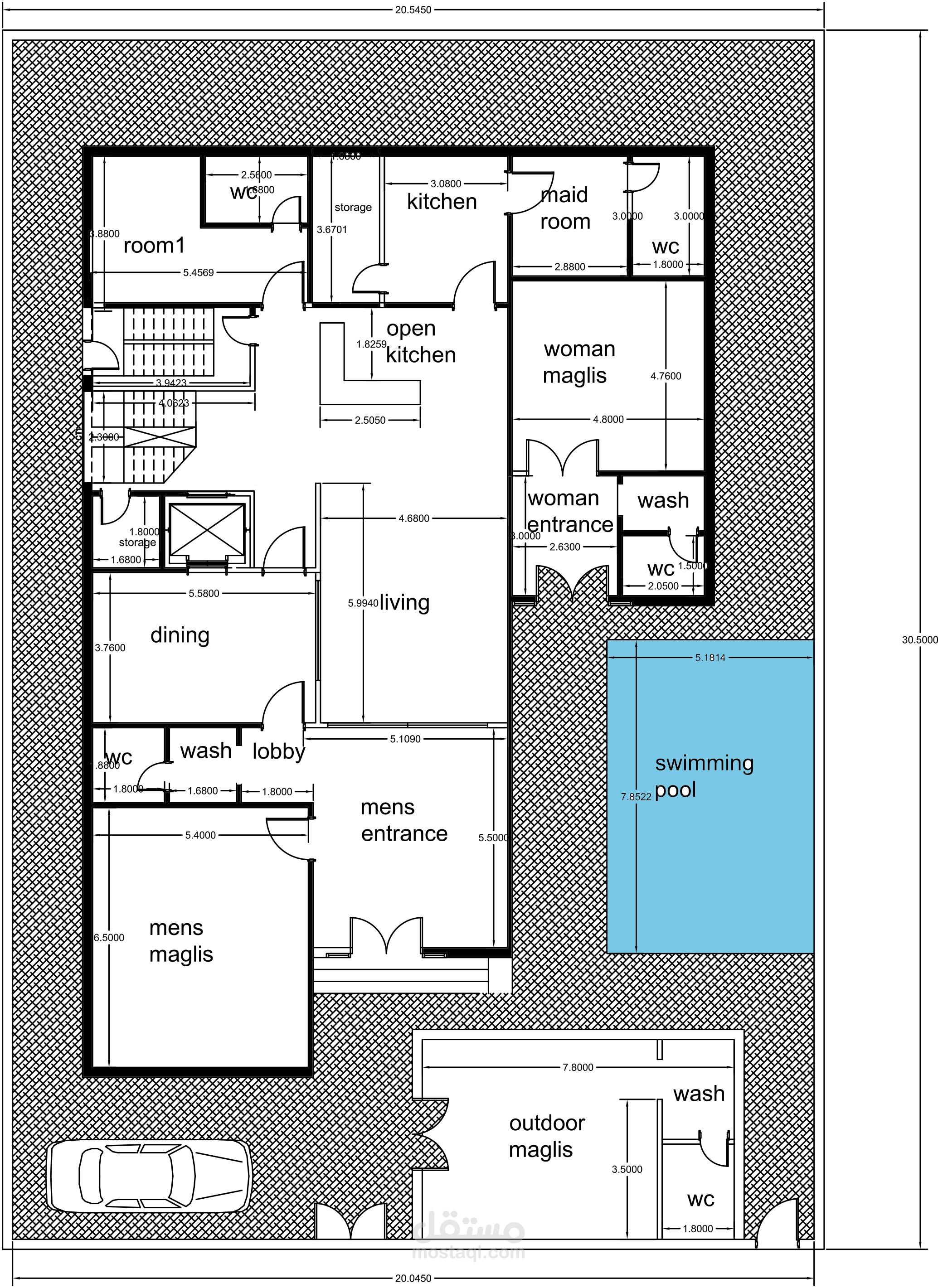
انا دينا محمد مهندسة معمارية خبره لاكثر من 5 سنوات فى التصميم المعماري والتصميم الداخلى

وتصميم الواجهات واللاندسكيب للفلل وعمل الرسومات والمخططات المعمارية والتنفيذية .

اجيد العمل و لدي خبره ببرنامج التصميم :

1_Autocad

2_ 3dmax

3_ photoshop

4_ Revit

5_ lumion

6_ filmora

أقدم لك :

* تصميم مختلف المساقط والواجهات والتفاصيل المعمارية باستخدام الأتوكاد (سكني _تعليمي _اداري _تجاري)

*تصميم المناظير واللقطات الخارجية والواجهات 3D باستخدام برنامج 3dsmax

*تصميم اللقطات الداخلية 3d باستخدام 3dmax (سكني _تعليمي _اداري _تجاري)

*عمل الرسومات والمخططات التنفيذية للتنفيذ الدقيق او التقديم للبلديه .

*عمل بوست برودكشن للمساقط والواجهات والمناظير المعمارية باستخدام الفوتوشوب

*واجهات 2d & 3D

* مخططات الصرف الصحي

*مخططات الكهرباء

*عمل التصميمات الداخليه وتفاصيلها التنفيذيه

هدفي : هو إرضاء العميل - انهاء المشروع بمنتهي الدقة والسرعة بأقل تكلفة وأكثر أمان

يسعدني التعامل معاكم

التقييمات

الاحترافية بالتعامل
 4.8
التواصل والمتابعة
 4.9
جودة العمل المسلّم
 4.6
الخبرة بمجال المشروع
 4.7
التسليم فى الموعد
 4.7
التعامل معه مرّة أخرى
 4.6

آراء العملاء

إحصائيات

التقييمات  (54)
إكمال المشاريع
التسليم بالموعد
إعادة التوظيف
نجاح التواصلات
متوسط سرعة الرد ساعتين و 17 دقيقة
المشاريع المكتملة 63
مشاريع يعمل عليها 1
تاريخ التسجيل
آخر تواجد منذ

توثيقات

البريد الإلكتروني رقم الجوال
الهوية الشخصية

أوسمة

  • معدل إكمال مشاريع ممتاز
  • مستقل ملتزم
  • مستقل مميز
  • مستخدم منذ 5 سنوات