الرئيسية
المستقلين
Reeham M.
معرض الأعمال
اطلب عمل مماثل
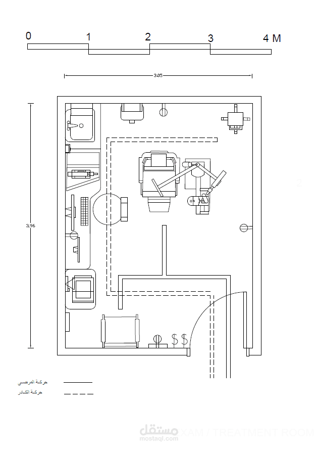
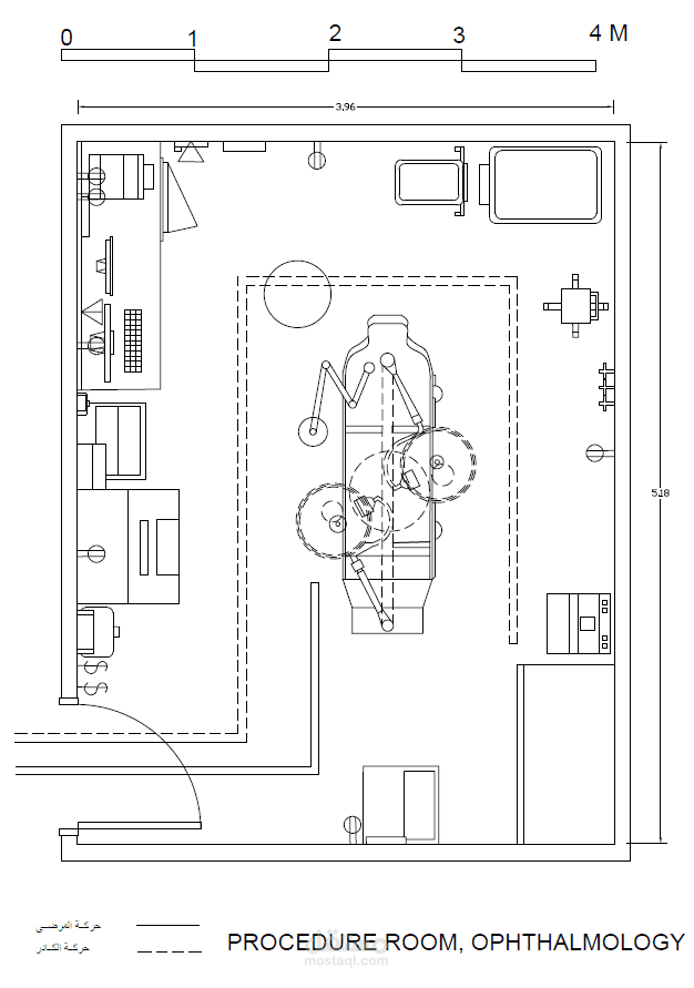
AutoCAD design
تفاصيل العمل
AutoCAD design / Ophthalmic room
بطاقة العمل
اسم المستقل
Reeham M.
عدد الإعجابات
0
عدد المشاهدات
57
تاريخ الإضافة
09/07/2022
تاريخ الإنجاز
16/06/2022
المهارات
تصميم 3D
ريفيت
الفكرة التصميمية
التصميم الإبداعي
أوتوكاد
×