تفاصيل العمل

مشروع solil

المشروع في المملكه العربيه السعوديه

المشروع تم عن طريق شركه الدلتا بروجيكت

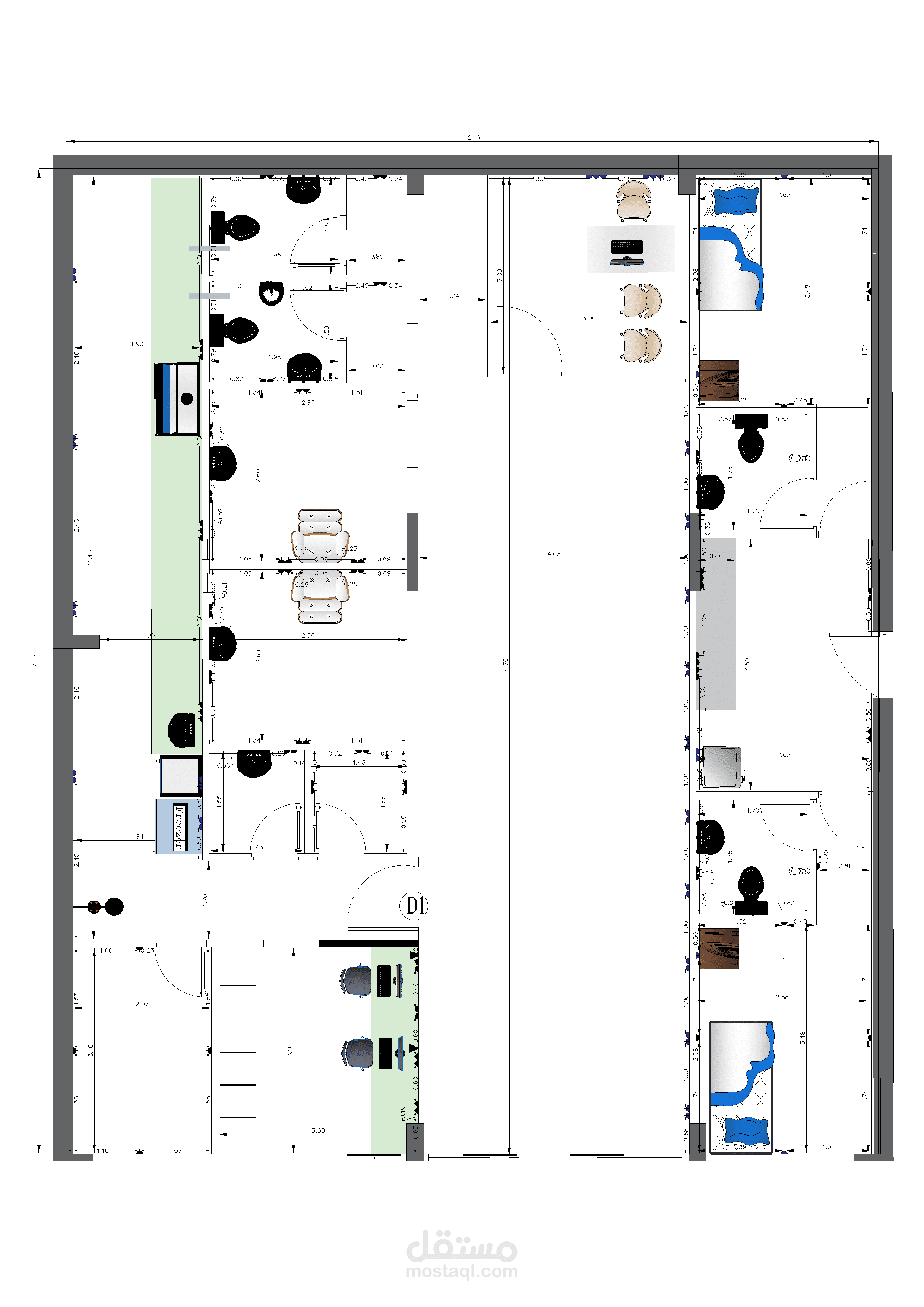
المشروع عباره عن لوح انشائيه ومعماريه وتشطيبات ل معمل تحاليل متكامل مع سكن للموظفين

1-لوجه انشائيه لمكان العمدان

2-لوحه لتوزيع الفراغات

3-لوحه لتوزيع الكهربه

4-لوحه لتوزيع التكيفات مع ذكر الرتب المطلوبه

5-لوحه لتوزيع كميرات المراقبه واماكن وجود الوصلات والسيرفرات

6-لوحه اناره كامله مع وجود اماكن مفاتيح الاناره

بطاقة العمل

اسم المستقل
عدد الإعجابات
0
عدد المشاهدات
69
تاريخ الإضافة
تاريخ الإنجاز
المهارات