تفاصيل العمل

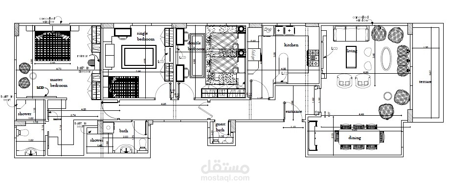
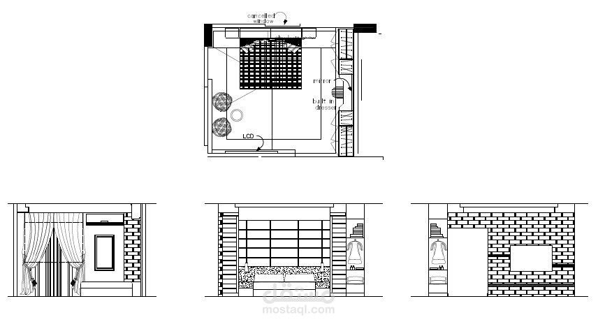
مرفق نموذج لبعض الرسومات المقدمة لتصميم شقة سكنية و بعض اللوحات الخاصة بالرسومات التنفيذية حسب طلبات العميل ,

بطاقة العمل

اسم المستقل
عدد الإعجابات
0
عدد المشاهدات
98
تاريخ الإضافة
تاريخ الإنجاز
المهارات