الرئيسية
المستقلين
Hind J.
معرض الأعمال
اطلب عمل مماثل
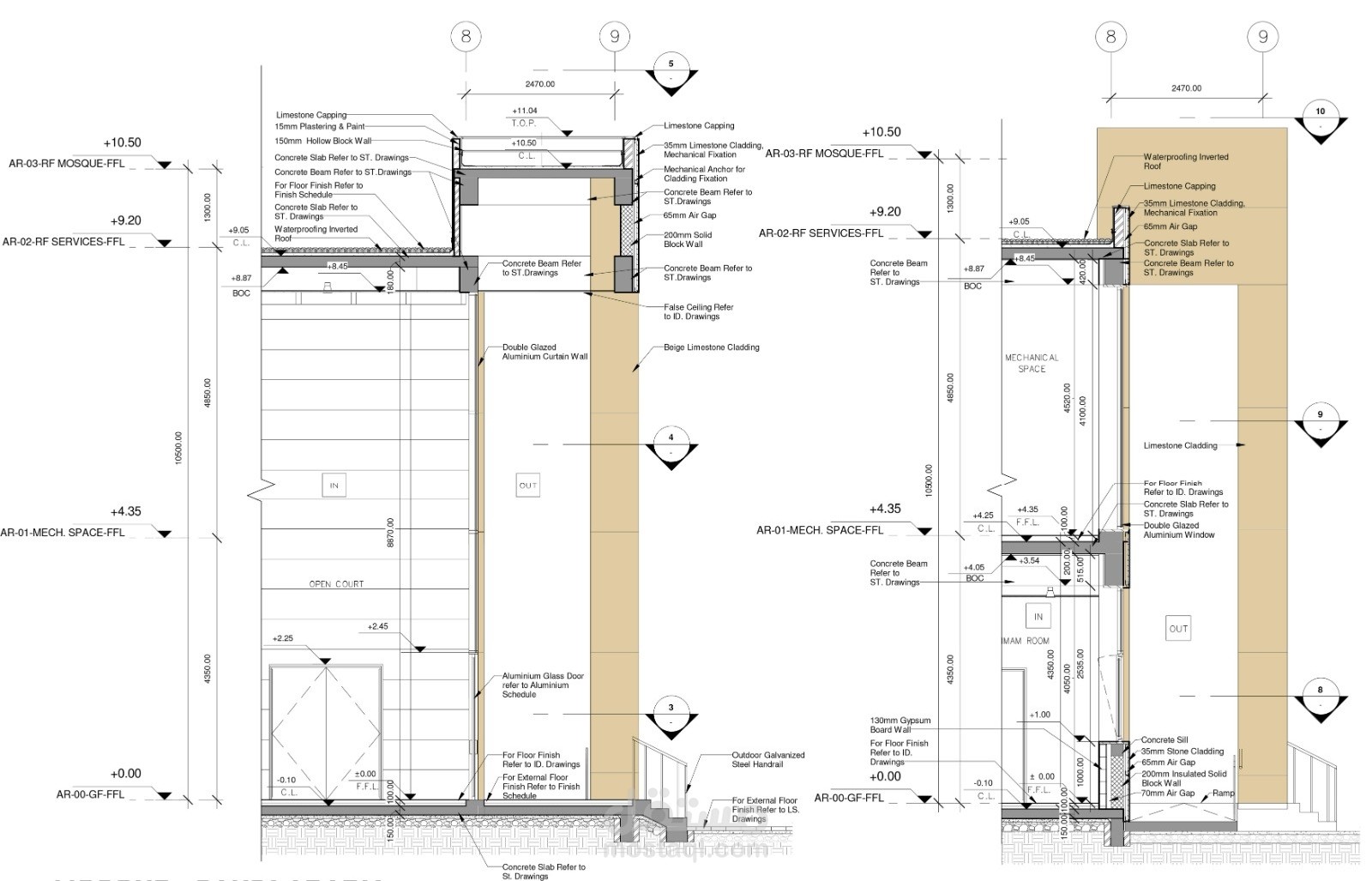
رسومات تنفيذية- مسجد - السعودية
تفاصيل العمل
تم العمل على كامل المخططات التنفيذية للمسجد على برنامج الريفيت المعماري
موقع المشروع: السعودية
بطاقة العمل
اسم المستقل
Hind J.
عدد الإعجابات
0
عدد المشاهدات
545
تاريخ الإضافة
27/05/2022
المهارات
ريفيت
مخططات تنفيذية
×