الرئيسية
المستقلين
Hassan H.
معرض الأعمال
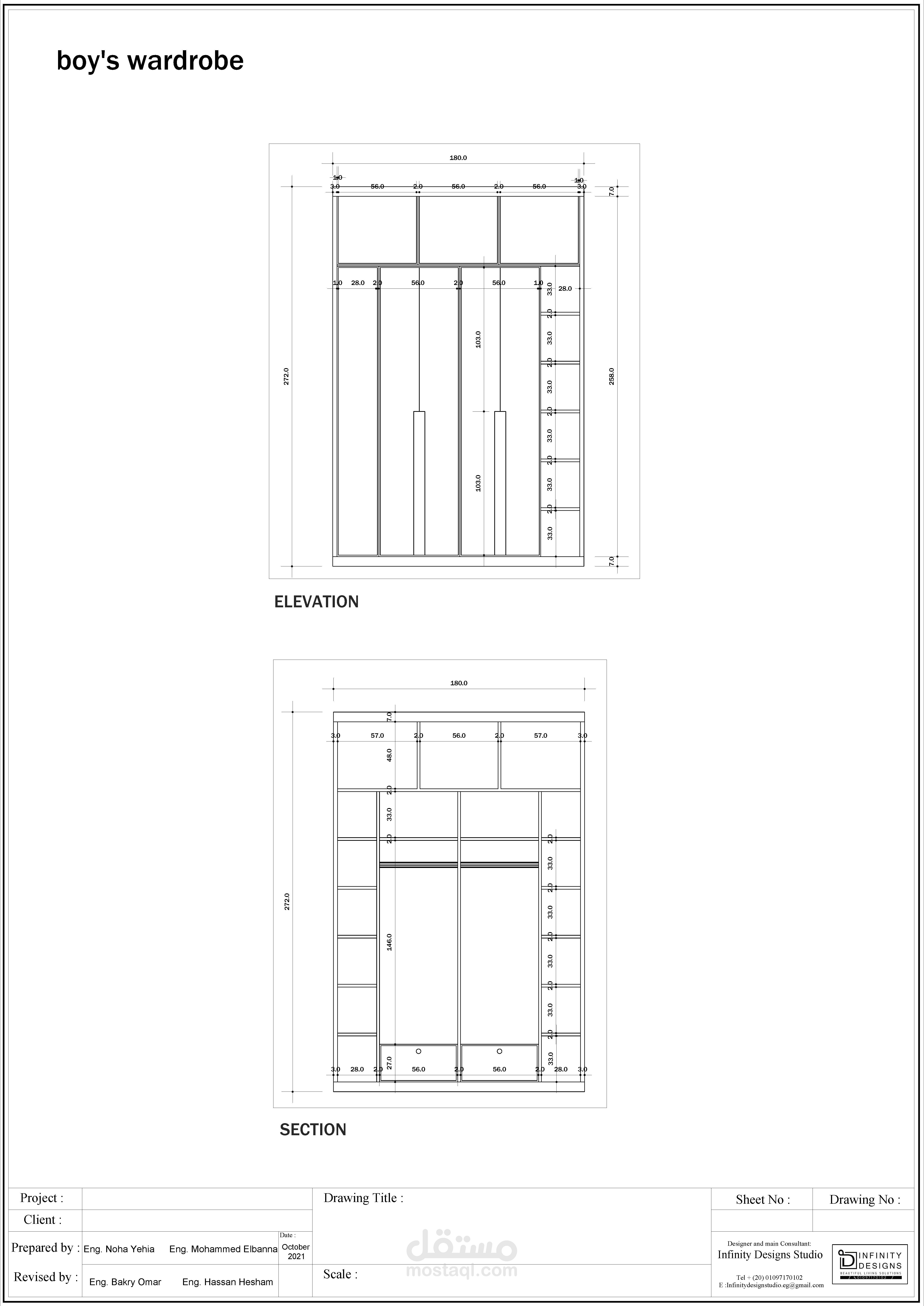
villa working drawings interior design
معرض الأعمال
اطلب عمل مماثل
تفاصيل العمل
تصميم اللوحات والمخطاطات الداخلية التنفيذية
بطاقة العمل
اسم المستقل
Hassan H.
عدد الإعجابات
0
عدد المشاهدات
120
تاريخ الإضافة
13/05/2022
المهارات
أوتوكاد
تصميم معماري
تصميم مخططات معمارية
×