الرئيسية
المستقلين
شريف ب.
معرض الأعمال
اطلب عمل مماثل
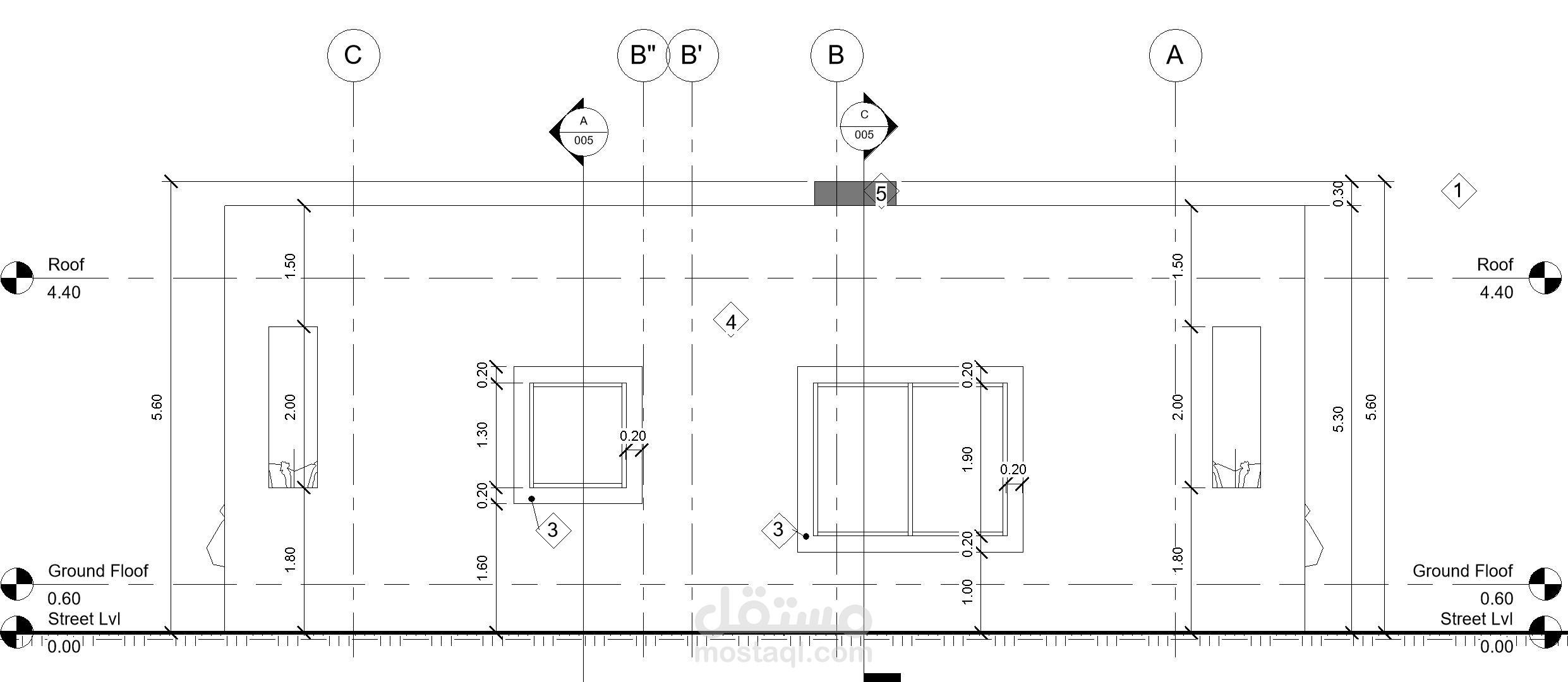
فيلا سكنية
تفاصيل العمل
تصميم واجهة فيلا سكنية على الطراز الحديث (modern) مع عمل الرسومات التنفيذية اللازمة للواجهات
بطاقة العمل
اسم المستقل
شريف ب.
عدد الإعجابات
0
عدد المشاهدات
132
تاريخ الإضافة
17/04/2022
المهارات
تصميم 3D
البناء المعماري
تصميم معماري
هندسة معمارية
×