الرئيسية
المستقلين
Manar H.
معرض الأعمال
اطلب عمل مماثل
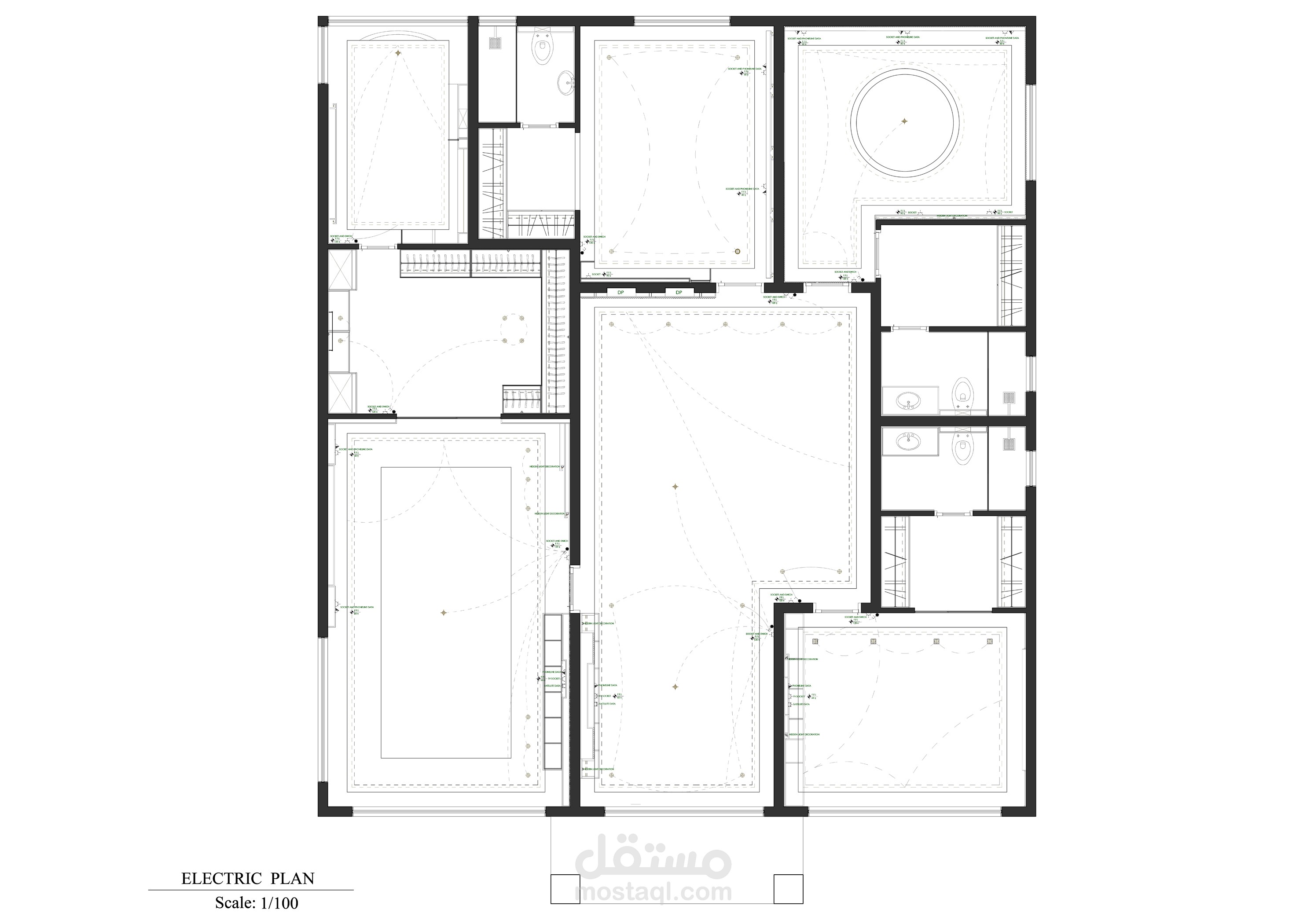
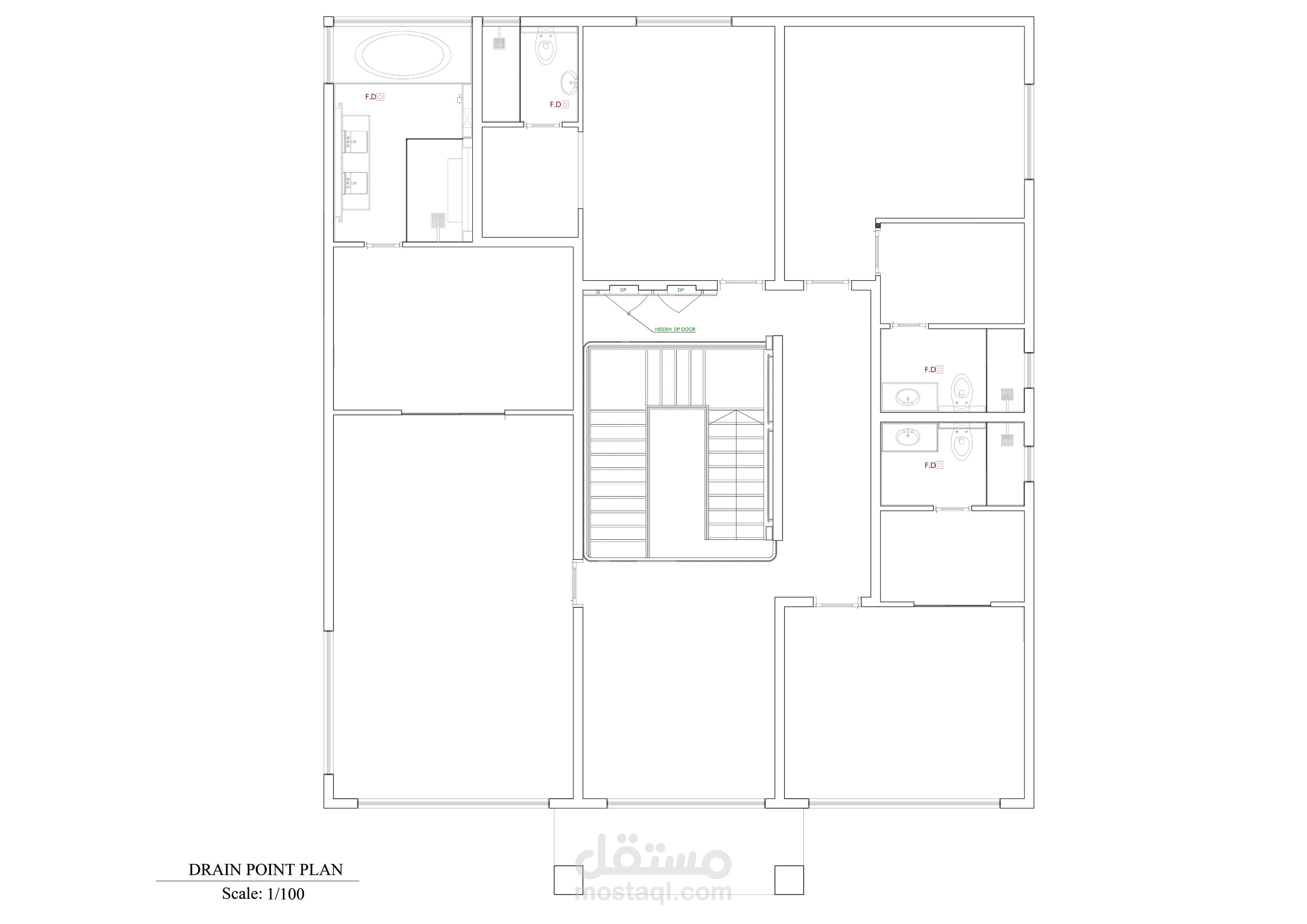
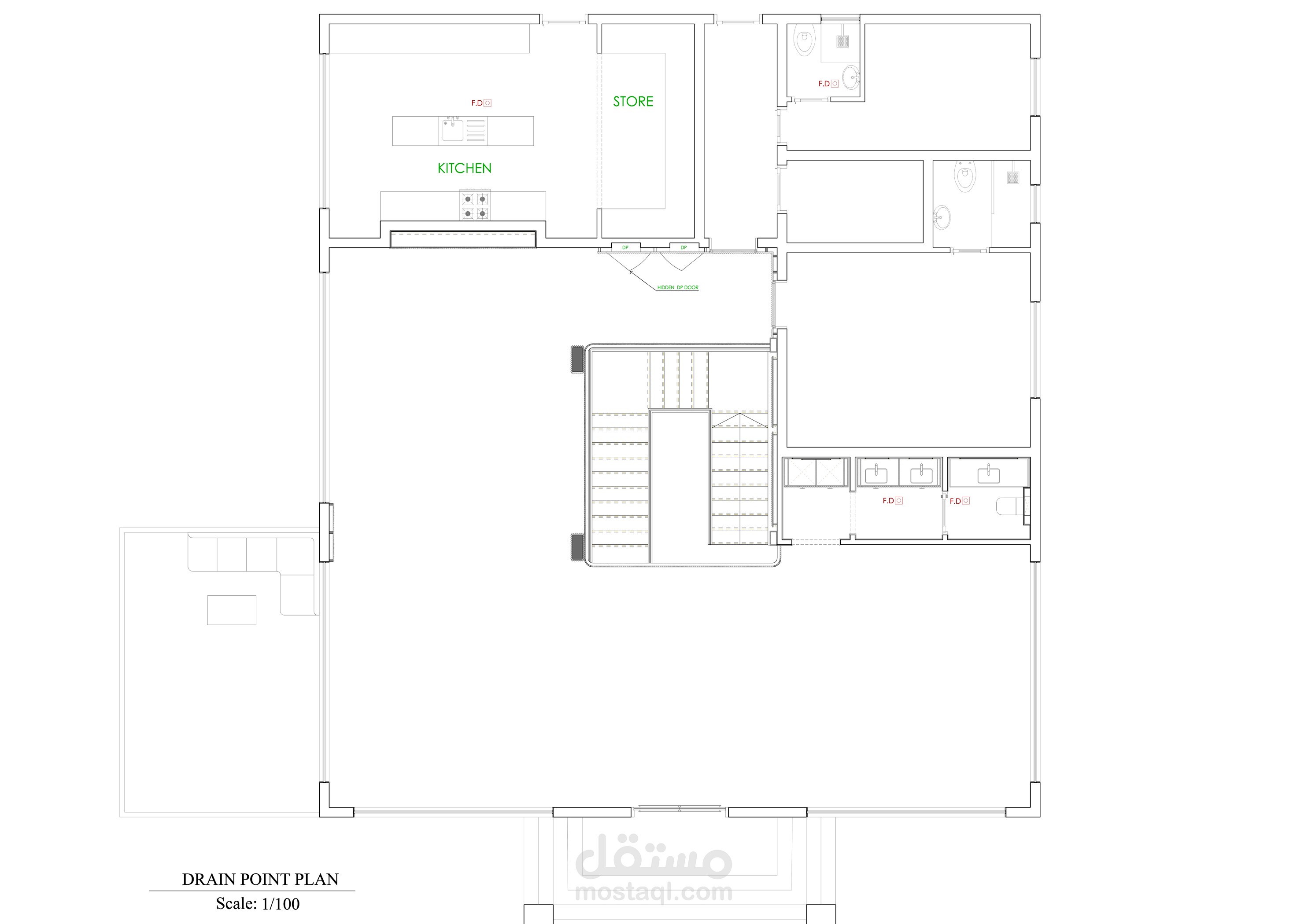
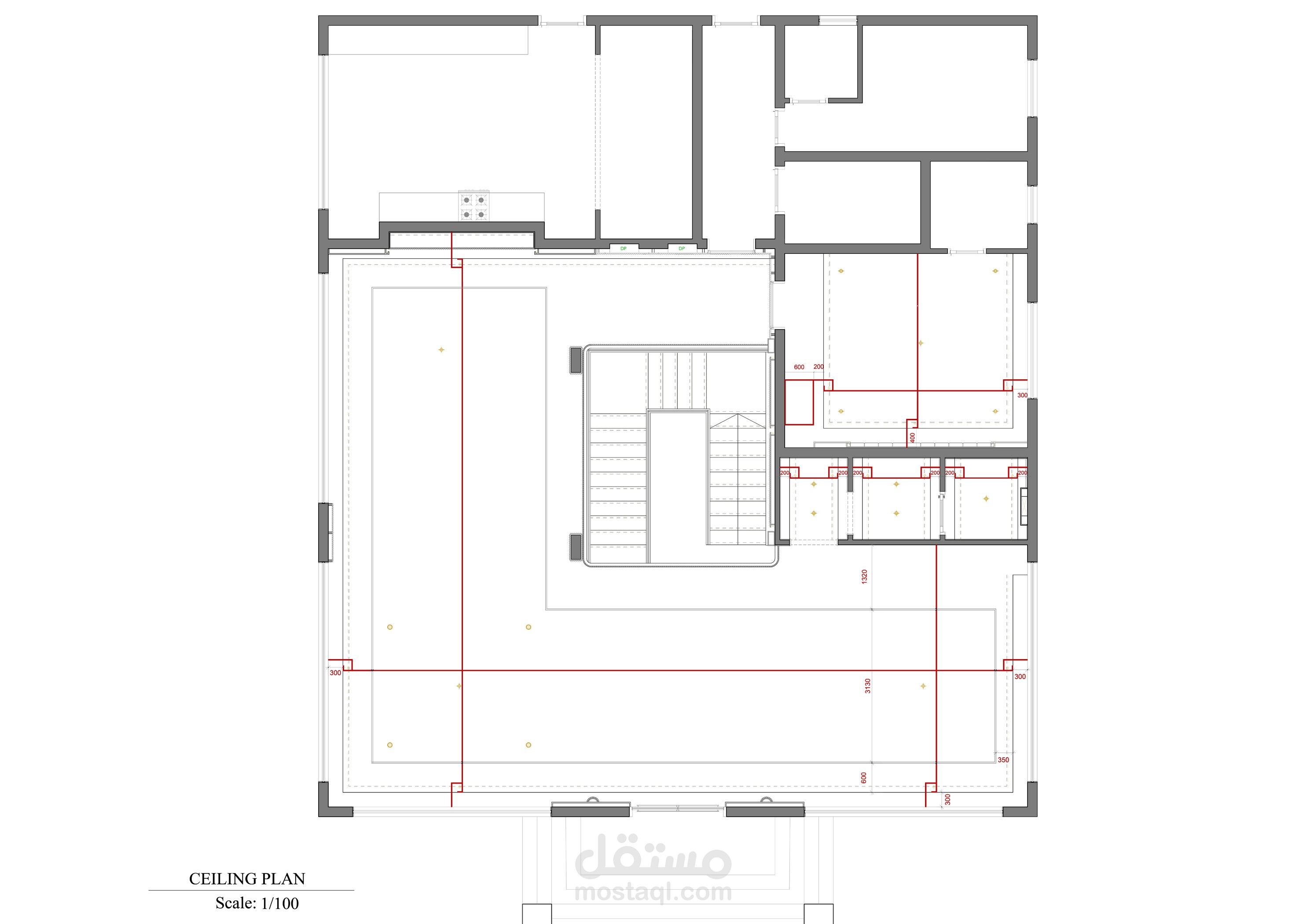
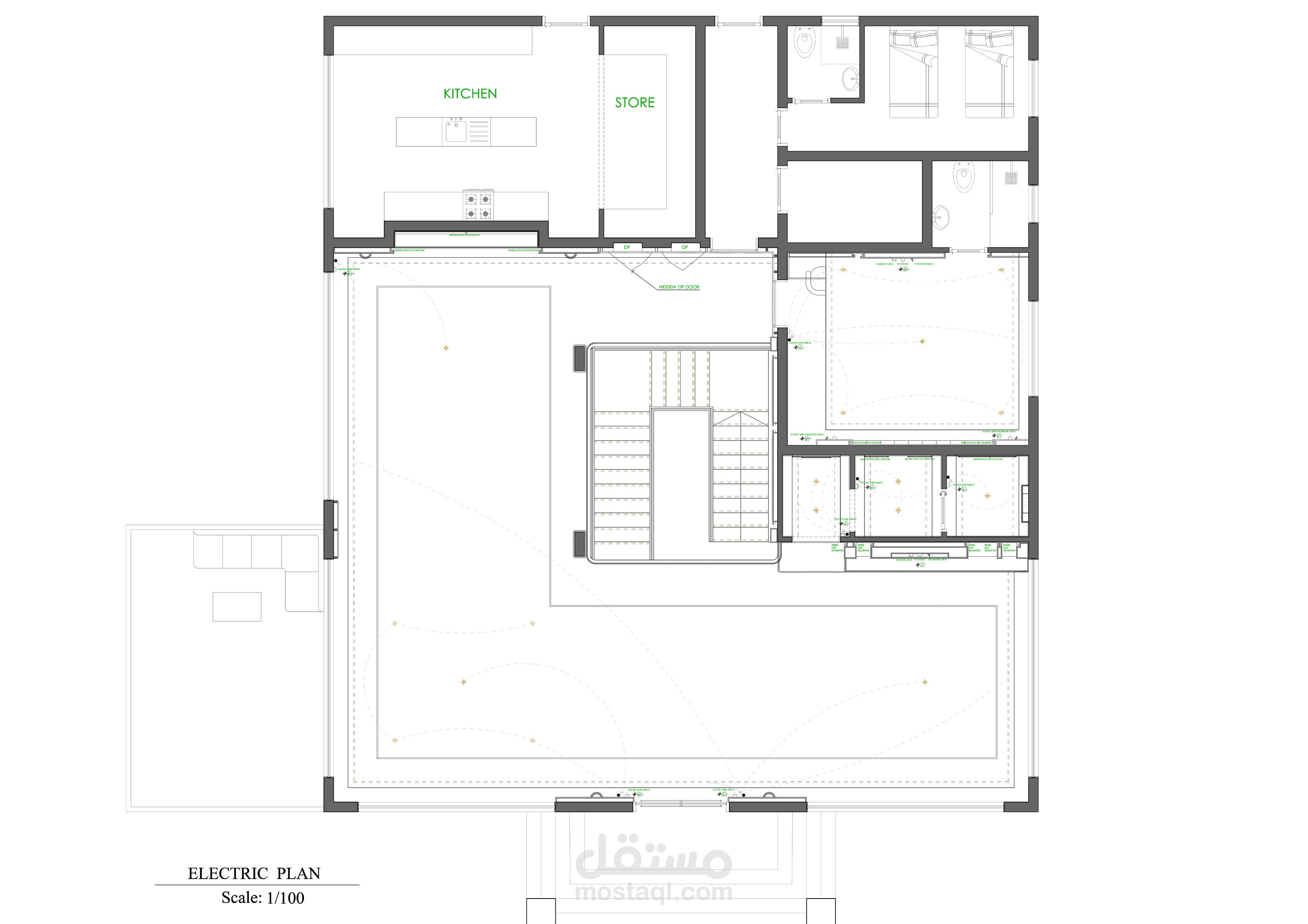
shop drawing layout
تفاصيل العمل
shop drawing layout
بطاقة العمل
اسم المستقل
Manar H.
عدد الإعجابات
0
عدد المشاهدات
146
تاريخ الإضافة
15/04/2022
تاريخ الإنجاز
01/04/2022
المهارات
التصميم الإبداعي
أوتوكاد
Adobe Illustrator
×