الرئيسية
المستقلين
شريف ب.
معرض الأعمال
اطلب عمل مماثل
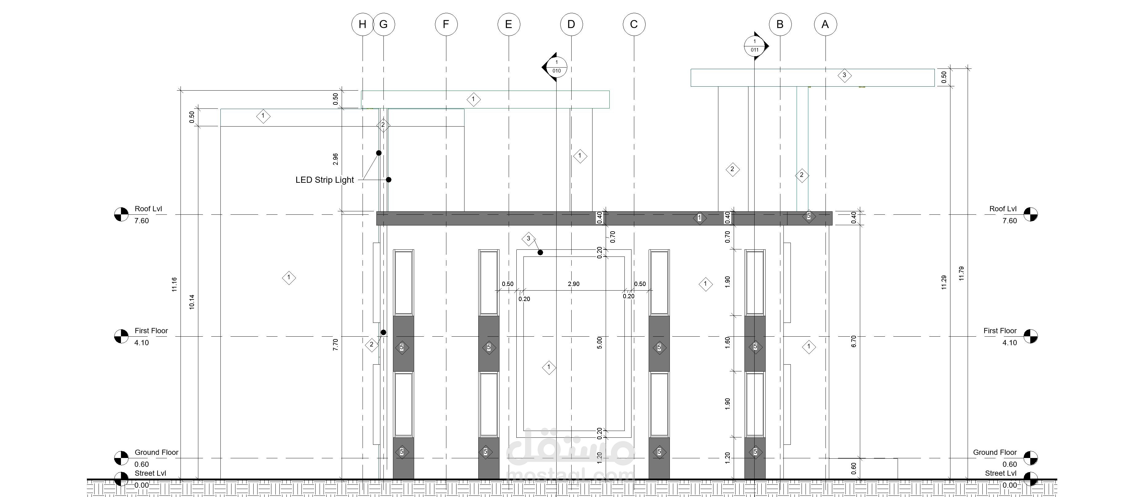
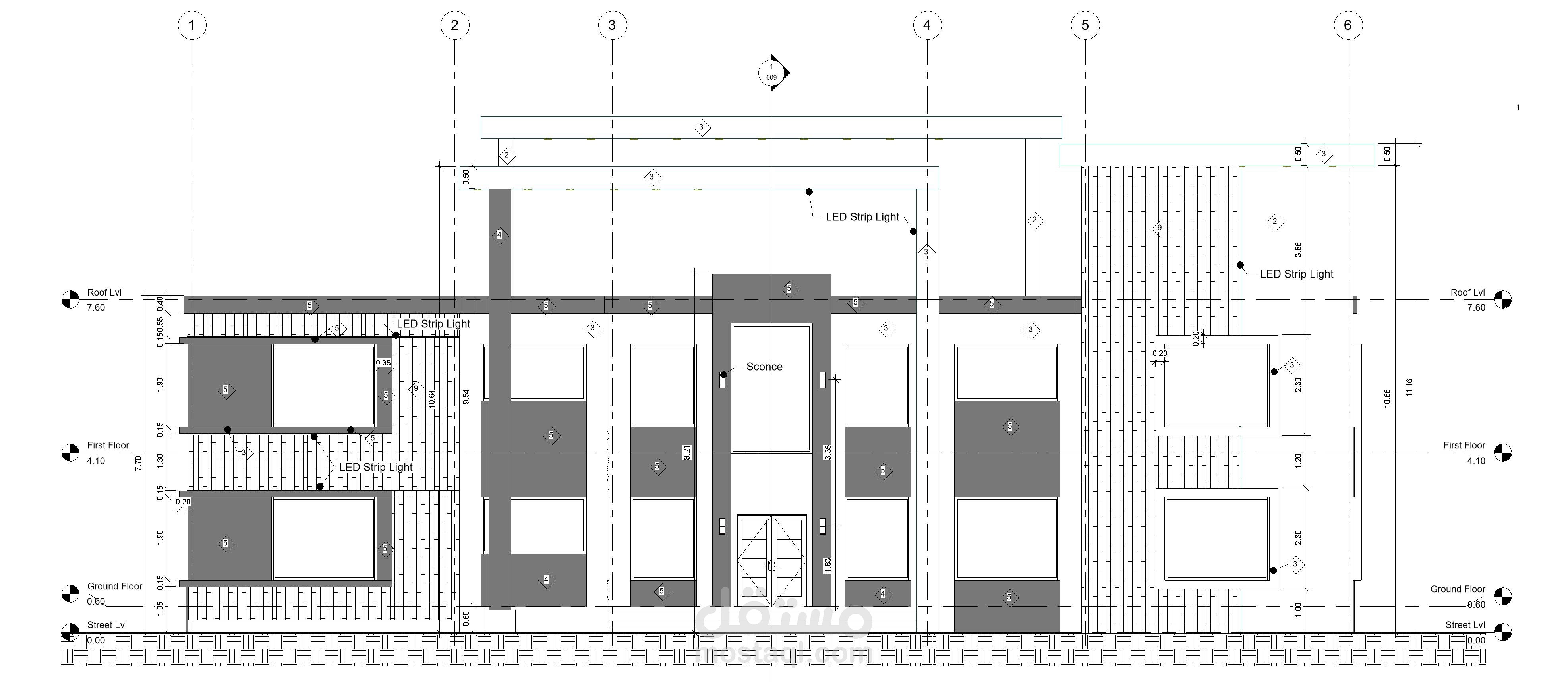
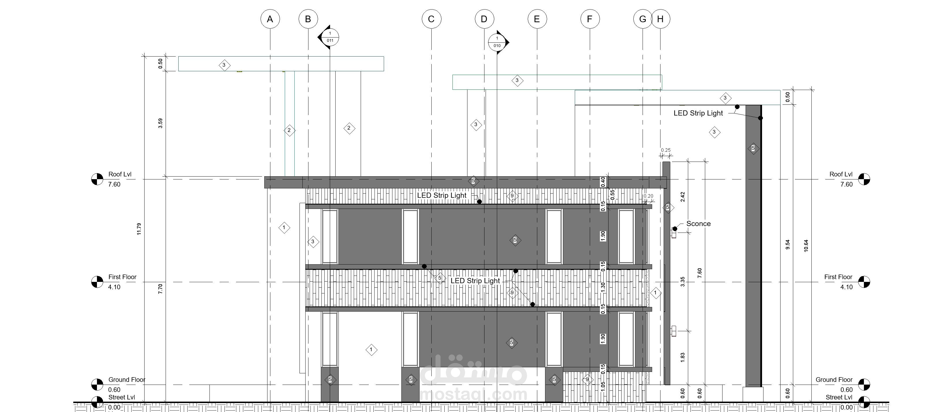
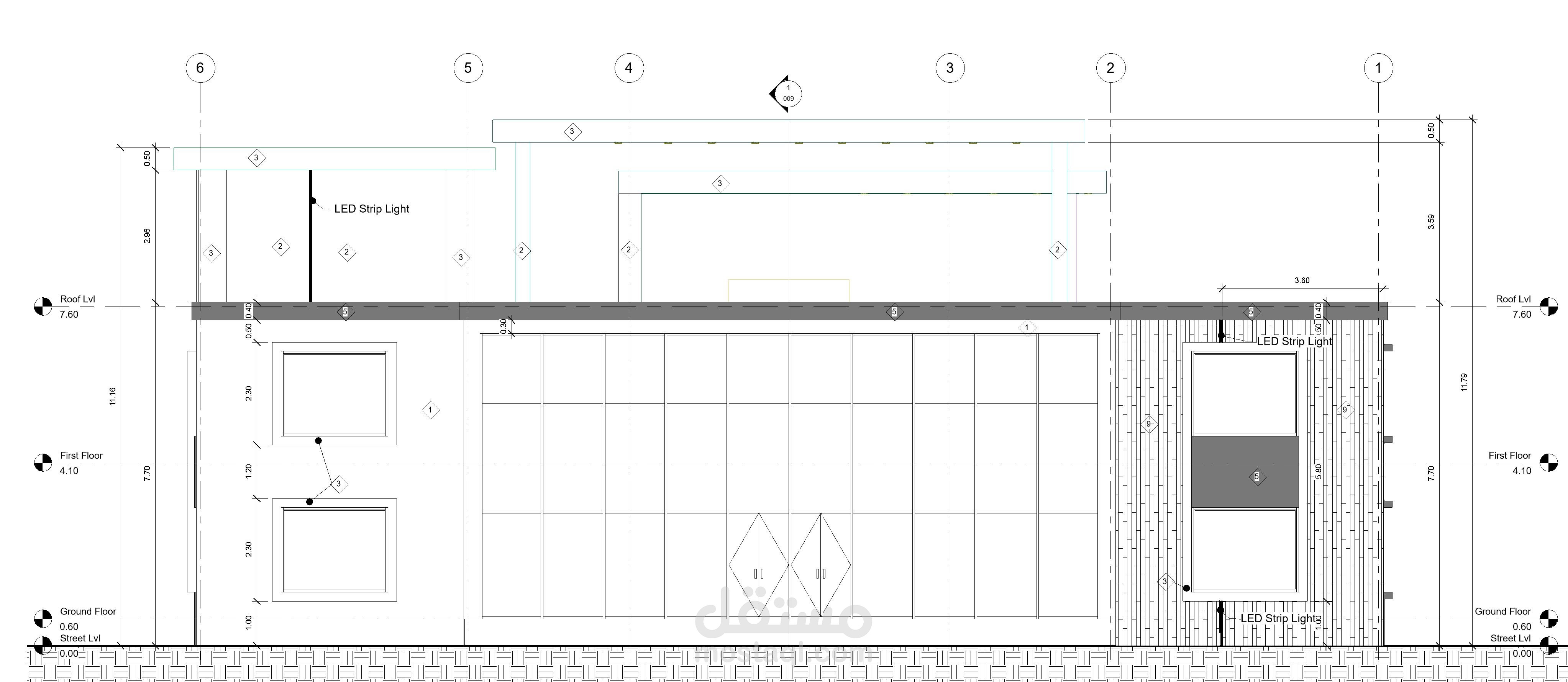
واجهة فيلا سكنية
تفاصيل العمل
تصميم واجهة فيلا سكنية من دورين مع عمل الرسومات التنفيذية اللازمة لتنفيذ الواجهات
بطاقة العمل
اسم المستقل
شريف ب.
عدد الإعجابات
0
عدد المشاهدات
57
تاريخ الإضافة
06/04/2022
المهارات
البناء المعماري
تصميم معماري
هندسة معمارية
×