الرئيسية
المستقلين
Mohamed G.
معرض الأعمال
اطلب عمل مماثل
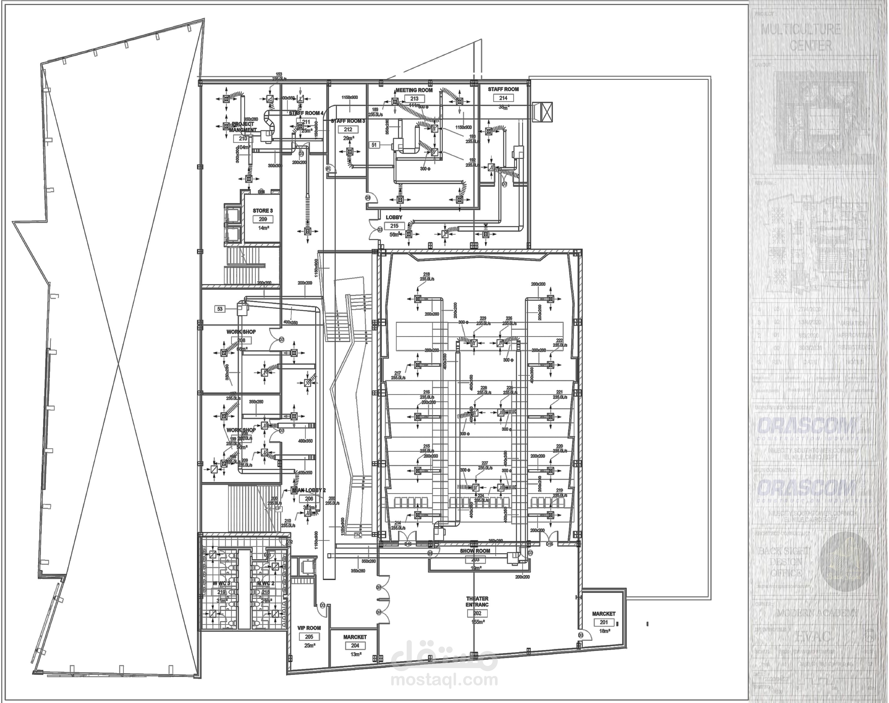
(hvac drawing ) مخططات تنفيذيه لمشروع ثقافي
تفاصيل العمل
(hvac drawing ) مخططات تنفيذيه لمشروع ثقافي
بطاقة العمل
اسم المستقل
Mohamed G.
عدد الإعجابات
0
عدد المشاهدات
81
تاريخ الإضافة
27/01/2022
المهارات
تصميم 3D
×