الرئيسية
المستقلين
Mohammed A.
معرض الأعمال
اطلب عمل مماثل
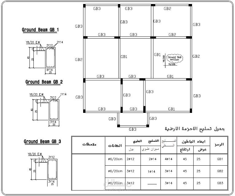
تصميم مبنى سكني
تفاصيل العمل
تصميم مبنى سكني (انشائي- معماري-كهرباء-ميكانيك) وحساب كميات
بطاقة العمل
اسم المستقل
Mohammed A.
عدد الإعجابات
0
عدد المشاهدات
115
تاريخ الإضافة
31/12/2021
تاريخ الإنجاز
16/06/2021
المهارات
تصميم 3D
التصميم الإبداعي
×