الرئيسية
المستقلين
احمد ا.
معرض الأعمال
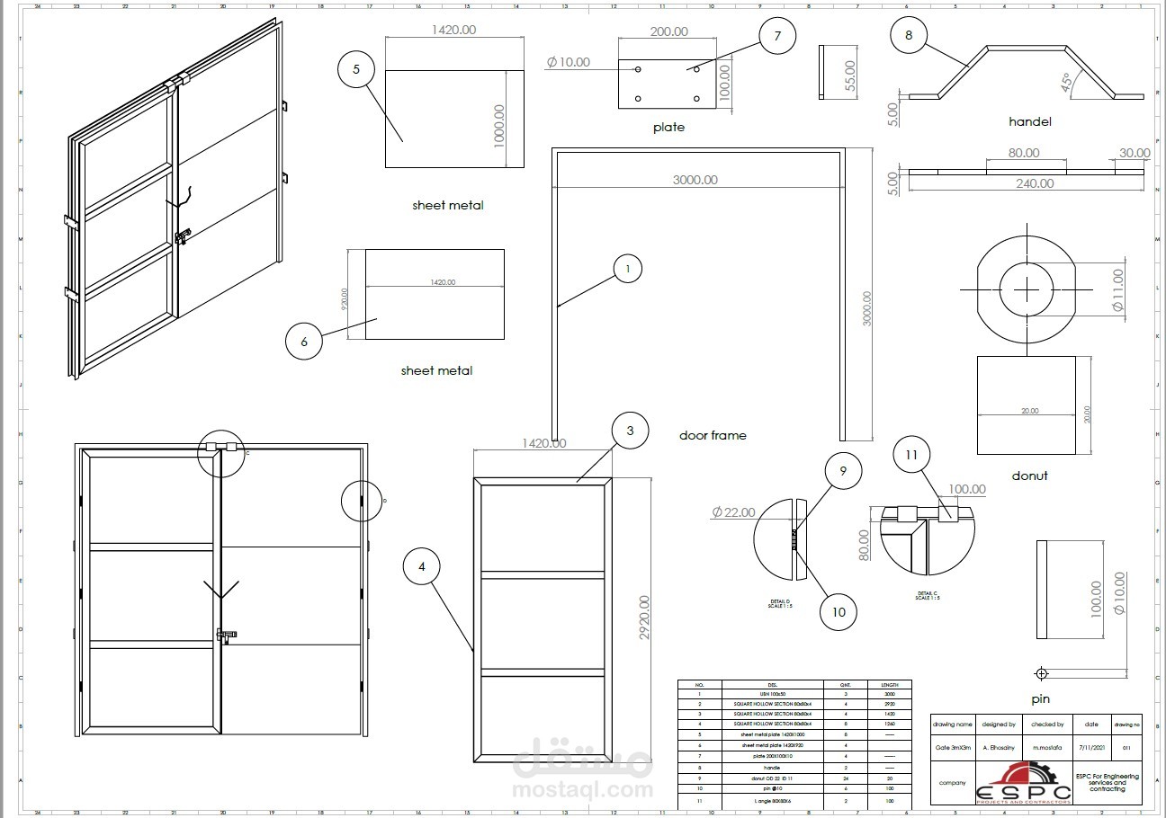
Steel Gate
معرض الأعمال
اطلب عمل مماثل
تفاصيل العمل
Design Steel Gate For Factory
بطاقة العمل
اسم المستقل
احمد ا.
عدد الإعجابات
0
عدد المشاهدات
44
تاريخ الإضافة
19/12/2021
المهارات
سوليدووركس
×