الرئيسية
المستقلين
Muhamed H.
معرض الأعمال
تصميم فيلا 4 ادوار
معرض الأعمال
اطلب عمل مماثل
تفاصيل العمل
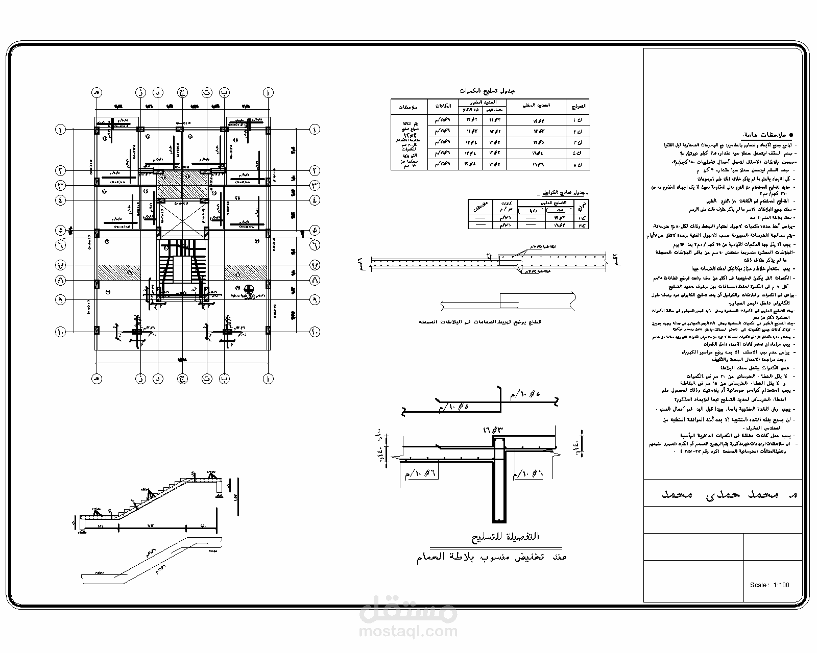
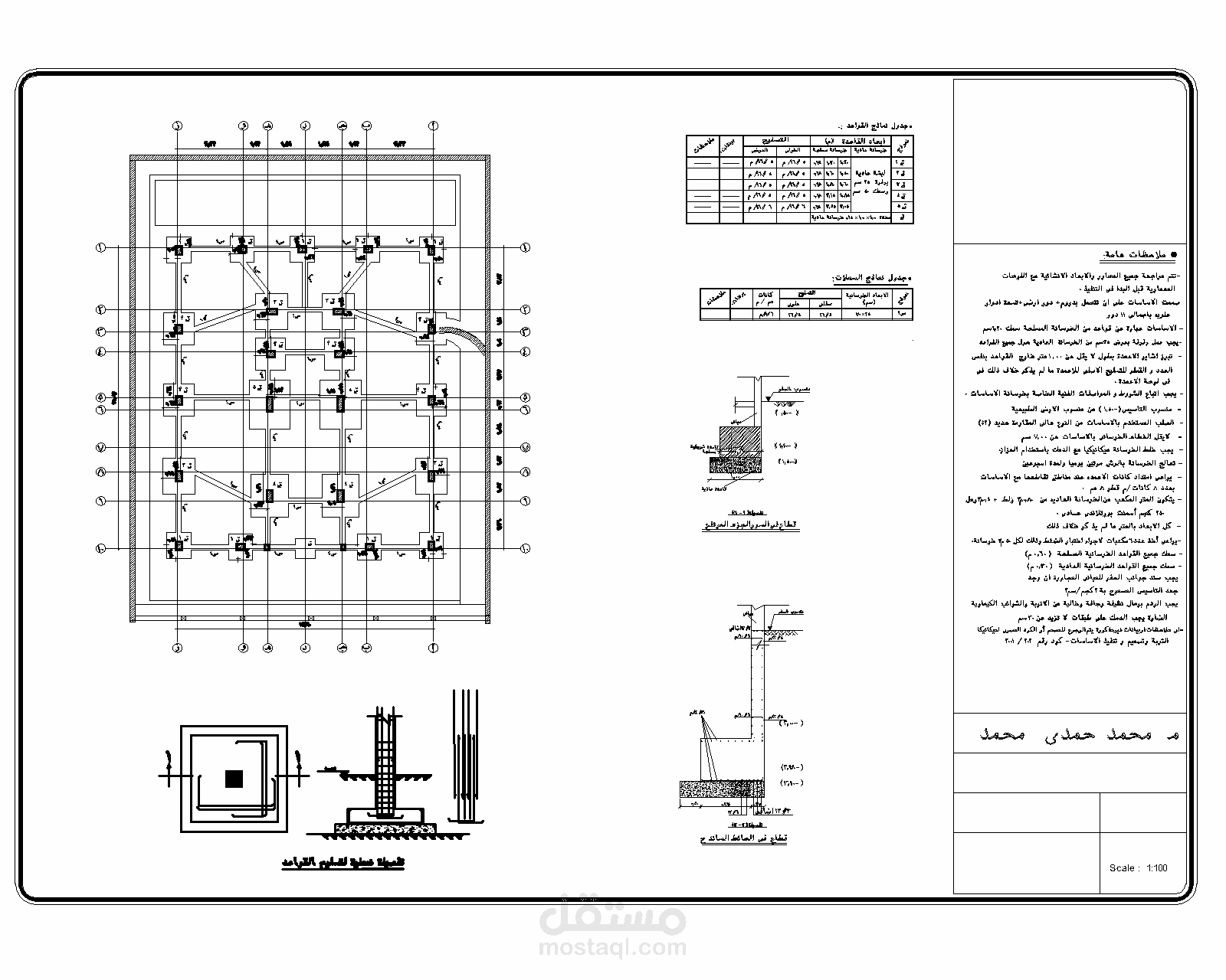
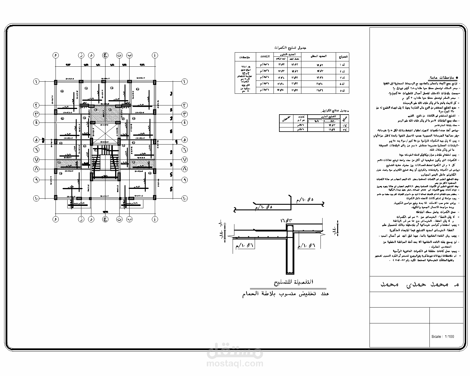
تصميم و حصر و عمل نوته حسابيه و 3d modeling و رسم انشائي ومعماري
بطاقة العمل
اسم المستقل
Muhamed H.
عدد الإعجابات
0
عدد المشاهدات
437
تاريخ الإضافة
05/12/2021
×