الرئيسية
المستقلين
Doaa A.
معرض الأعمال
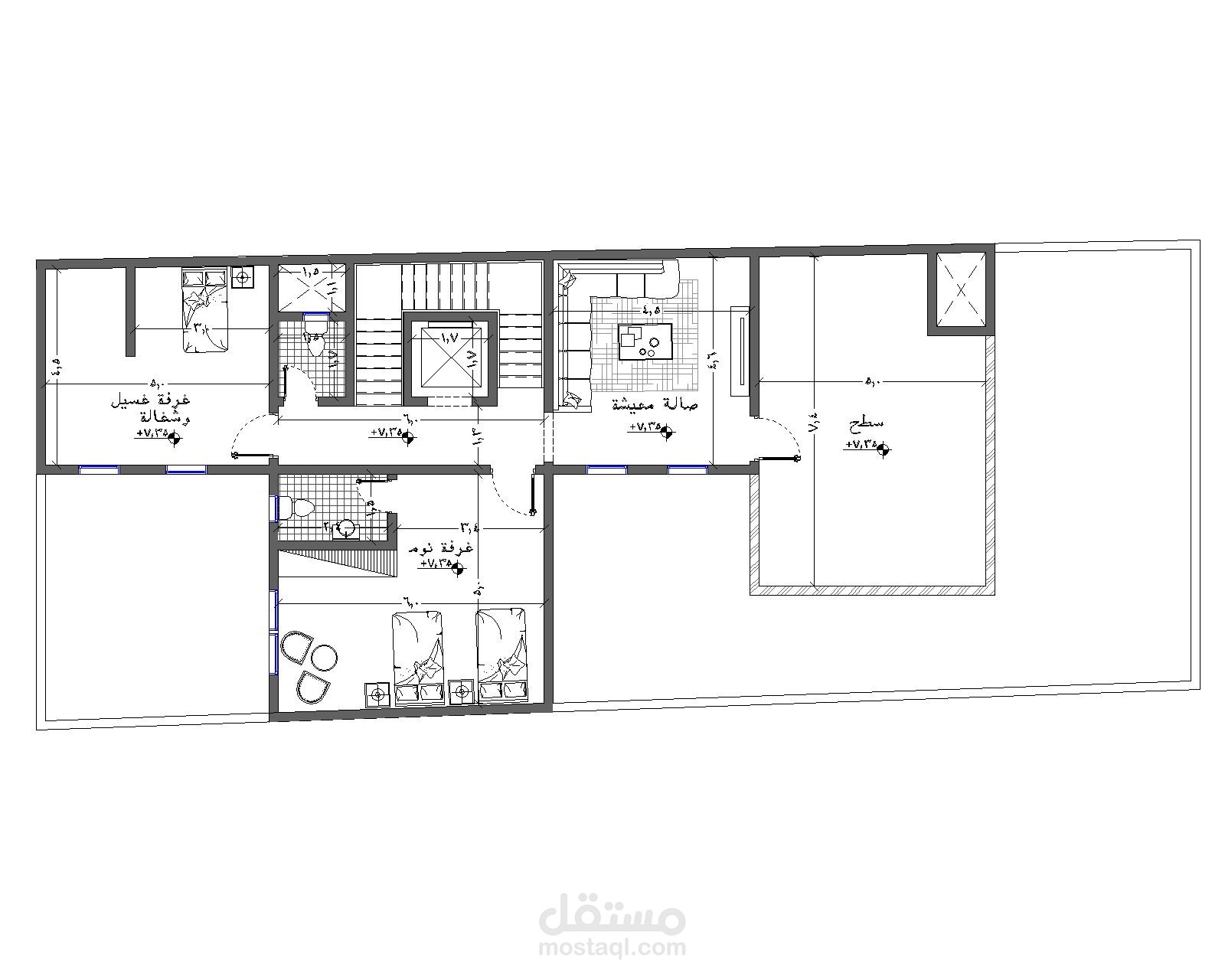
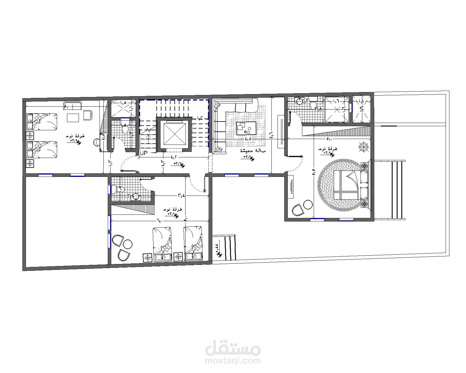
تصميم فيلا سكنية
معرض الأعمال
اطلب عمل مماثل
تفاصيل العمل
من اهم النقاط التى تمت مراعتها فى التصميم هى الخصوصية وفصل المداخل عن بعضها
بطاقة العمل
اسم المستقل
Doaa A.
عدد الإعجابات
0
عدد المشاهدات
162
تاريخ الإضافة
14/11/2021
×