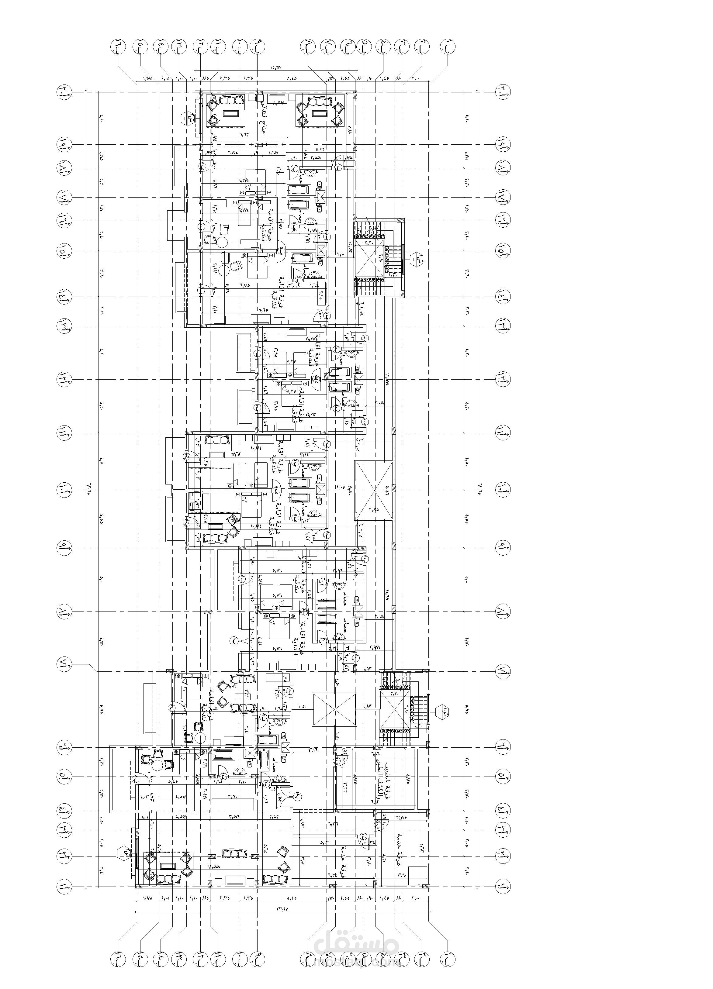
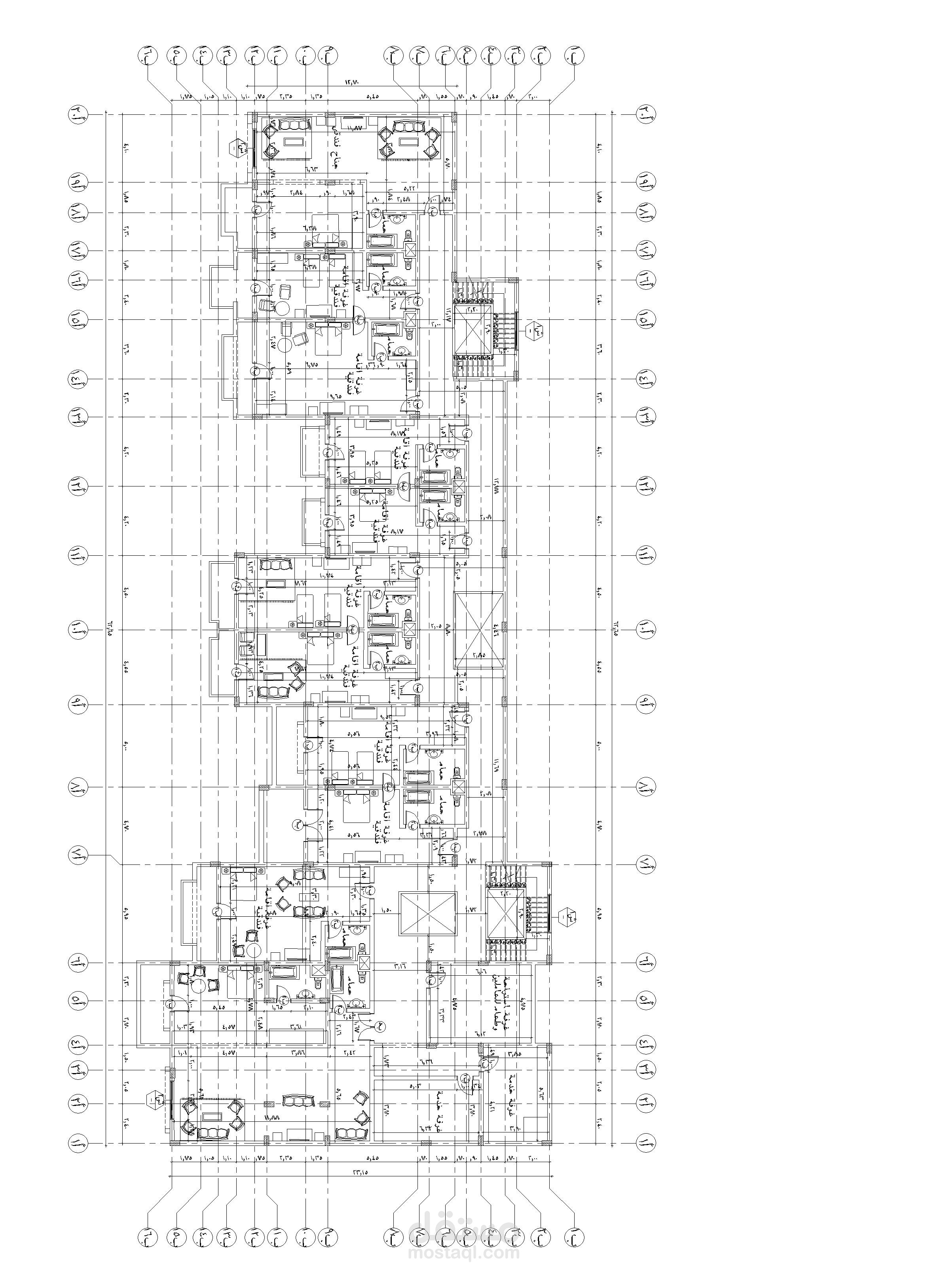
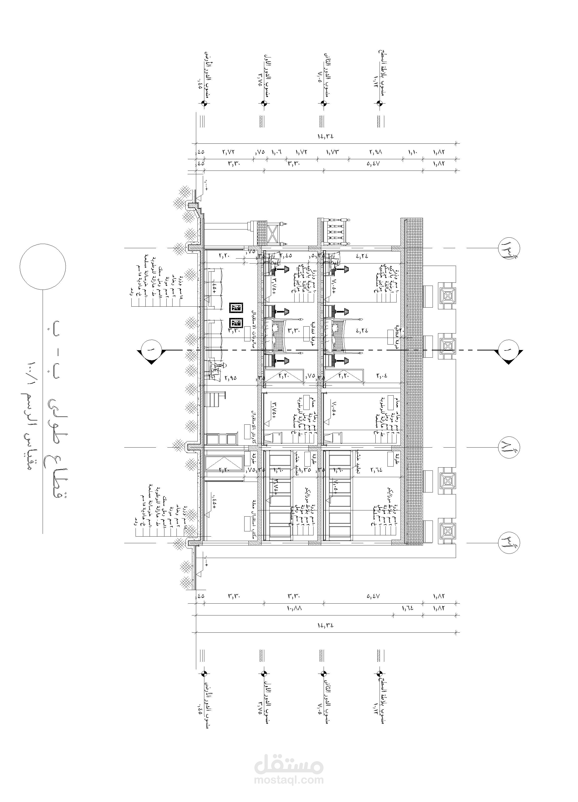
تفاصيل العمل

المطلوب كان الحفاظ على العمل التراثى واستغلال المساحات المحيطة بانشاء فندق بيئى تابع للقصر وبة نفس الروح المعمارية للقصر الملكى يمكنك روية التصميم 3d وانيميشن على رابط العمل

بطاقة العمل

اسم المستقل
عدد الإعجابات
0
عدد المشاهدات
67
تاريخ الإضافة
تاريخ الإنجاز
المهارات