الرئيسية
المستقلين
Rokaia H.
معرض الأعمال
اطلب عمل مماثل
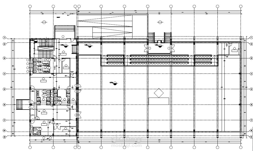
My Working project (School Stadium)
تفاصيل العمل
رسومات تنفيذية لمشروع استاد رياضي بمدرسة
بطاقة العمل
اسم المستقل
Rokaia H.
عدد الإعجابات
0
عدد المشاهدات
34
تاريخ الإضافة
20/10/2021
×