تفاصيل العمل

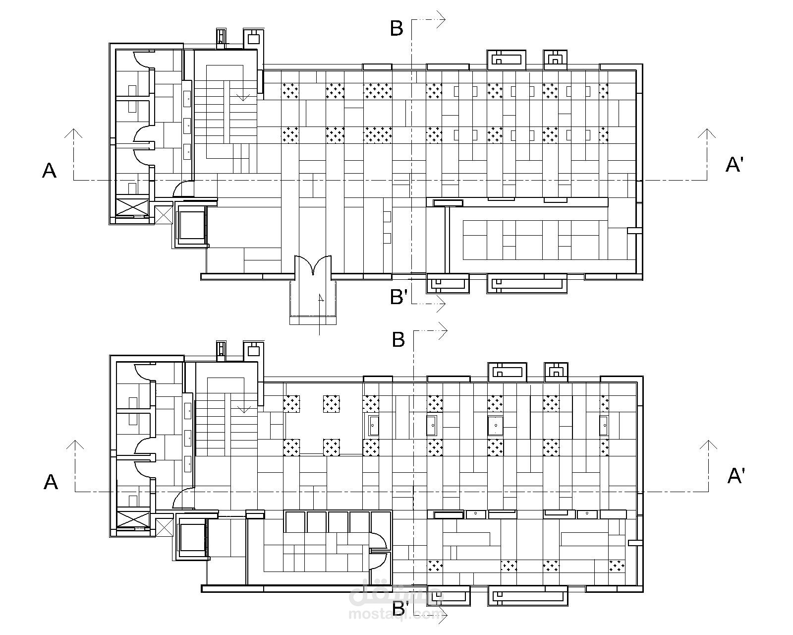
مشروع مميز جدا لتحويل فيلا الى منتجع صحي مع كافيتريا وبوتيك مفهوم هذا المشروع مستوحى من الحضارة المصرية القديمة

بطاقة العمل

اسم المستقل
عدد الإعجابات
0
عدد المشاهدات
47
تاريخ الإضافة