الرئيسية
المستقلين
Dalya S.
معرض الأعمال
مخططات تنفيذية
معرض الأعمال
اطلب عمل مماثل
تفاصيل العمل
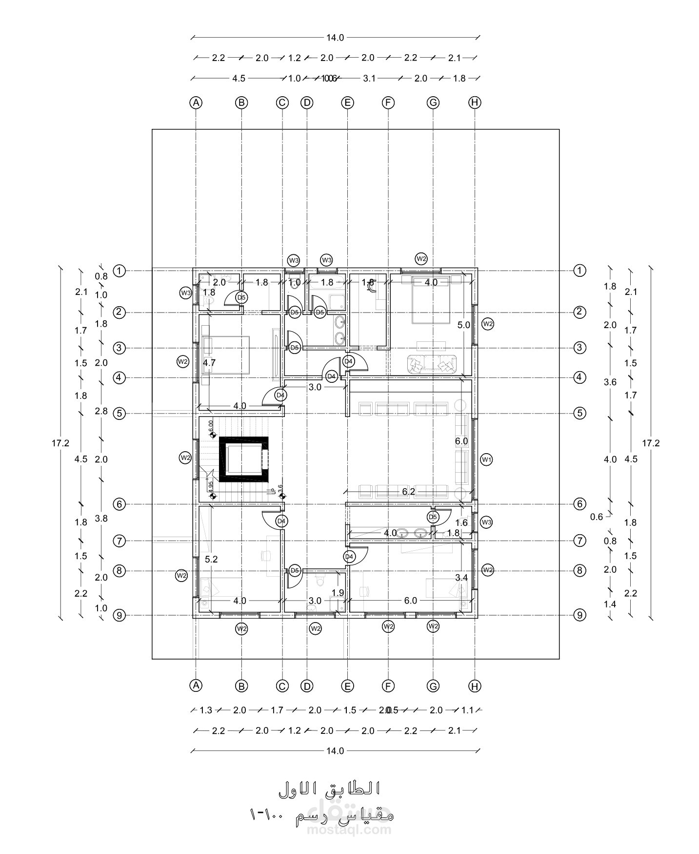
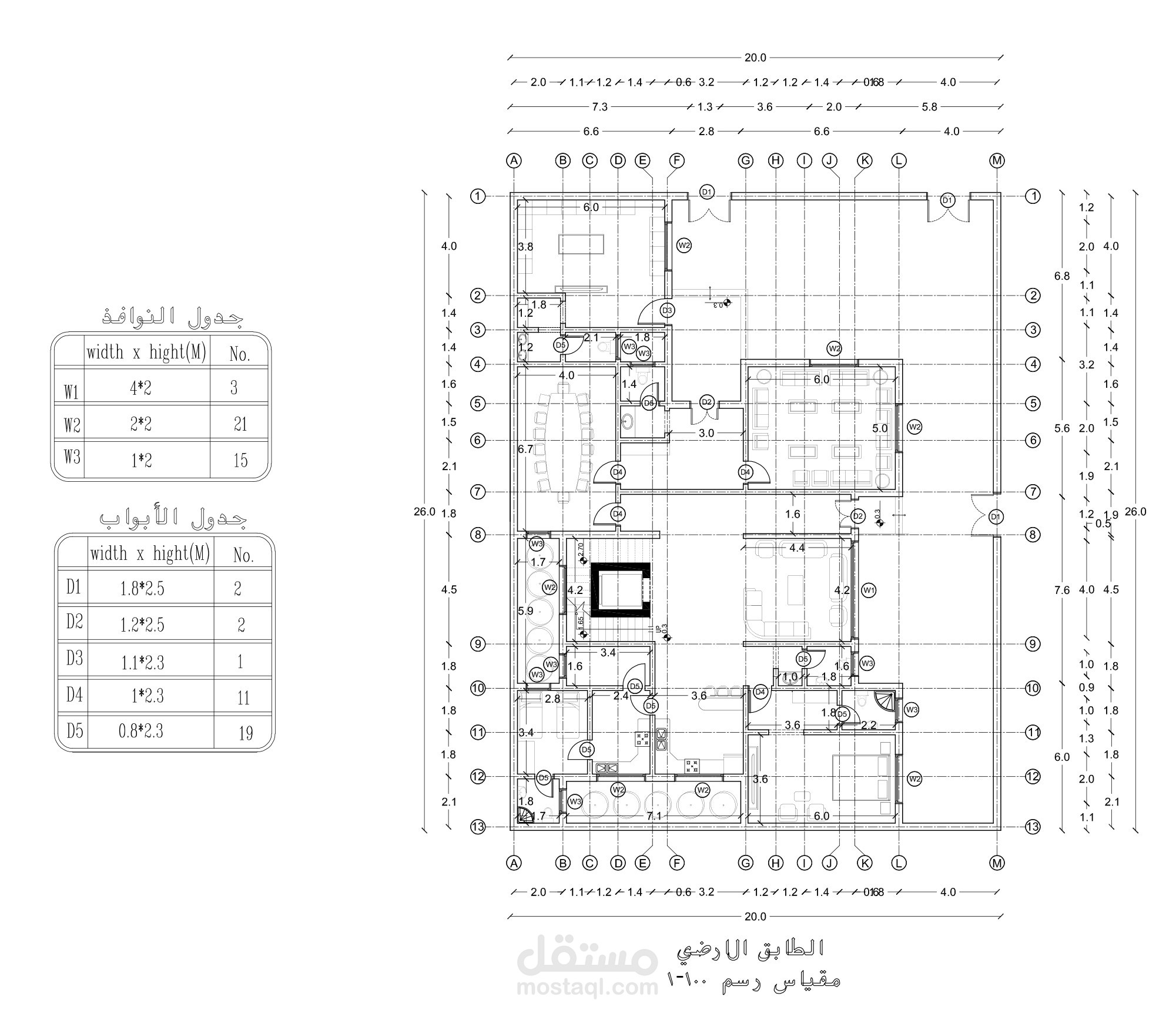
مخططات تنفيذية لمساقط الطابق الأرضي والأول والملحق لفيلا سكنية
معاينة
بطاقة العمل
اسم المستقل
Dalya S.
عدد الإعجابات
0
عدد المشاهدات
114
تاريخ الإضافة
29/09/2021
المهارات
أوتوكاد
تصميم معماري
×