الرئيسية
المستقلين
هيثم م.
معرض الأعمال
اطلب عمل مماثل
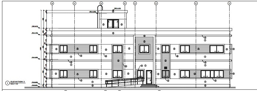
Administration Building
تفاصيل العمل
رسم المخططات الإنشائية و المعمارية للمبنى بمحطة معالجة بحر البقر بسيناء
بطاقة العمل
اسم المستقل
هيثم م.
عدد الإعجابات
0
عدد المشاهدات
29
تاريخ الإضافة
24/07/2021
تاريخ الإنجاز
16/10/2020
المهارات
أوتوكاد
تحويل PDF
×