الرئيسية
المستقلين
جيهان ع.
معرض الأعمال
اطلب عمل مماثل
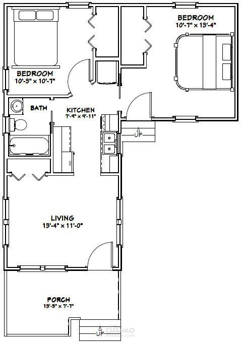
بخ مسقط فيلا squirt architectural scheme
تفاصيل العمل
اخراج معماري لمسقط فيلا حيث تظهر التفاصيل ويوضح كل غرفة ووظيفتها
بطاقة العمل
اسم المستقل
جيهان ع.
عدد الإعجابات
0
عدد المشاهدات
67
تاريخ الإضافة
12/07/2021
المهارات
فوتوشوب
×