تصميم انشائي لقرية رياضية بمساحة 10000 متر مربع

تفاصيل العمل

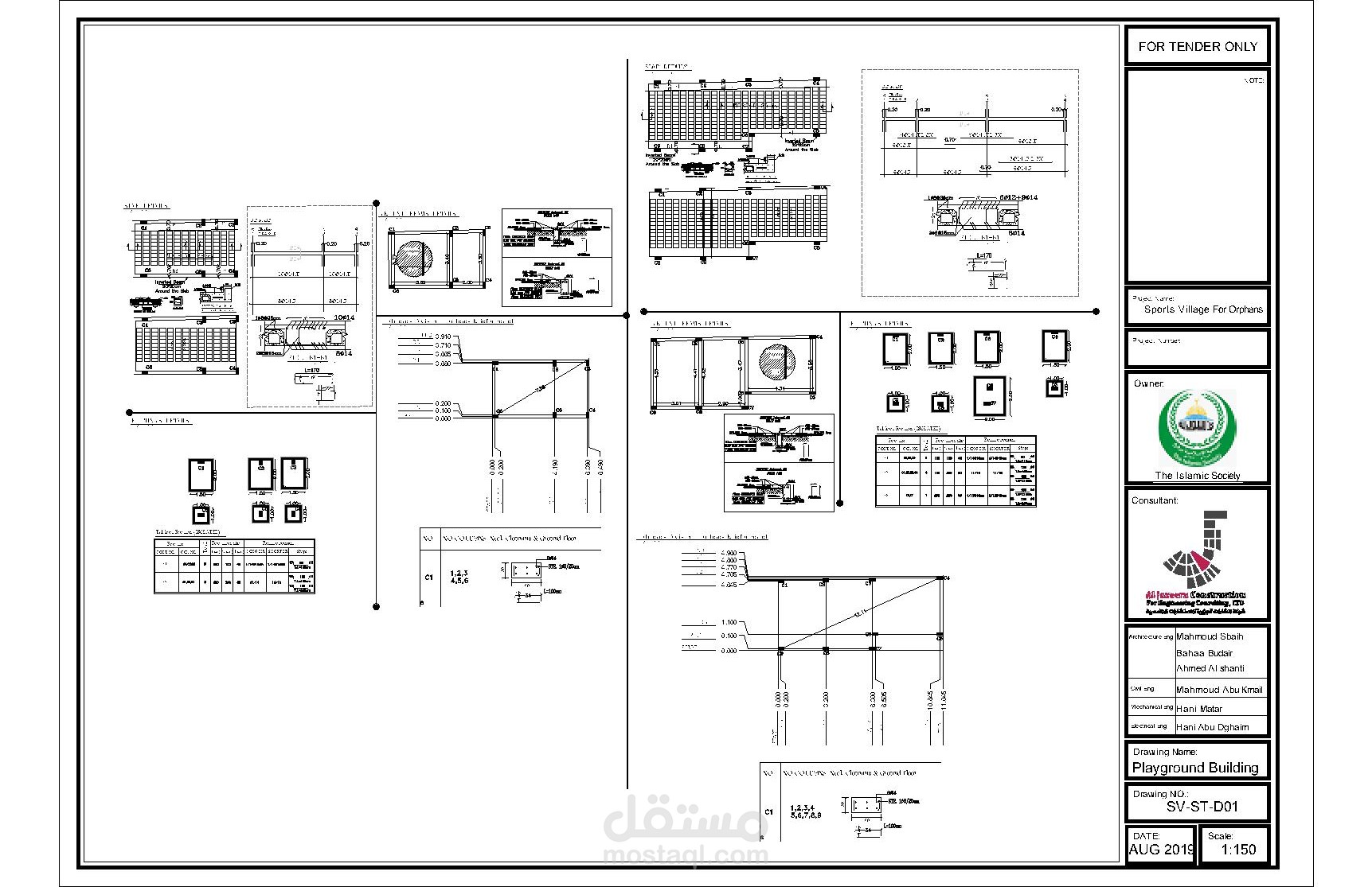
العمل على كافة الأعمال الاستشارية الانشائية للقرية الرياضية بمساحة اجمالي 10,000 متر مربع تحتوي على ملعب ، ومسبح ألومبي ، صالات رياضية مختلفة ، وغيرها

وشملت الأعمال تصاميم معدنية وخرسانية مختلفة بالاضافة لتصاميم خاصة بالطرق واللاندسكيب الانشائية

بطاقة العمل

اسم المستقل
عدد الإعجابات
0
عدد المشاهدات
261
تاريخ الإضافة
تاريخ الإنجاز
المهارات