تفاصيل العمل

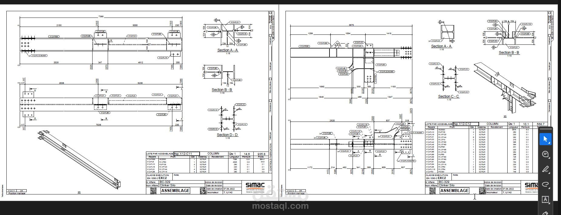
تضمن هذا المشروع الإدارة المتكاملة لعمليات تفصيل الهياكل الفولاذية وتصنيعها لصالح مصنع الأسمنت "البسكرية للأسمنت".

كمتخصص رئيسي في تفصيل الهياكل الفولاذية وإعداد رسومات الورش، كنت كمساعد مدير المشروع مسؤولاً عن ضمان التنسيق السلس بين العميل وفريق الإنتاج مع الحفاظ على أعلى معايير الجودة والدقة خلال دورة حياة المشروع.

*النتائج:

- تم تسليم المشروع في الوقت المحدد وفي حدود الميزانية

- تم تصنيع جميع الهياكل الفولاذية وفقاً لأعلى معايير الجودة

*المهارات والمخرجات:

- النمذجة ثلاثية الأبعاد

- برنامج تكلا ستركتشرز

- رسومات تفصيلية للهياكل الفولاذية

- الرسومات ثنائية الأبعاد

- برنامج أوتوديسك أوتوكاد

بطاقة العمل

اسم المستقل
عدد الإعجابات
0
عدد المشاهدات
120
تاريخ الإضافة
تاريخ الإنجاز
المهارات