الرئيسية
المستقلين
Mohamed S.
معرض الأعمال
اطلب عمل مماثل
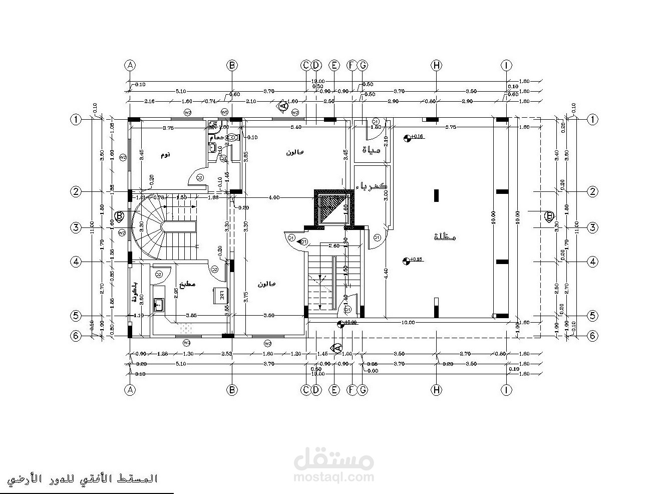
تصميم مخطط معماري
تفاصيل العمل
تصميم مخطط معماري سكني وحساب الكميات المستخدمة في التنفيذ
بطاقة العمل
اسم المستقل
Mohamed S.
عدد الإعجابات
1
عدد المشاهدات
184
تاريخ الإضافة
09/02/2021
×