تفاصيل العمل

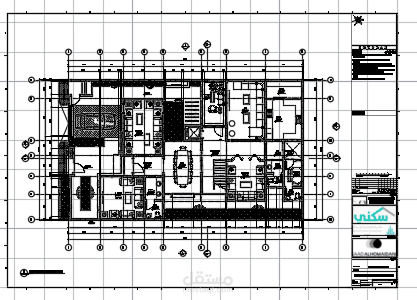
تم تحويل ملفات المشروع كاملة من بي دي اف الى اوتوكاد بحيث يكون التعديل عليها سهلا وقابلة للطابقة والتسليم للمقاول للتنفيذ..

بطاقة العمل

اسم المستقل
عدد الإعجابات
3
عدد المشاهدات
659
تاريخ الإضافة
تاريخ الإنجاز
المهارات